Bildegalleri

Vi har gleden av å presentere denne flotte boligen med en attraktiv og barnevennlig beliggenhet på Solvang/Smeby.
Inaktiv
Familiebolig med særpreg, dobbelgarasje og barnevennlig beliggenhet - del av bolig i sokkel er adskilt med egen dør.
Prisantydning7 490 000 kr
Nøkkelinfo
- Boligtype
- Enebolig
- Eieform
- Eier (Selveier)
- Soverom
- 2
- Internt bruksareal
- 212 m² (BRA-i)
- Bruksareal
- 291 m²
- Eksternt bruksareal
- 79 m² (BRA-e)
- Balkong/Terrasse
- 89 m² (TBA)
- Etasje
- 2
- Byggeår
- 2013
- Energimerking
- C - Mørkegrønn
- Rom
- 5
- Tomteareal
- 1 043 m² (eiet)
Fasiliteter
Takterrasse
Aircondition
Balkong/Terrasse
Barnevennlig
Bredbåndstilknytning
Garasje/P-plass
Hage
Kjæledyr tillatt
Kabel-TV
Offentlig vann/kloakk
Sentralt
Utsikt
Balansert ventilasjon
Visning
Ønsker du å delta på visningen ber vi deg melde deg på slik at vi vet at du kommer. Da kan vi bistå alle best mulig og gi deg tiden du trenger på visningen. Ta gjerne kontakt med megler før visning hvis du har noen spørsmål. Velkommen!
VisningspåmeldingOm boligen
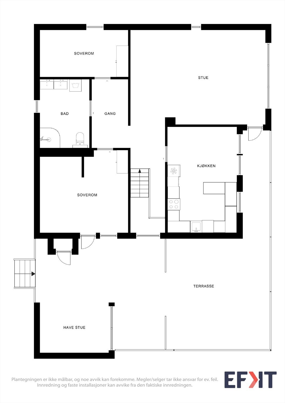
Velkommen til Vektbakken 12A en unik og innholdsrik, arkitekttegnet enebolig som kombinerer særpreg, funksjon og familievennlig komfort. Boligen ligger i et populært og trygt boområde på Smeby/Solvang, med gangavstand til skole, barnehage og fine leke- og turområder. Her får familien god plass til både hverdag og fest, med romslige oppholdsrom, moderne kjøkkenløsning, og fleksibel sokkeletasje som kan brukes til ungdomsavdeling, utleie eller hjemmekontor. Dobbelgarasje med tørrskodd adkomst gir ekstra komfort. Uteområdet er vakkert opparbeidet med japanskinspirert forhage, vinterhage og opplyst bergformasjon i hagen. Stor solrik terrasse og flere lune uteplasser. Et hjem med både hjerterom og smarte løsninger for en aktiv familiehverdag.
Velkommen til visning!
Velkommen til visning!
NB: Knappen for å vise hele beskrivelsen har kun en visuell effekt.
NB: Knappen for å vise hele beskrivelsen har kun en visuell effekt.
Salgsoppgaven beskriver vesentlig og lovpålagt informasjon om eiendommen
Se komplett salgsoppgaveNyttige lenker
Nærområdet
EiendomsMegler 1 Hamar
Vi loser deg trygt gjennom hele boligsalget
Annonsene kan være mangelfulle i forhold til lovpålagt opplysningsplikt. Før bindende avtale inngås oppfordres interessenter til å innhente komplett informasjon fra meglerforetaket, selger eller utleier.








































