Bildegalleri

Proaktiv Eiendomsmegling v/Mads Kirkeslett har den store gleden av å ønske velkommen til Thorvald Erichsens vei 13!
Arkitekttegnet bolig med ettertraktet beliggenhet. Nydelig utsikt. Fantastiske uteområder. Garasje. Mulighet for utleie.
Nøkkelinfo
- Boligtype
- Enebolig
- Eieform
- Eier (Selveier)
- Soverom
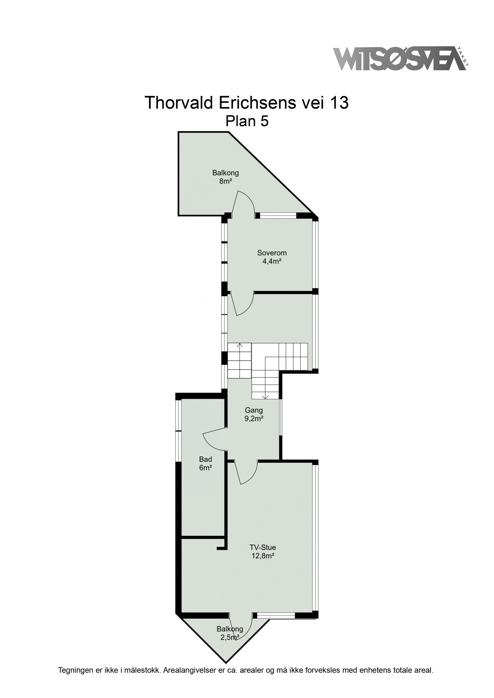
- 5
- Internt bruksareal
- 174 m² (BRA-i)
- Bruksareal
- 222 m²
- Eksternt bruksareal
- 29 m² (BRA-e)
- Innglasset balkong
- 19 m² (BRA-b)
- Balkong/Terrasse
- 74 m² (TBA)
- Byggeår
- 1990
- Energimerking
- D - Gul
- Rom
- 7
- Tomteareal
- 726 m² (eiet)
- Boligselgerforsikring
- Ja
Fasiliteter
Om boligen
Proaktiv Eiendomsmegling v/Mads Kirkeslett har gleden av å ønske velkommen til Thorvald Erichsens vei 13! Denne arkitekttegnede eneboligen har flere flotte løsninger og detaljer, og en aldeles nydelig beliggenhet. Eiendommen ligger skjermet fra gaten og trafikkstøy, og har uhindret utsikt over Nyborg og helt ned mot Trondheimsfjorden. Boligen har flere flotte uteområder på begge sider av huset, med gode sol- og utsiktsforhold, samt garasje og parkeringsplass ved veien.
Boligens fremste kvaliteter:
- Fantastisk beliggenhet med fjordutsikt og gode solforhold
- Flotte uteområder med flere balkonger og terrasser på begge sider av huset
- Garasje og biloppstillingsplass ved veien
- Mulighet for utleie av underetasje
- Lekre løsninger med store vindusflater i utsiktsretning
- Svært romslig stue og kjøkken
- Nyere bad
Salgsoppgaven beskriver vesentlig og lovpålagt informasjon om eiendommen
Se komplett salgsoppgaveNyttige lenker
Nærområdet
Proaktiv Eiendomsmegling Trondheim Sentrum
Prisstatistikk
Thorvald Erichsens vei 13
på annonsen
prisantydning per kvadratmeter
Prisfordeling
Pris per m² ligger 22 494 kr over snittet for eneboliger i Trondheim Vest.
Grafen viser antall eneboliger solgt i Trondheim Vest siste året fordelt på pris per m² - totalt 156 eneboliger
Antall boliger
Kvadratmeterpris tilsvarer prisantydning pluss fellesgjeld per kvadratmeter (p-rom eller BRA-i). Prisene i grafen er avrundet til nærmeste 1000 kr.
Annonseinformasjon
| FINN-kode | 369655512 |
|---|---|
| Sist endret | 20. sep. 2024 11:49 |
| Referanse | 79240039 |
Annonsene kan være mangelfulle i forhold til lovpålagt opplysningsplikt. Før bindende avtale inngås oppfordres interessenter til å innhente komplett informasjon fra meglerforetaket, selger eller utleier.


































































