Bildegalleri

Eiendomsmegler Jens Roland Pettersen i Bakke Sørvik &Partners, har gleden av å presentere denne stilfulle og herskapelige halvpart av tomannsbolig i vakre Nordbyen!
Nordbyen - Stilfull, herskapelig og påkostet bolig | Solrike, flotte utearealer med nydelig utsikt | Stor garasje!
Nøkkelinfo
- Boligtype
- Tomannsbolig
- Eieform
- Eier (Selveier)
- Soverom
- 3
- Internt bruksareal
- 344 m² (BRA-i)
- Bruksareal
- 344 m²
- Balkong/Terrasse
- 5 m² (TBA)
- Byggeår
- 1948
- Energimerking
- G - Oransje
- Tomteareal
- 578 m²
Fasiliteter
Visning
Om boligen
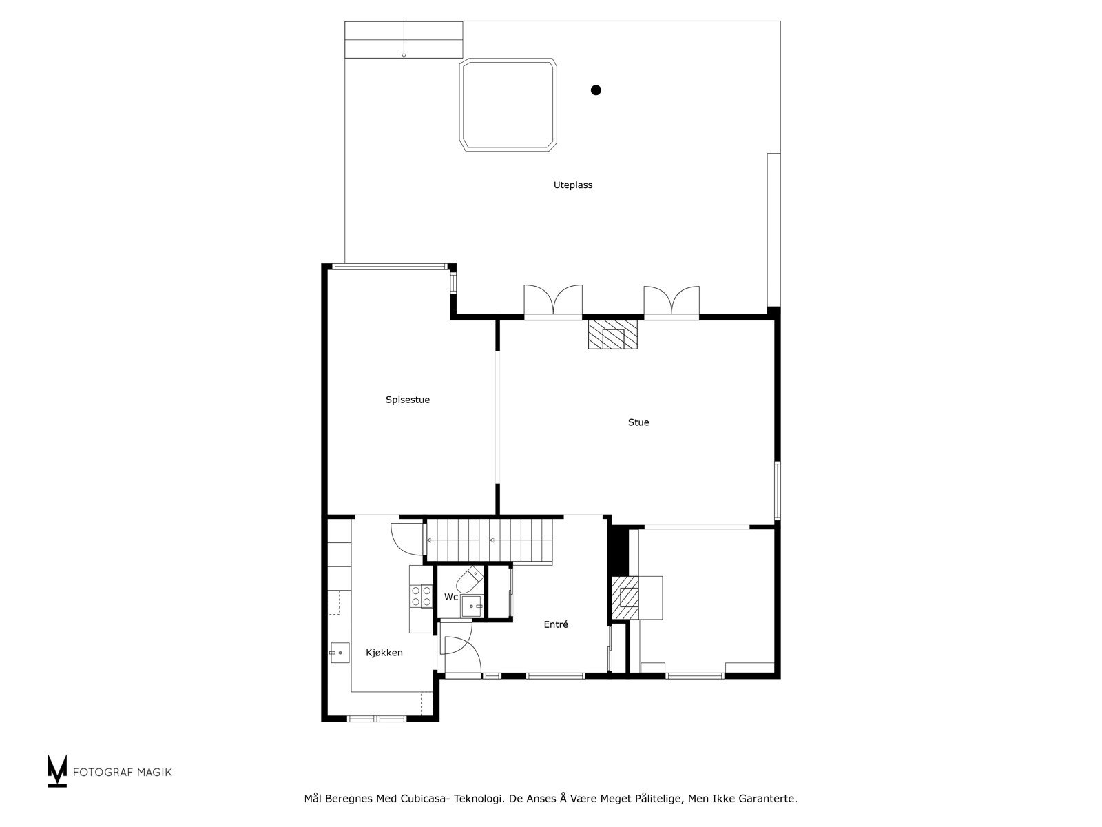
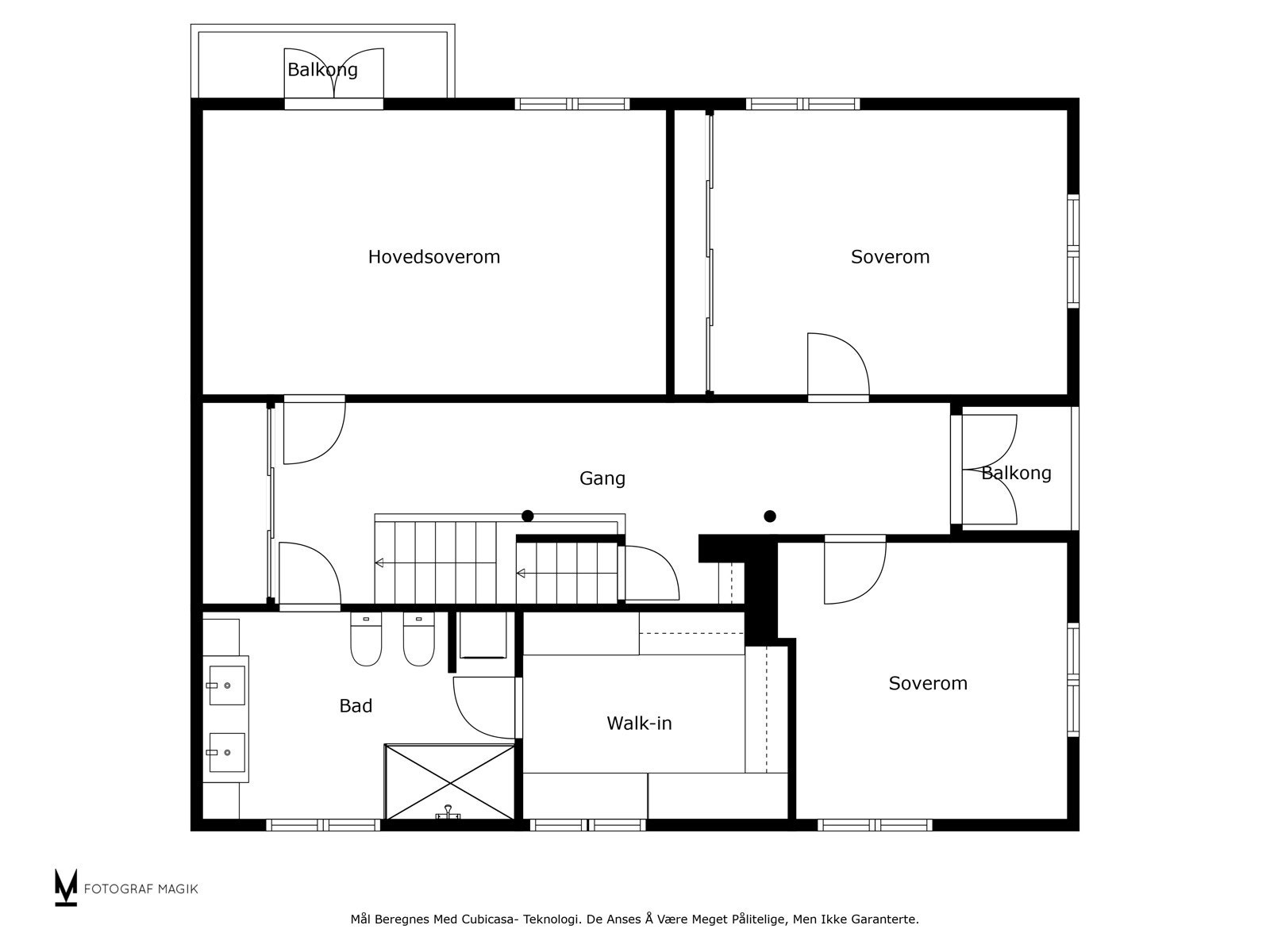
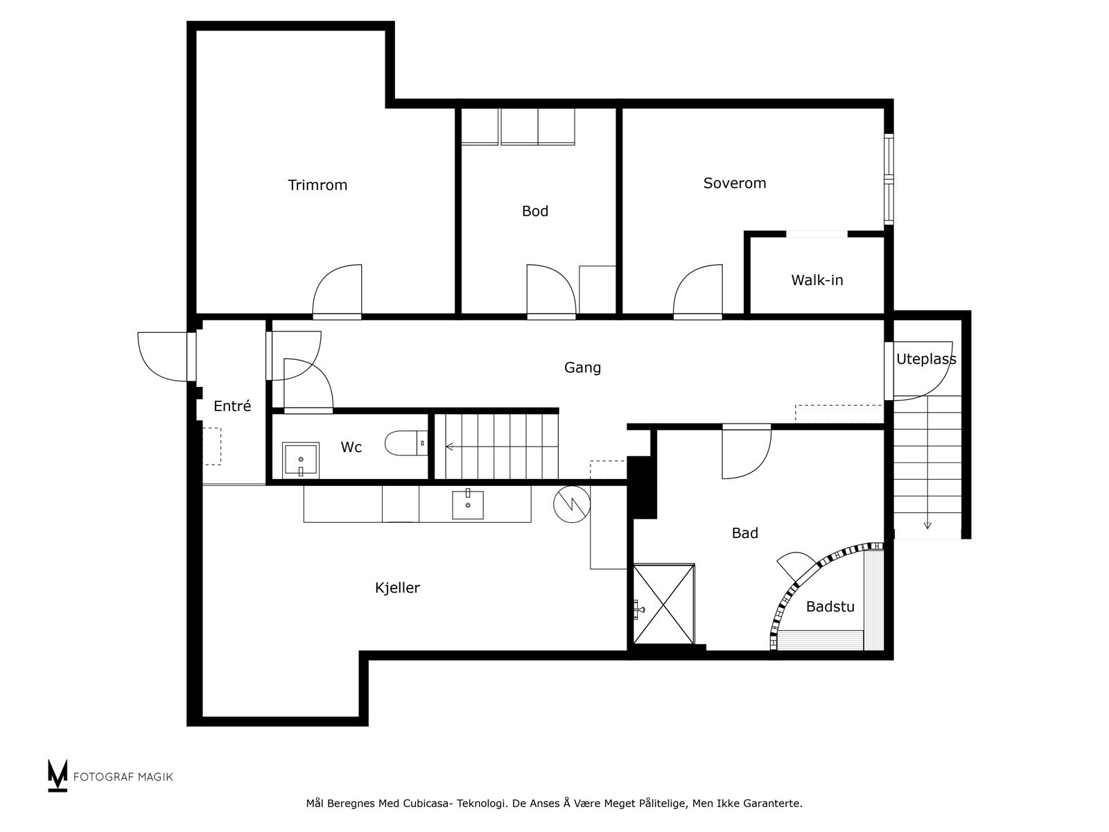
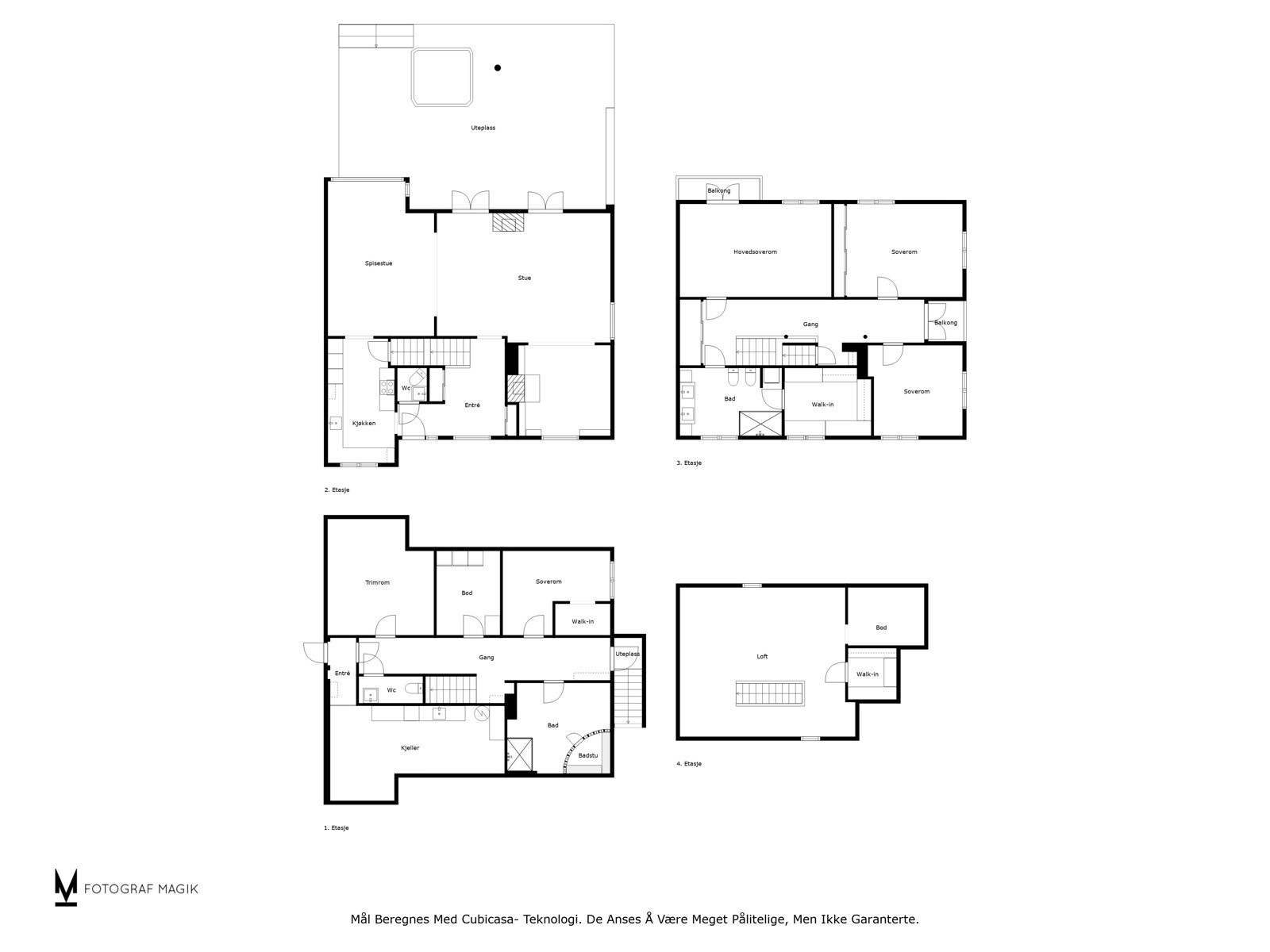
Velkommen til Nedre Langgate 52B! En velholdt, lekker og påkostet halvpart av en herskapelig tomannsbolig. Den sentrumsnære beliggenheten er misunnelsesverdig! Helt nede ved Byfjorden med fantastisk, fri utsikt og upåklagelige solforhold. Tomten er parkmessig opparbeidet, og sol og sjøutsikt nytes til det fulle på en vestvendt, stor steinbelagt terrasse. Boligen er oppgradert i 2015/2016 og fremstår stilfull i farge- og materialvalg. Her er det en stor, luftig stue med gasspeis, et tidstypisk, lunt bibliotek og en innbydende spisestue. Videre er det et moderne kjøkken, delikat bad, to wc-rom og et bad med infrarød badstue som innbyr til velvære. Boligen har også fire gode soverom, walk-in closet, trimrom og god lagringsplass. Biler parkeres i en stor garasje og på en steinbelagt gårdsplass
Salgsoppgaven beskriver vesentlig og lovpålagt informasjon om eiendommen
Se komplett salgsoppgaveNyttige lenker
Nærområdet
Bakke Sørvik & Partners
Annonseinformasjon
| FINN-kode | 369526372 |
|---|---|
| Sist endret | 19. mars 2026 03:12 |
| Referanse | 28240232 |
Annonsene kan være mangelfulle i forhold til lovpålagt opplysningsplikt. Før bindende avtale inngås oppfordres interessenter til å innhente komplett informasjon fra meglerforetaket, selger eller utleier.



































































