Bildegalleri

Solgt
NY PRIS - Tomannsbolig med populær beliggenhet på Gaustad - Garasje - Hage - Oppussingsobjekt - Kjeller m. egen inngang
Prisantydning13 500 000 kr
Nøkkelinfo
- Boligtype
- Tomannsbolig
- Eieform
- Eier (Selveier)
- Soverom
- 3
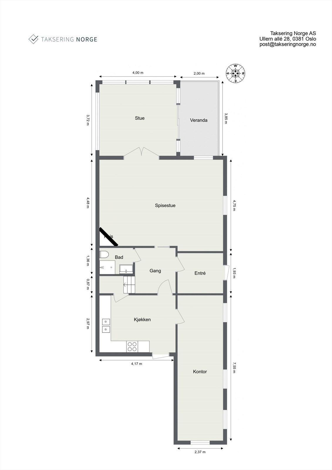
- Internt bruksareal
- 226 m² (BRA-i)
- Bruksareal
- 241 m²
- Eksternt bruksareal
- 15 m² (BRA-e)
- Etasje
- 3
- Byggeår
- 1955
- Energimerking
- G - Rød
- Rom
- 5
- Tomteareal
- 694 m² (eiet)
Fasiliteter
Balkong/Terrasse
Barnevennlig
Garasje/P-plass
Hage
Kjæledyr tillatt
Offentlig vann/kloakk
Peis/Ildsted
Rolig
Sentralt
Turterreng
Om boligen
Nordvik eiendomsmegling ved Bendik Blumenthal og Kamilla Dagsland presenterer Gaustadveien 1A. Tomannsbolig med svært populær beliggenhet på Gaustad, her har du kort vei til offentlig kommunikasjon, barnehager, skoler, marka mm.
- Populær beliggenhet
- Lys og luftig med store vindusflater
- Garasje
- Barnevennlig m/ kort vei til skoler, barnehager og fritidsaktiviteter
- Kjeller med separat inngang
- Solrik hage
Velkommen til oppsatte fellesvisninger eller privatvisning etter avtale.
NB: Knappen for å vise hele beskrivelsen har kun en visuell effekt.
NB: Knappen for å vise hele beskrivelsen har kun en visuell effekt.
Salgsoppgaven beskriver vesentlig og lovpålagt informasjon om eiendommen
Se komplett salgsoppgaveNyttige lenker
Nærområdet
Nordvik Ullevål
Annonseinformasjon
| FINN-kode | 369501676 |
|---|---|
| Sist endret | 02. nov. 2024 12:39 |
| Referanse | 23-0192/24 |
Annonsene kan være mangelfulle i forhold til lovpålagt opplysningsplikt. Før bindende avtale inngås oppfordres interessenter til å innhente komplett informasjon fra meglerforetaket, selger eller utleier.
































































