Bildegalleri

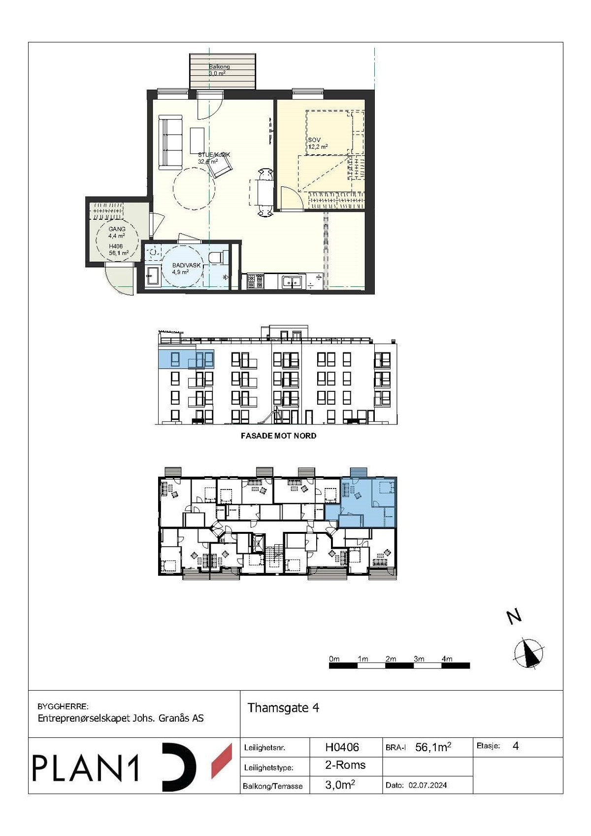
Plantegning H0406.
Thams gate 4
28 sentrumsnære 2- og 3-roms leiligheter med gode planløsninger - Parkeringsplass - Felles takterrasse - Meget sentralt!
Prosjektets status
Planlegging
- Utført
Salgsstart
- September 2024
Byggestart
- 4.kvartal 2024
Overtakelse
-3.kvartal 2026
Nøkkelinfo
- Boligtype
- Leilighet
- Etasje
- 4
- Soverom
- 1
- Rom
- 2
- Internt bruksareal
- 56 m² (BRA-i)
- Bruksareal
- 61 m²
Visning
Beskrivelse
Oppdragsansvarlig
Liavaag Eiendom AS / Morten Liavaag
Selger/Utbygger
Thams gate 4 AS
Betegnelse
Gnr. 114 Bnr. 1000 Snr. 26 i Drammen kommune
Byggeår
2025
Presentasjon Thams gate 4
I et særdeles sentralt område på Bragernes er det prosjektert et moderne boligbygg med 28 lekre 2-roms og 3-roms leiligheter. Leilighetene er prosjektert iht. TEK17. Bygget planlegges med parkeringsplasser i kjelleren der elbillader vil være en tilvalgsmulighet. Leilighetene 2-4. etasje leveres med balkong. I 1. etasje mot bakgård er det marktettasser.. Alle beboere har tilgang til en flott takterrasse - en felles uteplass med særdeles gode solforhold.
Leilighetene leveres med vannbåren gulvvarme i leilighetene og radiatorer i fellesarealene. Høye vindusflater vil gi gode lysforhold, og det leveres vinylbelegg eller lignende på gulv og malte gipsvegger iht. romskjema. Soverommene vil males iht. romskjema, og det vil være mulig å bestille garderobe og andre farger på vegger som tilvalg.
Leilighetene leveres med åpen kjøkken- og stueløsning. Kjøkken leveres med mørke fronter. Her har du mulighet for å bestemme andre fronter som tilvalg. Kjøkkenet leveres med hvitevarer. I hver leilighet vil det være et delikat bad. Badet er prosjektert med stilrene fliser, gulvvarme og downlights. I utgangspunktet leveres badene med dusjhjørne.
Tilvalg
Erfaringsmessig vet vi at de fleste ønsker å sette sitt personlige preg på boligen. Avhengig av hvor langt vi har kommet i byggeprosessen når avtale om kjøp inngås, kan det være mulighet for dette gjennom tilvalg av bad, oppgradring av hvitevarer, kjøkkeninnredning, maling, parkett og elbillader med mer. Les mer på side 18, og ta gjerne kontakt med megler for en hyggelig prat og ytterligere informasjon.
Beliggenhet
Eiendommene ligger i et særdeles sentralt og populært boligområde på Bragernes. Her vil du bo med umiddelbar nærhet til byens pulserende sentrum, uteliv og til den vakre elvepromenaden med både utendørsservering, grønne lunger og badestrender. Det er også gangavstand til skoler, barnehager, gode kollektivtilbud og treningsfasiliteter.
Legg gjerne turen via Ypsilon til Union Brygges urbane mangfold hvor det bys på restauranter, kafeer, rockescene og et spennende kulturliv. På Papirbredden finner du også Campus Drammen - en av landets mest moderne kunnskapsparker. USN har et bredt studietilbud innenfor en rekke attraktive retninger.
I tillegg er det kort vei til Drammensbadet - Norges største badeanlegg, Drammenshallen og idrettsparken på Marienlyst med fotballbaner og skøyteis. Ønsker du å utfordre alpinkunnskapene er du en liten biltur unna Drammen Skisenter på Åssiden. I området ligger også hallen til Drammen Tennisklubb med fire baner. Vil du heller la deg inspirere av skogens magi kan du legge turen til «Sikksakken» bak sykehuset og ta deg innover i Bragernesåsens flotte turområder. Her venter både Åspaviljongen og Spiralen med herlige utsiktspunkter.
Servicetilbud
Butikker
Dagligvarehandel kan gjøres på bl.a. Kiwi, Rema 1000 og Spar. Torget Vest, med ca. 30 butikker, apotek og tre serveringssteder, ligger 140 m. unna. Sentrum byr på koselige gågater og torg, i tillegg til sentrene Magasinet og CC
Drammen.
Kollektivtransport
Bragernes har et godt kollektivtilbud med buss og tog. Nærmeste holdeplass er Albums gate, ca. 50 meter unna. Det er 10 min. gange til Drammen jernbanestasjon hvor også flytoget har avgang.
Avstander
Med bil tar det ca. 8 min. til Gulskogen, 32 min. til Oslo S, 34 min. til Kongsberg og 1 time til Oslo lufthavn. Til fots er det ca. 3 min. til Bragernes torg, 9 min. til Strømsø torg, 12 min. til Union Brygge og 18 min. til Marienlyst.
Barnehage og skole
Det er gangavstand til Bragernes barneskole og Børresen ungdomsskole. Det finnes flere videregående skoler i nærliggende områder og et godt utvalg av barnehager. På Papirbredden helt nede ved elva finner du
Universitetet i Sørøst-Norge.
Standard
Vindfang
Det vil være heisadkomst fra bakkeplan og garasjeanlegg opp til alle etasjer. Leilighetene leveres med et innbydende vindfang med vinylbelegg eller lignende og malte gipsvegger, se romskjema. Stilen er gjennomgående i øvrige rom og gir et delikat helhetsinntrykk.
Stue og kjøkken
Leilighetene får stue og kjøkken i en moderne, åpen løsning, hvor høye vinduer vil supplere rikelig med naturlig lys. Rommene får vinylbelegg eller lignende på gulv og malte gipsvegger. For farger se romskjema. Noen av leilighetene vil også ha adkomst til balkong/uteplass fra stuen. Kjøkkenet er prosjektert med stilren og moderne innredning. Ved kjøp av leilighet før innredning starter gis det mulighet for valg av andre kjøkkenfronter, men ellers vil det være mørke fronter. Hvitevarer medfølger; oppgraderinger kan velges som tilvalg.
Bad/wc/vaskerom
Badene er prosjektert med moderne fliser på gulv og vegger, mosaikkfliser i dusjsone og downlights i himling. Baderomsinnredningen vil være i hvit utførelse med heldekkende servant, samt overskap med speil/lys/stikkontakt. Det leveres også veggmontert toalett, dusjhjørne med termostatstyrt dusjbatteri og opplegg for vaskemaskin på baderommet. Baderom prosjekteres og leveres i henhold til TEK17. Våtrom får avtrekk via det balanserte ventilasjonsanlegget.
Soverom og garderobe
Leilighetene er prosjektert med et soverom hver som vil være i størrelsesorden fra ca. 7-12 kvm, noen av leilighetene har to soverom. Soverommet vil ha vinylbelegg eller lignende på gulvet og malte gipsvegger, se romskjema for fargekode. Skyvedørsgarderober (stiplet på plantegning) er tilvalg. Leilighetene som får innvendig skap/bod leveres med vinylbelegg eller lignende og malte gipsvegger. I kjelleren vil hver enhet få bod på 2,5-5 kvm, iht. krav i TEK17, med vegger i Troax (nettingvegger) eller tilsvarende - med dør klargjort for hengelås.
Oppvarming - Teknisk
Leilighetene leveres med vannbåren gulvvarme i leilighetene og radiator i fellesarealene. Det leveres balansert ventilasjonsanlegg med varmegjenvinner, med avtrekk fra våtrom og kjøkken. Sikringsskapene vil ha automatsikringer. Videre vil leilighetene leveres med varmtvann fra fellesanlegg, og med sprinkleranlegg og porttelefon.
Parkering / Garasje
I kjelleren blir det garasjeplasser, hvor det vil være mulig å erverve parkering. Parkeringsplassene har mulighet for elbillader som tilvalg, og det vil også være avsatt plass til sykkelparkering. Garasjeanlegget får adkomst via nedkjøringsrampe, og fra kjelleren vil det være heis og trapp opp til alle etasjer i bygget. Øvrig parkering etter områdets gjeldende bestemmelser.
Adkomst
Se vedlagt kartskisse på høyre side i annonsen. Ved å trykke på kartet får du enkelt tilgang til en spesifisert reiserute fra din startdestinasjon til boligen.
Uteområde
Leilighetene i 2-4 etasje leveres med nordvendt eller sørvendt balkong. Balkongene vil oppføres i betong med tremmegulv på dekke, og utforming av rekkverk vil være i glass, tre eller spiler av stål. Tre av leilighetene i første etasje prosjekteres med markterrasse inn mot rolige omgivelser. Bygget er også prosjektert med en stor, flott takterrasse. Takterrassen vil få et areal på ca. 200 kvm, og her vil du kunne nyte meget gode solforhold i løpet av dagen. Takterrassens størrelse og utforming kan endres grunnet at detaljprosjekteringenen ennå ikke er ferdig. Det tas forbehold om at endringer kan gjøres. Uteplassen leveres også med tremmegulv og sittebenker. For øvrig planlegges tomten med grøntområder og lekeapparat.
Finansiering
Kontakt megler for avklaring av finansielle forhold, herunder lån til kjøp av eiendom. Privatmegleren har avtale med Nordea om formidling av lån og andre finansielle tjenester. Privatmegleren mottar godtgjørelse for dette.
Sikkerhetsstillelse
Alle eiendomsmeglingsforetak har lovpålagt forsikring av klientmidler begrenset oppad til kr 45 mill. Enkeltsaker er forsikret inntil kr 15 mill. Dersom kjøpers låneinstitusjon krever tilleggsforsikring ved omsetning over 15 millioner, må kjøper selv eller dennes låneinstitusjon dekke utgiftene forbundet med dette.
Planlagt overtagelse
Selger vil søke om trinnvis igangsettingstillatelse i byggesaken (riving, grunnarbeider, alle arbeider). Forutsatt avklaring om forbehold om salg av 50% av totalverdi i prosjektet og igangsettingtillatelse for alle arbeider gis i høst 2022 er forventet overtagelse 4. kvartal 2024, men dette tidspunktet er foreløpig og ikke bindende og utløser ikke dagmulkt. Når forbehold er avklart skal Selger fastsette en overtagelsesperiode som ikke skal være lenger enn 3 måneder. Selger skal skriftlig varsle kjøper om når overtagelsesperioden begynner og slutter. Senest 4 uker før ferdigstillelse av boligen skal Selger gi kjøper skriftlig melding om endelig overtagelsesdato. Den endelige datoen er bindende og dagmulktsutløsende.
Solgt ihht bustadoppføringsloven
Boligene selges i henhold til Bustadoppføringslova som regulerer kjøpers (forbrukers) rettigheter og plikter ved avtale om oppføring av bolig og kjøp av fast eiendom der bygningen ikke er fullført når avtalen inngås. Ved salg til aksjeselskap legges Avhendingslovens bestemmelser til grunn. For øvrig gjelder Lov om eierseksjoner for eierseksjonssameiet og driften av dette.
Garantier
Det stilles garantier i henhold til Bustadoppføringslovas bestemmelser. Garanti etter § 12 vil bli stilt i forbindelse med avtaleinngåelse. Garantien skal være pålydende 3% av kjøpesummen i byggetiden og 5% i 5 år etter overlevering av boligene til kjøper. Garanti etter § 47 forutsettes stilt om selger ønsker utbetalt forskudd/delinnbetaling/sluttoppgjør før hjemmelsovergang. Eventuelle påkrevde endringer av garantier ved eventuelle videresalg/transporter utføres ikke og bekostes ikke av selger.
Forsikring
Frem til overtagelse vil eiendommen være forsikret av selger. Etter overtagelse vil eiendommen forsikres gjennom sameiets fellesforsikring. Kjøper må selv besørge innboforsikring og forsikring av eventuelle særskilte påkostninger.
Budgiving
Boligene selges til fastpris.
Alle bud/kjøpetilbud på eiendommen skal være skriftlig og sendes meglerforetaket eller via vår "gi bud"-knapp på våre nettsider. Knappen finner du også på Privatmeglerens hjemmeside for prosjektet, se på den enkelte bolig.
Bud/kjøpetilbud må ikke ha kortere akseptfrist enn til kl. 12.00 første virkedag etter siste annonserte visning. Lørdag regnes ikke som virkedag. Bud/kjøpetilbud med kortere frist enn dette kan ikke formidles av megler. Nærmere info om budgiving finner du på egen side sammen med kjøpetilbud/budskjema.
Som budgiver hos Privatmegleren kan du kreve budjournal fremlagt så snart handel er gjennomført.
Innhold i budjournal er lovregulert, og innebærer at budgivere må akseptere at opplysninger om budet kan bli fremlagt for selger, kjøper og øvrige budgivere. Budgiver som ikke blir kjøper, kan kreve kopi av anonymisert budjournal.
Lov om hvitvasking
Megler er underlagt lov om hvitvasking som innebærer plikt til å melde ifra til Økokrim om mistenkelige transaksjoner
Nyttige lenker
Nærområdet

PrivatMegleren Drammen
Annonseinformasjon
| FINN-kode | 369399328 |
|---|---|
| Sist endret | 17. apr. 2026 02:08 |
| Referanse | 83230564 |
Annonsene kan være mangelfulle i forhold til lovpålagt opplysningsplikt. Før bindende avtale inngås oppfordres interessenter til å innhente komplett informasjon fra meglerforetaket, selger eller utleier.
