Bildegalleri

Velkommen til Arilds gate 5!
Solgt
Ila
FARGERIK OG ROMSLIG 5-ROMS SELVEIER PÅ 161 KVM BRA - 2 stuer - TG0 på bad - Velholdt bygård - Idyllisk felleshage
Prisantydning6 390 000 kr
Nøkkelinfo
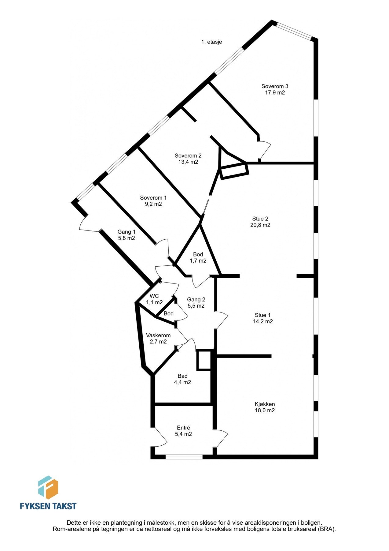
- Boligtype
- Leilighet
- Eieform
- Eier (Selveier)
- Soverom
- 3
- Internt bruksareal
- 127 m² (BRA-i)
- Bruksareal
- 161 m²
- Eksternt bruksareal
- 34 m² (BRA-e)
- Etasje
- 1
- Byggeår
- 1898
- Energimerking
- G - Oransje
- Rom
- 5
- Tomteareal
- 1 089 m² (eiet)
Fasiliteter
Barnevennlig
Kabel-TV
Offentlig vann/kloakk
Parkett
Peis/Ildsted
Turterreng
Sentralt
Bredbåndstilknytning
Moderne
Rolig
Om boligen
Velkommen til Arilds gate 5! En sjeldent stor og fargerik 5-roms selveierleilighet. Leiligheten ligger i 1.etasje og har luftig planløsning med god standard. Sameiet har en vakker felleshage - og beliggenheten er sentral med kort gange til bysentrum. Leiligheten har vært både i VG og Nidaros etter at den ble pusset opp. Sjekk ut: https://www.minmote.no/interioer/a/mQAWyO/fant-designstol-fra-gaten-verdt-17-000-kroner
Av kvaliteter kan man nevne:
Av kvaliteter kan man nevne:
- To svært romslige stuer, hvor den ene har en moderne peisinnsats.
- Lekkert kjøkken som ble pusset opp i 2015.
- Soneparkering rett utenfor døren.
- Svært delikat bad. Badet ble totalrehabilitert i 2023.
- Høy himling.
- Eget vaskerom og WC.
- Svært god bodplass. Boden nede i kjeller er på 34 kvm.
- 3 romslige soverom, hvorav det største kan deles i to.
- Med sin sentrumsnære beliggenhet er denne leiligheten ypperlig for den som ønsker både byliv og ro.
Velkommen til visning!
NB: Knappen for å vise hele beskrivelsen har kun en visuell effekt.
NB: Knappen for å vise hele beskrivelsen har kun en visuell effekt.
Salgsoppgaven beskriver vesentlig og lovpålagt informasjon om eiendommen
Se komplett salgsoppgaveNærområdet
EiendomsMegler 1 Heimdal
Vi loser deg trygt gjennom hele boligsalget
Prisstatistikk
Arilds gate 5
15 433 klikk
på annonsen
50 314 kr
prisantydning per kvadratmeter
Prisfordeling
Pris per m² ligger 15 686 kr under snittet for leiligheter i Trondheim Sentrum.
Grafen viser antall leiligheter solgt i Trondheim Sentrum siste året fordelt på pris per m² - totalt 855 leiligheter
Antall boliger
Kvadratmeterpris tilsvarer prisantydning pluss fellesgjeld per kvadratmeter (p-rom eller BRA-i). Prisene i grafen er avrundet til nærmeste 1000 kr.
Annonseinformasjon
| FINN-kode | 369369105 |
|---|---|
| Sist endret | 17. feb. 2025 13:42 |
| Referanse | 31240568 |
Annonsene kan være mangelfulle i forhold til lovpålagt opplysningsplikt. Før bindende avtale inngås oppfordres interessenter til å innhente komplett informasjon fra meglerforetaket, selger eller utleier.





































