Bildegalleri

Velkommen til Oppsvingen 53 på Nordre Fjellstølen! Fotograf: Ingvild Sveen Joplassen.
Inaktiv
Nordre Fjellstølen
Koselig hytte åpent og solrikt beliggende med vid utsikt i flott turområde, ca. 980 moh. Solcelleanlegg.
Prisantydning650 000 kr
- Omkostninger
- 17 600 kr
- Totalpris
- 667 600 kr
- Verditakst
- 700 000 kr
Nøkkelinfo
- Beliggenhet
- På fjellet
- Boligtype
- Hytte
- Eieform
- Eier (Selveier)
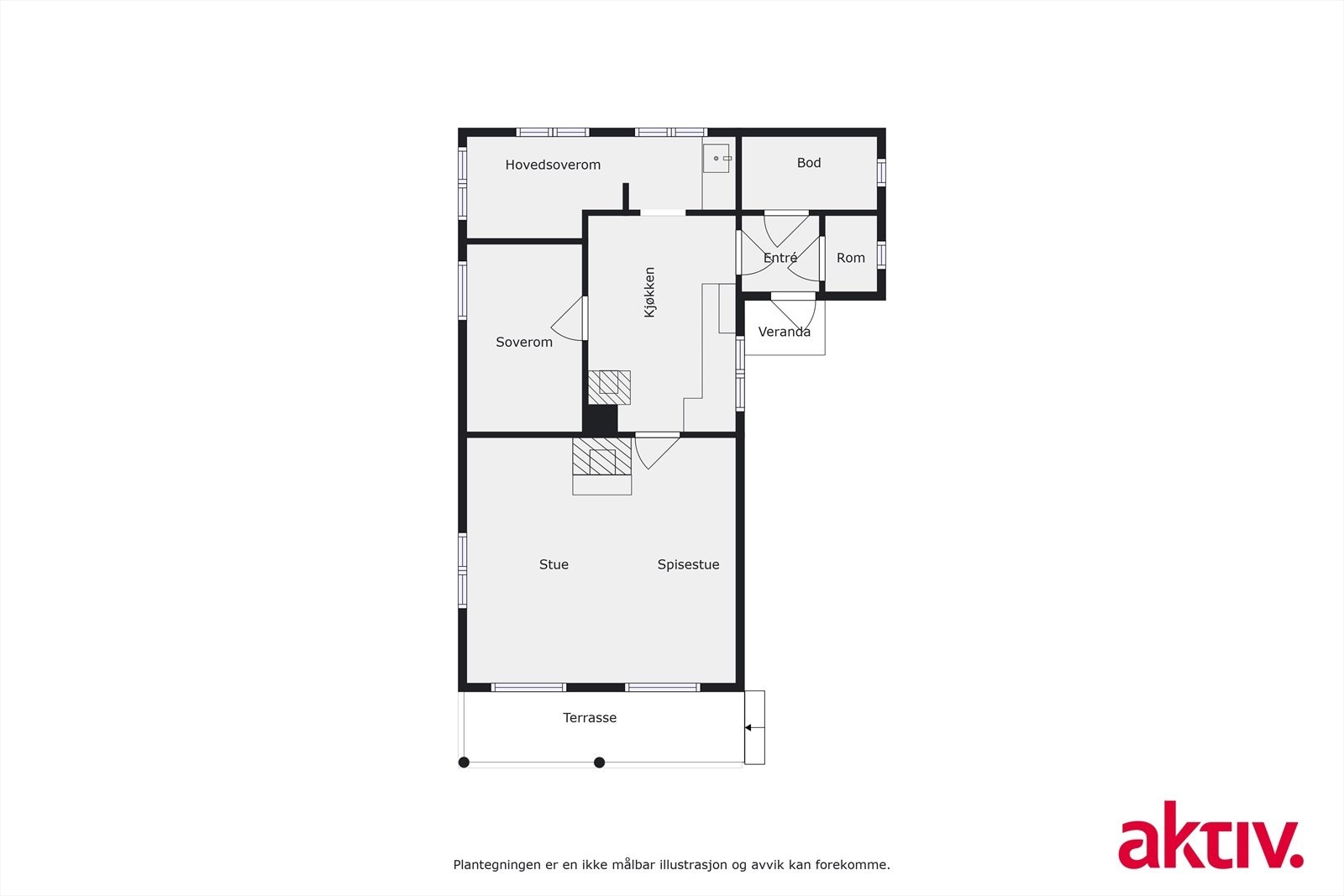
- Internt bruksareal
- 54 m² (BRA-i)
- Bruksareal
- 54 m²
- Balkong/Terrasse
- 7 m² (TBA)
- Tomteareal
- 2 620 m² (eiet)
- Byggeår
- 1966
- Soverom
- 2
- Energimerking
- G - Rød
- Overtakelse
- Etter nærmere avtale med selger. Normalt 3-4 uker etter budaksept. Kjøper vil ikke ha tilgang til eiendommen i perioden mellom budaksept og overtakelse.
Fasiliteter
Balkong/Terrasse
Barnevennlig
Bilvei frem
Peis/Ildsted
Rolig
Utsikt
Fiskemulighet
Turterreng
Visning
Påmeldingsvisning. Ved annonsert visning er det viktig at du melder deg på visningen ved å bruke visningspåmeldings knappen eller kontakter megler. Annonserte visninger hvor det ikke er noen påmeldte innen kl. 16 dagen før visningsdagen vil ikke bli avholdt.
For visninger utover dette, ta direkte kontakt med megler.
Husk å lese komplett salgsoppgave før visning. Bestill komplett, utskriftsvennlig salgsoppgave.
VisningspåmeldingOm boligen
Eiendommen "Bestebu" ligger i behagelig kjøreavstand fra Østlandsområdet. Den er omgitt av vakker natur og har flotte turmuligheter rett utenfor hyttedøra.
Nordre Fjellstølen er et populært hytteområde, og "Bestebu" ligger åpent og solrikt til ca. 980 moh. Her er det vid utsikt utover området, mot Makalausfjellet og områdene rundt. Med hytte her kan en nyte avslappende dager med flotte soloppganger, og sol til langt på kveld sommerstid. Turmulighetene er mange med ca. 650 m til løypenett og milevis av flotte, oppkjørte skiløyper. Til Stavedalen Park med alpinsenter, lekeland og servering er det ca. 6 km.
Hytta ligger på en stor naturtomt i hellende terreng. Eiendommen har solcelleanlegg og muligheter for helårsvei helt inn til hytta mot betaling.
Velkommen på visning!
Nordre Fjellstølen er et populært hytteområde, og "Bestebu" ligger åpent og solrikt til ca. 980 moh. Her er det vid utsikt utover området, mot Makalausfjellet og områdene rundt. Med hytte her kan en nyte avslappende dager med flotte soloppganger, og sol til langt på kveld sommerstid. Turmulighetene er mange med ca. 650 m til løypenett og milevis av flotte, oppkjørte skiløyper. Til Stavedalen Park med alpinsenter, lekeland og servering er det ca. 6 km.
Hytta ligger på en stor naturtomt i hellende terreng. Eiendommen har solcelleanlegg og muligheter for helårsvei helt inn til hytta mot betaling.
Velkommen på visning!
NB: Knappen for å vise hele beskrivelsen har kun en visuell effekt.
NB: Knappen for å vise hele beskrivelsen har kun en visuell effekt.
Salgsoppgaven beskriver vesentlig og lovpålagt informasjon om eiendommen
Se komplett salgsoppgaveNærområdet
Aktiv Valdres
Annonseinformasjon
| FINN-kode | 369230644 |
|---|---|
| Sist endret | 16. des. 2025 14:20 |
| Referanse | 1201240061 |
Annonsene kan være mangelfulle i forhold til lovpålagt opplysningsplikt. Før bindende avtale inngås oppfordres interessenter til å innhente komplett informasjon fra meglerforetaket, selger eller utleier.





























