Bildegalleri

1. etasje
Løkenåsen platå | Hus 19
Løkenåsen platå - Hus 18
Kort om prosjektet
På Fetsund kan du sikre deg en moderne enebolig i kjede med vestvendte uteplasser og fantastisk utsikt. Med både takterrasse og markterrasse er det masse boltreplass for hele familien. Vakker beliggenhet og praktisk planløsning skal gjøre det godt å vokse opp på Løkenåsen.
Prosjektets status
Planlegging
-
Salgsstart
-
Byggestart
Kun innvendige arbeider som gjenstår!
Overtakelse
Overlevering etter avtale
Nøkkelinfo
- Boligtype
- Enebolig
- Soverom
- 4
- Rom
- 6
- Internt bruksareal
- 171 m² (BRA-i)
- Bruksareal
- 215 m²
- Eksternt bruksareal
- 44 m² (BRA-e)
- Energimerking
- B
Fasiliteter
Beskrivelse
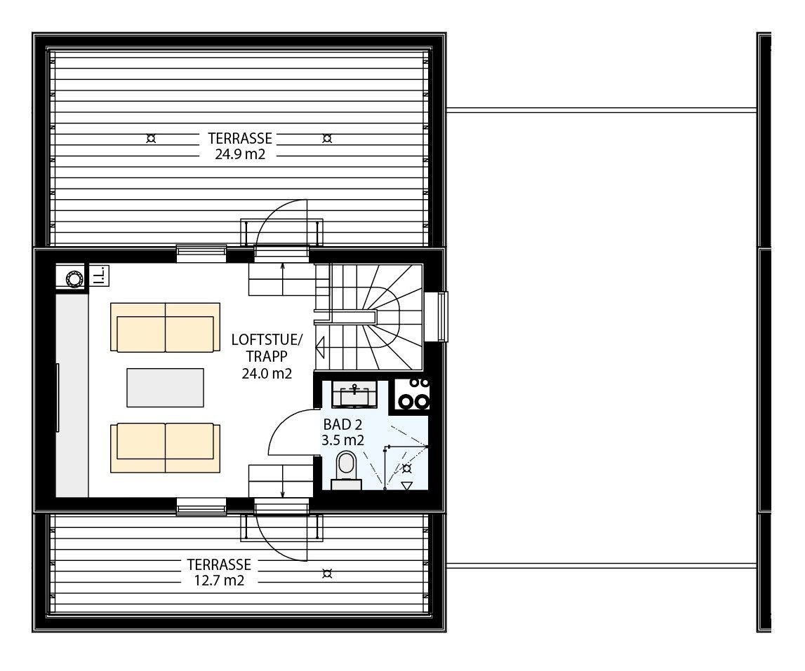
Hus 18
Hus 18 har en solrik og flott takterrasse over dobbel garasje og får en fantastisk utsikt.
Ut fra loftstua i 3. etasje er det store takterrasser på begge sider hvor både morgensol og kveldssol kan nytes i fulle drag.
Nyttige lenker
Nærområdet
OBOS Block Watne AS

OBOS Block Watne AS
Utbygger
Annonseinformasjon
| FINN-kode | 369039534 |
|---|---|
| Sist endret | 29. aug. 2025 12:53 |
| Referanse | Løkenåsen - Hus 18 |
Annonsene kan være mangelfulle i forhold til lovpålagt opplysningsplikt. Før bindende avtale inngås oppfordres interessenter til å innhente komplett informasjon fra meglerforetaket, selger eller utleier.





