Bildegalleri

Velkommen til Bygdøyveien 29A!
Solgt
IDYLLISK PÅ BYGDØY
Idyllisk & delikat enderekkehus m. solrik tomt & garasje m. el-lader, ved Bygdøy Kongsgård. Nær sjø og by - Oppussing
Prisantydning10 950 000 kr
Nøkkelinfo
- Boligtype
- Tomannsbolig
- Eieform
- Andel
- Soverom
- 4
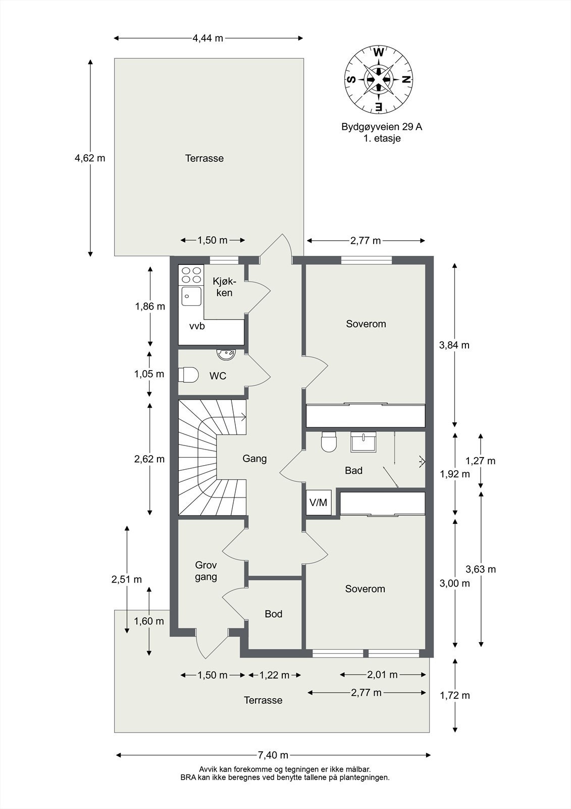
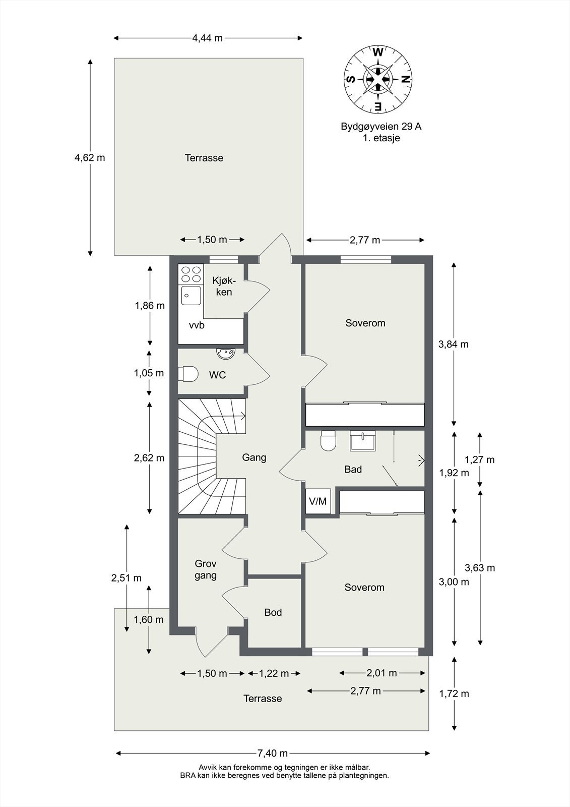
- Internt bruksareal
- 140 m² (BRA-i)
- Bruksareal
- 140 m²
- Balkong/Terrasse
- 42 m² (TBA)
- Byggeår
- 1987
- Energimerking
- G - Rød
- Rom
- 6
- Tomteareal
- 5 080 m² (eiet)
Fasiliteter
Balkong/Terrasse
Barnevennlig
Bredbåndstilknytning
Garasje/P-plass
Hage
Kjæledyr tillatt
Kabel-TV
Parkett
Peis/Ildsted
Rolig
Sentralt
Turterreng
Lademulighet
Om boligen
Et idyllisk og delikat enderekkehus med meget attraktiv beliggenhet på Bygdøy. Boligen ligger i naturskjønne omgivelser, med kort vei både til by og sjø. Her har du kort vei til dagligvare, treningssentre, apotek, restauranter, kaféer, offentlig kommunikasjon m.m. Beliggenheten danner også et godt utgangspunkt for å benytte nærliggende rekreasjonsområder.
Fremstående kvaliteter:
- Praktisk og familievennlig planløsning
- Mulighet for hybel*
- Luftige oppholdsrom m/store vindusflater
- Flere solrike utesoner
- 2 bad + separat wc
- 2 stuer
- 4 sov
- Sosialt kjøkken + hybelkjøkken
- Innvendig + utvendig bod
- Flott og usjenert intern beliggenhet
- Garasje med elbillader og parkering for en ekstra bil
- Gjesteparkering
- Lave omkostninger - Ingen dok. avg.
- Nærhet til skoler og barnehage
Fremstående kvaliteter:
- Praktisk og familievennlig planløsning
- Mulighet for hybel*
- Luftige oppholdsrom m/store vindusflater
- Flere solrike utesoner
- 2 bad + separat wc
- 2 stuer
- 4 sov
- Sosialt kjøkken + hybelkjøkken
- Innvendig + utvendig bod
- Flott og usjenert intern beliggenhet
- Garasje med elbillader og parkering for en ekstra bil
- Gjesteparkering
- Lave omkostninger - Ingen dok. avg.
- Nærhet til skoler og barnehage
NB: Knappen for å vise hele beskrivelsen har kun en visuell effekt.
NB: Knappen for å vise hele beskrivelsen har kun en visuell effekt.
Salgsoppgaven beskriver vesentlig og lovpålagt informasjon om eiendommen
Se komplett salgsoppgaveNyttige lenker
Nærområdet
Nordvik Bærum
Annonseinformasjon
| FINN-kode | 368993834 |
|---|---|
| Sist endret | 23. jan. 2025 12:09 |
| Referanse | 56-0135/24 |
Annonsene kan være mangelfulle i forhold til lovpålagt opplysningsplikt. Før bindende avtale inngås oppfordres interessenter til å innhente komplett informasjon fra meglerforetaket, selger eller utleier.




















































