Bildegalleri

Proaktiv v/Stein Erik Lie presenterer: Spektakulær eiendom beliggende i Montebelloveien 6, Holmestrand.

Inaktiv
Holmestrand

Sjelden anledning! - Spektakulær eiendom med storslått utsikt over Oslofjorden | Tomt på 2,2 mål | Trippelgarasje |

Prisantydning16 900 000 kr
Totalpris
17 323 850 kr
Omkostninger
423 850 kr
Kommunale avg.
21 743 kr per år
Formuesverdi
1 513 230 kr

Nøkkelinfo

Boligtype
Enebolig
Eieform
Eier (Selveier)
Soverom
4
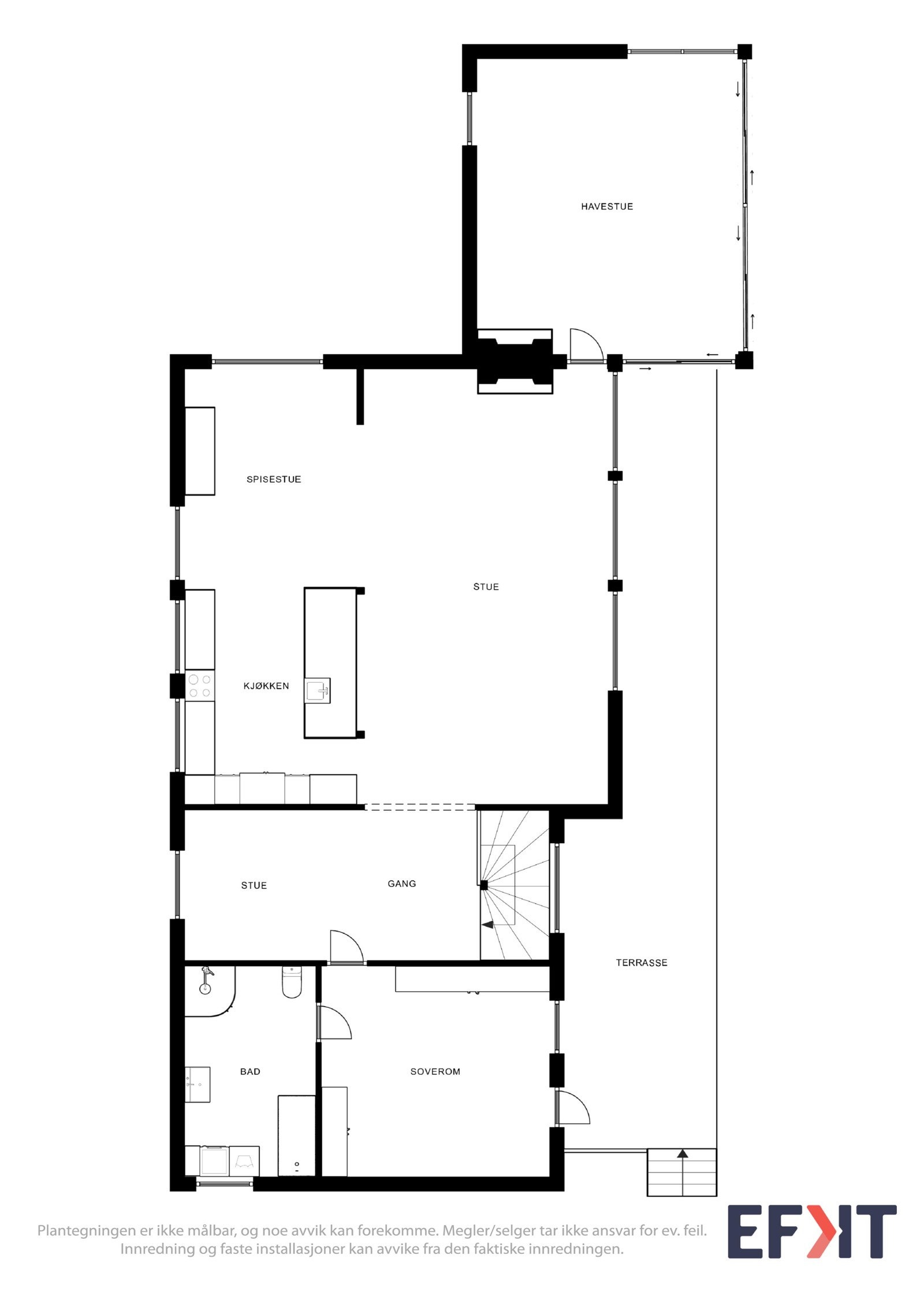
Internt bruksareal
260 m² (BRA-i)
Bruksareal
291 m²
Innglasset balkong
31 m² (BRA-b)
Balkong/Terrasse
125 m² (TBA)
Byggeår
1971
Tomteareal
2 276 m² (eiet)
Boligselgerforsikring
Ja

Les mer om bruksareal her

Fasiliteter

Balkong/Terrasse
Peis/Ildsted
Parkett
Ingen gjenboere
Barnevennlig
Rolig
Moderne
Sentralt
Garasje/P-plass
Turterreng
Offentlig vann/kloakk
Utsikt
Bredbåndstilknytning

Visning

For at vår megler og selger skal kunne gi deg den beste oppfølgingen og kjøpsopplevelsen er det obligatorisk påmelding til alle våre visninger. Dersom ditt reserverte tidspunkt likevel ikke kan benyttes trenger vi beskjed så tidlig som mulig sånn at vi kan finne en alternativ løsning. Vi har alltid tid til deg. Visninger uten påmeldte deltagere avlyses.
Visningspåmelding

Om boligen

Velkommen til en fantastisk eiendom med en helt unik utsikt. Eiendommen ligger høyt og fritt med sjelden god panoramautsikt over Oslofjorden. Utsikten kan nytes fra flere hold, både innenfra og ute. Flere uteplasser omkranser huset og solen kan du følge fra morgen til kveld.


Dette er et stort og innholdsrikt hjem som er svært godt ivaretatt. Innvendig er det gjennomført betydelig oppgradering/ombygging siden opprinnelig byggeår.


Tomten på nærmere 2,3 mål er gjennomført og parkmessig opparbeidet med et imponerende uterom bestående av ulike terrasser, fjellknauser, beplantning, m.m. Gode parkeringsforhold i trippel garasje samt opparbeidet stor parkeringsplass i tilknytning til inngangspartiet. Eiendommen ligger kun 7 min. gange fra Fjellheisen. Toget bruker i underkant av en time til Oslo.

Salgsoppgaven beskriver vesentlig og lovpålagt informasjon om eiendommen

Se komplett salgsoppgave

Nærområdet

Annonseinformasjon

FINN-kode368508764
Sist endret01. okt. 2025 12:44
Referanse106240141

Rapporter annonse

Annonsene kan være mangelfulle i forhold til lovpålagt opplysningsplikt. Før bindende avtale inngås oppfordres interessenter til å innhente komplett informasjon fra meglerforetaket, selger eller utleier.