Bildegalleri

Her har man plass til en større sofagruppe og en større tv.
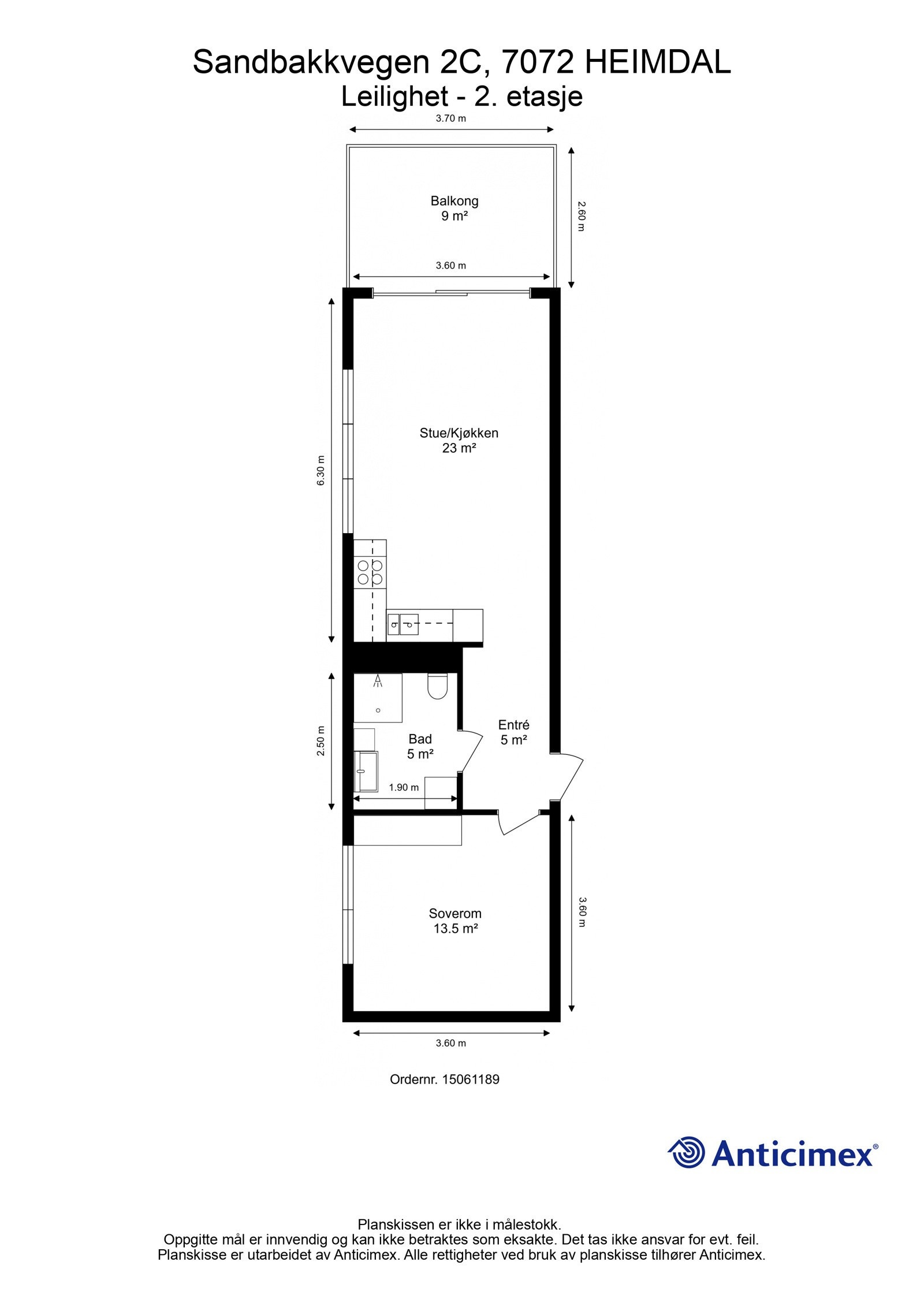
Stilren & moderne selveier fra 2018 med et stort soverom på ca.13.5 m². Tilbaketrukket beliggenhet, heis & fast p-plass.
Nøkkelinfo
- Boligtype
- Leilighet
- Eieform
- Eier (Selveier)
- Soverom
- 1
- Internt bruksareal
- 48 m² (BRA-i)
- Bruksareal
- 56 m²
- Eksternt bruksareal
- 8 m² (BRA-e)
- Balkong/Terrasse
- 9 m² (TBA)
- Etasje
- 2
- Byggeår
- 2018
- Energimerking
- C - Mørkegrønn
- Tomt
- Eiet
Fasiliteter
Om boligen
EIE Eiendomsmegling ved Yasin Unal har gleden av å presentere Sandbakkvegen 2C!
Velkommen til et særdeles attraktivt boligprosjekt på Breidablikk, kun 5 minutters gange fra Heimdal sentrum. Denne leiligheten ligger tilbaketrukket i 2. etasje, helt i enden av blokken, og tilbyr en overbygd balkong med gode solforhold og minimalt innsyn, perfekt for rolige stunder. Bygget ble oppført i 2018 og har to etasjer samt en parkeringskjeller.
Merk deg dette:
- Diskré og solrik balkong i 2. etasje på 9 kvm
- Endeleilighet med flere vindusflater
- TG1 på våtrom
- Stort soverom på ca. 13,5 kvm
- Parkeringsplass i kjeller med elbillader
- Lave felleskostnader og ingen fellesgjeld
- Sportsbod i kjeller på hele 8 kvm
- 10 minutters gange til togstasjon
- Rema1000 Breidablikk i nærheten
- Metrobuss fra Heimdal sentrum
Salgsoppgaven beskriver vesentlig og lovpålagt informasjon om eiendommen
Se komplett salgsoppgaveNærområdet
EIE eiendomsmegling Heimdal
Annonseinformasjon
| FINN-kode | 368372565 |
|---|---|
| Sist endret | 08. sep. 2024 11:24 |
| Referanse | 97240133 |
Annonsene kan være mangelfulle i forhold til lovpålagt opplysningsplikt. Før bindende avtale inngås oppfordres interessenter til å innhente komplett informasjon fra meglerforetaket, selger eller utleier.























