Bildegalleri

Inaktiv
Nasjonalromantiske "Høgtun"
Prisantydning5 950 000 kr
- Omkostninger
- 149 750 kr
- Totalpris
- 6 099 750 kr
- Kommunale avg.
- 17 815 kr per år
- Verditakst
- 5 900 000 kr
Nøkkelinfo
- Beliggenhet
- På fjellet
- Boligtype
- Hytte
- Eieform
- Eier (Selveier)
- Internt bruksareal
- 236 m² (BRA-i)
- Bruksareal
- 328 m²
- Eksternt bruksareal
- 92 m² (BRA-e)
- Tomteareal
- 2 044 m² (eiet)
- Byggeår
- 1976
- Soverom
- 5
- Overtakelse
- Etter nærmere avtale med selger. Vær vennlig å angi ønsket overtagelsesdato i vedlagte budskjema.
Visning
Ønsker du å delta på visningen ber vi deg melde deg på slik at vi vet at du kommer. Da kan vi bistå alle best mulig og gi deg tiden du trenger på visningen. Visningen avholdes bare dersom det er påmeldte senest 8 timer før visning. Ta gjerne kontakt med megler før visning hvis du har noen spørsmål. Velkommen!
VisningspåmeldingOm boligen
Velkommen til et lite stykke Norge, her i Fjellstadvegen 70!
Eiendommen ligger fritt og luftig til, øverst i Sørbygda i Øyer og i umiddelbar nærhet til Hafjell. Her har man meget gode solforhold, panoramautsikt og kort vei til alpine aktiviteter i og rundt Hafjell.
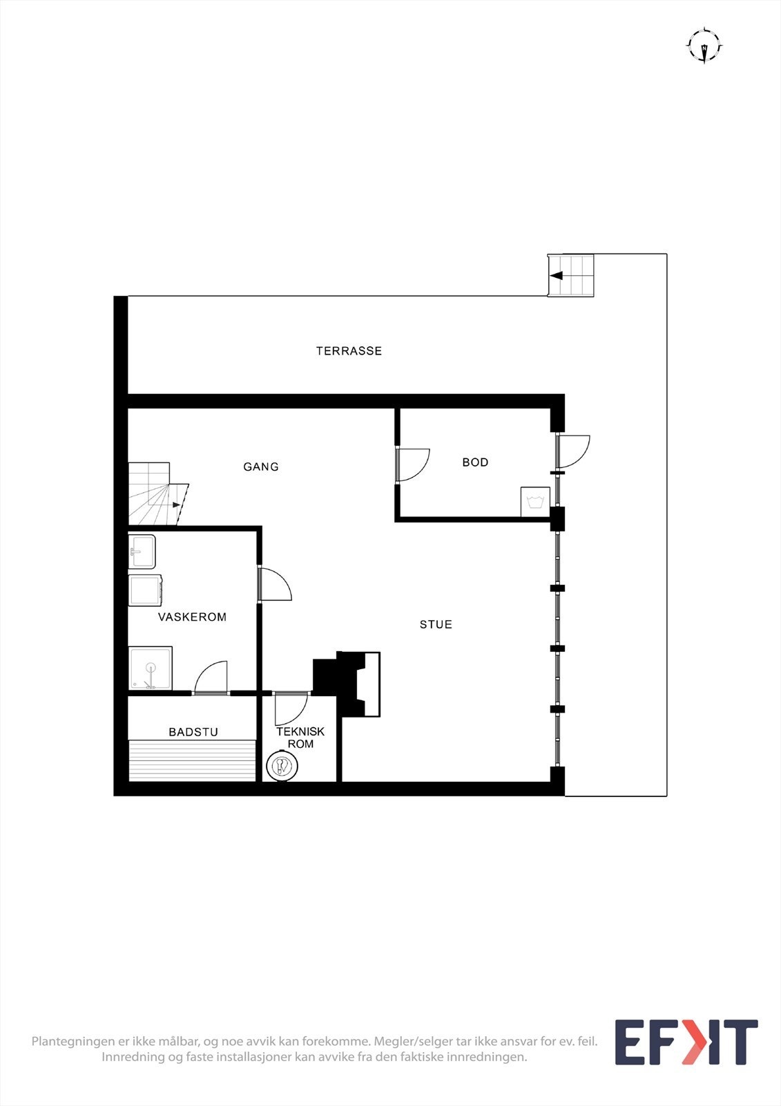
Tunet består av hovedhytten, stabbur og garasje - alle i laftet og gjennomført utførelse. I hytten finner vi bl.a. 5 soverom, 3 bad, flere stuer og mange ulike soner - perfekt for storfamilien!
En idyllisk eiendom, med mye sjel - velkommen til visning!
Eiendommen ligger fritt og luftig til, øverst i Sørbygda i Øyer og i umiddelbar nærhet til Hafjell. Her har man meget gode solforhold, panoramautsikt og kort vei til alpine aktiviteter i og rundt Hafjell.
Tunet består av hovedhytten, stabbur og garasje - alle i laftet og gjennomført utførelse. I hytten finner vi bl.a. 5 soverom, 3 bad, flere stuer og mange ulike soner - perfekt for storfamilien!
En idyllisk eiendom, med mye sjel - velkommen til visning!
NB: Knappen for å vise hele beskrivelsen har kun en visuell effekt.
NB: Knappen for å vise hele beskrivelsen har kun en visuell effekt.
Salgsoppgaven beskriver vesentlig og lovpålagt informasjon om eiendommen
Se komplett salgsoppgaveNyttige lenker
Nærområdet
EiendomsMegler 1 Østlandet - avd. Lillehammer
Vi loser deg trygt gjennom hele boligsalget
Annonseinformasjon
| FINN-kode | 368018879 |
|---|---|
| Sist endret | 20. okt. 2024 21:19 |
| Referanse | 19240028 |
Annonsene kan være mangelfulle i forhold til lovpålagt opplysningsplikt. Før bindende avtale inngås oppfordres interessenter til å innhente komplett informasjon fra meglerforetaket, selger eller utleier.


































