Bildegalleri

Velkommen til Haugerudhagan 82 - Presentert av Kamilla Jæger og Blanca Gravador.
Solgt
HAUGERUD
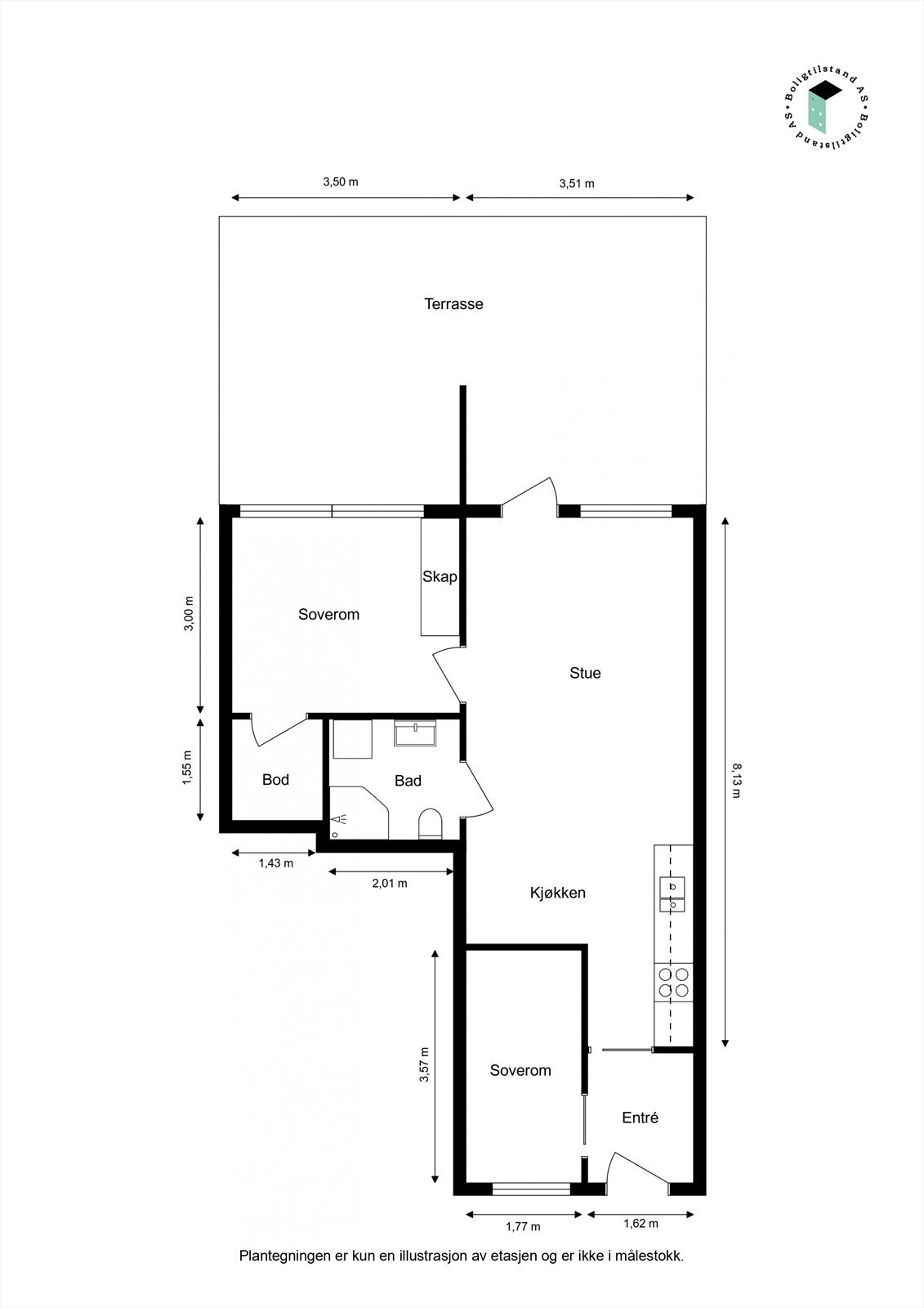
Pen 3-R m/skjermet og solrik terrasse på hele 33 kvm. Garasje. Lave bokostnader. Trappefri adkomst. Grønt og sentralt!
Prisantydning3 980 000 kr
Nøkkelinfo
- Boligtype
- Leilighet
- Eieform
- Andel
- Soverom
- 2
- Internt bruksareal
- 54 m² (BRA-i)
- Bruksareal
- 58 m²
- Eksternt bruksareal
- 4 m² (BRA-e)
- Balkong/Terrasse
- 33 m² (TBA)
- Etasje
- 1
- Byggeår
- 2006
- Energimerking
- D - Rød
- Rom
- 3
- Tomteareal
- 37 903 m² (eiet)
Fasiliteter
Balkong/Terrasse
Barnevennlig
Bredbåndstilknytning
Garasje/P-plass
Hage
Heis
Kjæledyr tillatt
Kabel-TV
Offentlig vann/kloakk
Parkett
Rolig
Sentralt
Vaktmester-/vektertjeneste
Turterreng
Lademulighet
Balansert ventilasjon
Om boligen
Velkommen til Haugerudhagan 82 - en pen 3-roms med ypperlig intern beliggenhet innerst i blindvei på Haugerud. Boligen ligger i et stille og populært boligområde uten gjennomgangstrafikk, med nærhet til skoler, flere barnehager, marka samt et rikt utvalg av fasiliteter og servicetilbud. Kombnasjonen av grønne og rolige og omgivelser i et samtidig sentralt bomiljø gjør dette til et meget attraktivt sted å bo.
Hovedkvaliteter:
- Boligbygg fra 2006
- Skjermet markterrasse på 33 kvm med gode solforhold
- Garasjeplass medfølger
- 2 gode soverom
- Innvendig bod
- Romslig bod beliggende rett utenfor inngangsdør
- Gjennomgående god standard
- Luftig og sosial planløsning
- Få minutter til T-bane og flere bussforbindelser
- Kort vei til marka med flotte turmuligheter
- Eldorado for barnefamilier
Hovedkvaliteter:
- Boligbygg fra 2006
- Skjermet markterrasse på 33 kvm med gode solforhold
- Garasjeplass medfølger
- 2 gode soverom
- Innvendig bod
- Romslig bod beliggende rett utenfor inngangsdør
- Gjennomgående god standard
- Luftig og sosial planløsning
- Få minutter til T-bane og flere bussforbindelser
- Kort vei til marka med flotte turmuligheter
- Eldorado for barnefamilier
NB: Knappen for å vise hele beskrivelsen har kun en visuell effekt.
NB: Knappen for å vise hele beskrivelsen har kun en visuell effekt.
Salgsoppgaven beskriver vesentlig og lovpålagt informasjon om eiendommen
Se komplett salgsoppgaveNyttige lenker
Nærområdet
Aktiv Gamle Oslo/Bjørvika
Prisstatistikk
Haugerudhagan 82
2 297 klikk
på annonsen
73 962 kr
prisantydning per kvadratmeter
Prisfordeling
Pris per m² ligger 2 962 kr over snittet for leiligheter i Hellerud.
Grafen viser antall leiligheter solgt i Hellerud siste året fordelt på pris per m² - totalt 438 leiligheter
Antall boliger
Kvadratmeterpris tilsvarer prisantydning pluss fellesgjeld per kvadratmeter (p-rom eller BRA-i). Prisene i grafen er avrundet til nærmeste 1000 kr.
Annonseinformasjon
| FINN-kode | 367534282 |
|---|---|
| Sist endret | 09. okt. 2024 12:21 |
| Referanse | 1002240250 |
Annonsene kan være mangelfulle i forhold til lovpålagt opplysningsplikt. Før bindende avtale inngås oppfordres interessenter til å innhente komplett informasjon fra meglerforetaket, selger eller utleier.
































