Bildegalleri

Inaktiv
ÅSVEIEN/BYÅSEN
Arkitekttegnet enebolig med pent opparbeidet tomt. Særegne detaljer og svært sentral beliggenhet.
Prisantydning8 250 000 kr
Nøkkelinfo
- Boligtype
- Enebolig
- Eieform
- Eier (Selveier)
- Soverom
- 3
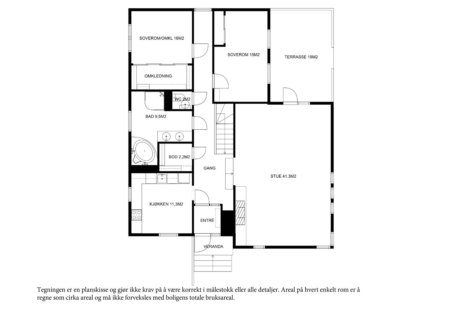
- Internt bruksareal
- 162 m² (BRA-i)
- Bruksareal
- 184 m²
- Eksternt bruksareal
- 22 m² (BRA-e)
- Balkong/Terrasse
- 18 m² (TBA)
- Byggeår
- 1962
- Energimerking
- F - Gul
- Rom
- 4
- Tomteareal
- 674 m² (eiet)
- Boligselgerforsikring
- Ja
Fasiliteter
Balkong/Terrasse
Peis/Ildsted
Parkett
Barnevennlig
Rolig
Sentralt
Garasje/P-plass
Offentlig vann/kloakk
Visning
For at vår megler og selger skal kunne gi deg den beste oppfølgingen og kjøpsopplevelsen er det obligatorisk påmelding til alle våre visninger. Dersom ditt reserverte tidspunkt likevel ikke kan benyttes trenger vi beskjed så tidlig som mulig sånn at vi kan finne en alternativ løsning. Vi har alltid tid til deg. Visninger uten påmeldte deltagere avlyses.
VisningspåmeldingOm boligen
Velkommen til Jakobstien 8! En frittliggende arkitekttegnet enebolig med vakkert særpreg og pent opparbeidet tomt med nydelige utearealer. Flott beliggenhet med gode solforhold. Eiendommen har egen innbygd garasje i underetasje. Svært barnevennlig i rolig blindgate og med ca. 400 meters gange til nye Åsveien skole. Boligen fremstår som godt holdt og svært innholdsrik, og omkranset av grøntareal.
Boligens fremste kvaliteter
- Attraktiv og barnevennlig beliggenhet, innerst i blindgate.
- Pent opparbeidet tomt med flotte utearealer og gode solforhold.
- Solrik markterrasse på 18 kvm.
- Romslig stue med takvinduer som gir rikelig med naturlig lys.
- Trygg og kort skolevei.
- Romslig kjøkken fra 2019.
- Ny luft-til-luft varmepumpe i 2018.
- Pent oppbarbeidet tomt på 674 kvm.
NB: Knappen for å vise hele beskrivelsen har kun en visuell effekt.
NB: Knappen for å vise hele beskrivelsen har kun en visuell effekt.
Salgsoppgaven beskriver vesentlig og lovpålagt informasjon om eiendommen
Se komplett salgsoppgaveNyttige lenker
Nærområdet
Proaktiv Eiendomsmegling Trondheim Sentrum
Alltid tid til deg
Annonseinformasjon
| FINN-kode | 367420915 |
|---|---|
| Sist endret | 28. juni 2025 15:44 |
| Referanse | 79240218 |
Annonsene kan være mangelfulle i forhold til lovpålagt opplysningsplikt. Før bindende avtale inngås oppfordres interessenter til å innhente komplett informasjon fra meglerforetaket, selger eller utleier.

















































