Bildegalleri

VELKOMMEN TIL JUVENESVEGEN 693
Solgt
FAGERFJELL
En stor familiehytte med fin beliggenhet om du vil ha litt luft rundt hytta. 4 soverom og mye plass
Prisantydning2 600 000 kr
- Omkostninger
- 66 350 kr
- Totalpris
- 2 666 350 kr
- Kommunale avg.
- 4 428 kr per år
- Eiendomsskatt
- 3 951 kr per år
Nøkkelinfo
- Beliggenhet
- På fjellet
- Boligtype
- Hytte
- Eieform
- Eier (Selveier)
- Internt bruksareal
- 82 m² (BRA-i)
- Bruksareal
- 85 m²
- Eksternt bruksareal
- 3 m² (BRA-e)
- Balkong/Terrasse
- 30 m² (TBA)
- Tomteareal
- 3 000 m² (festet)
- Festeavgift
- 4 524 kr
- Byggeår
- 1965
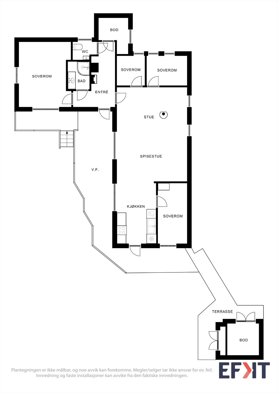
- Soverom
- 4
- Energimerking
- G - Rød
Fasiliteter
Innlagt vann
Alpinanlegg
Balkong/Terrasse
Barnevennlig
Bilvei frem
Peis/Ildsted
Rolig
Utsikt
Bademulighet
Fiskemulighet
Innlagt strøm
Turterreng
Om boligen
# Meget god beliggenhet med mye luft rundt hytta
# Store og delvis overbygde terrasser sikrer deg gode uteforhold uansett vær. Her er det bra med sol
# 4 soverom
# Fin kjøkkenløsning med mye skap og benkplass
# Trenger du ikke 4 soverom så er hovedsoverommet en perfekt stue nr 2
Heisann, Simen Smith Ringdal fra NORDVIK BOLIG her. Nå har jeg gleden av å presentere en praktisk hytte på Fagerfjell. Her er du opp i terrenget og med godt utsyn. Her får du metervis av terrasser, både med og uten overbygg. Og akkurat en overbygget terrasse setter man fort pris på i fjellheimen. Det er mye vær her. Hytta har en meget fin planløsning der du får hele 4 soverom eller 3 soverom og 2 stuer. Dette er en hytte som får plass til hele familien og som ligger med gode skimuligheter.
Velkommen på visning
# Store og delvis overbygde terrasser sikrer deg gode uteforhold uansett vær. Her er det bra med sol
# 4 soverom
# Fin kjøkkenløsning med mye skap og benkplass
# Trenger du ikke 4 soverom så er hovedsoverommet en perfekt stue nr 2
Heisann, Simen Smith Ringdal fra NORDVIK BOLIG her. Nå har jeg gleden av å presentere en praktisk hytte på Fagerfjell. Her er du opp i terrenget og med godt utsyn. Her får du metervis av terrasser, både med og uten overbygg. Og akkurat en overbygget terrasse setter man fort pris på i fjellheimen. Det er mye vær her. Hytta har en meget fin planløsning der du får hele 4 soverom eller 3 soverom og 2 stuer. Dette er en hytte som får plass til hele familien og som ligger med gode skimuligheter.
Velkommen på visning
NB: Knappen for å vise hele beskrivelsen har kun en visuell effekt.
NB: Knappen for å vise hele beskrivelsen har kun en visuell effekt.
Salgsoppgaven beskriver vesentlig og lovpålagt informasjon om eiendommen
Se komplett salgsoppgaveNyttige lenker
Nærområdet
Nordvik Sandefjord
Vi vet hva det er verdt
Annonseinformasjon
| FINN-kode | 367180014 |
|---|---|
| Sist endret | 21. jan. 2026 21:44 |
| Referanse | 40-0089/24 |
Annonsene kan være mangelfulle i forhold til lovpålagt opplysningsplikt. Før bindende avtale inngås oppfordres interessenter til å innhente komplett informasjon fra meglerforetaket, selger eller utleier.






























