Bildegalleri

Velkommen til Mikael Hertzbergs vei 4! En sjarmerende bolig med oppussingsbehov, ideell for deg som vil skape ditt drømmehjem. I tillegg følger det med rammetillatelse for bygging av en enebolig på 321,1 m² BRA.
Solgt
GREFSEN
Bolig med oppussingsbehov - Ramme for nytt hus foreligger - Rolig beliggenhet - Sjelden mulighet - Markanært!
Prisantydning8 600 000 kr
Nøkkelinfo
- Boligtype
- Enebolig
- Eieform
- Eier (Selveier)
- Soverom
- 1
- Internt bruksareal
- 42 m² (BRA-i)
- Bruksareal
- 42 m²
- Etasje
- 1
- Byggeår
- 1940
- Energimerking
- G - Oransje
- Rom
- 2
- Tomteareal
- 670 m² (eiet)
Fasiliteter
Alpinanlegg
Barnevennlig
Bredbåndstilknytning
Garasje/P-plass
Hage
Peis/Ildsted
Rolig
Sentralt
Bademulighet
Turterreng
Om boligen
Velkommen til Mikael Hertzbergs vei 4!
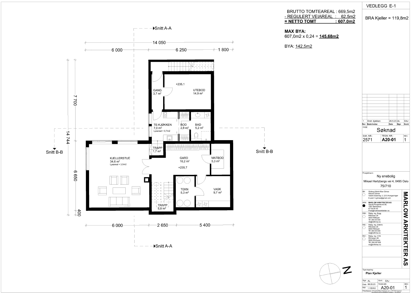
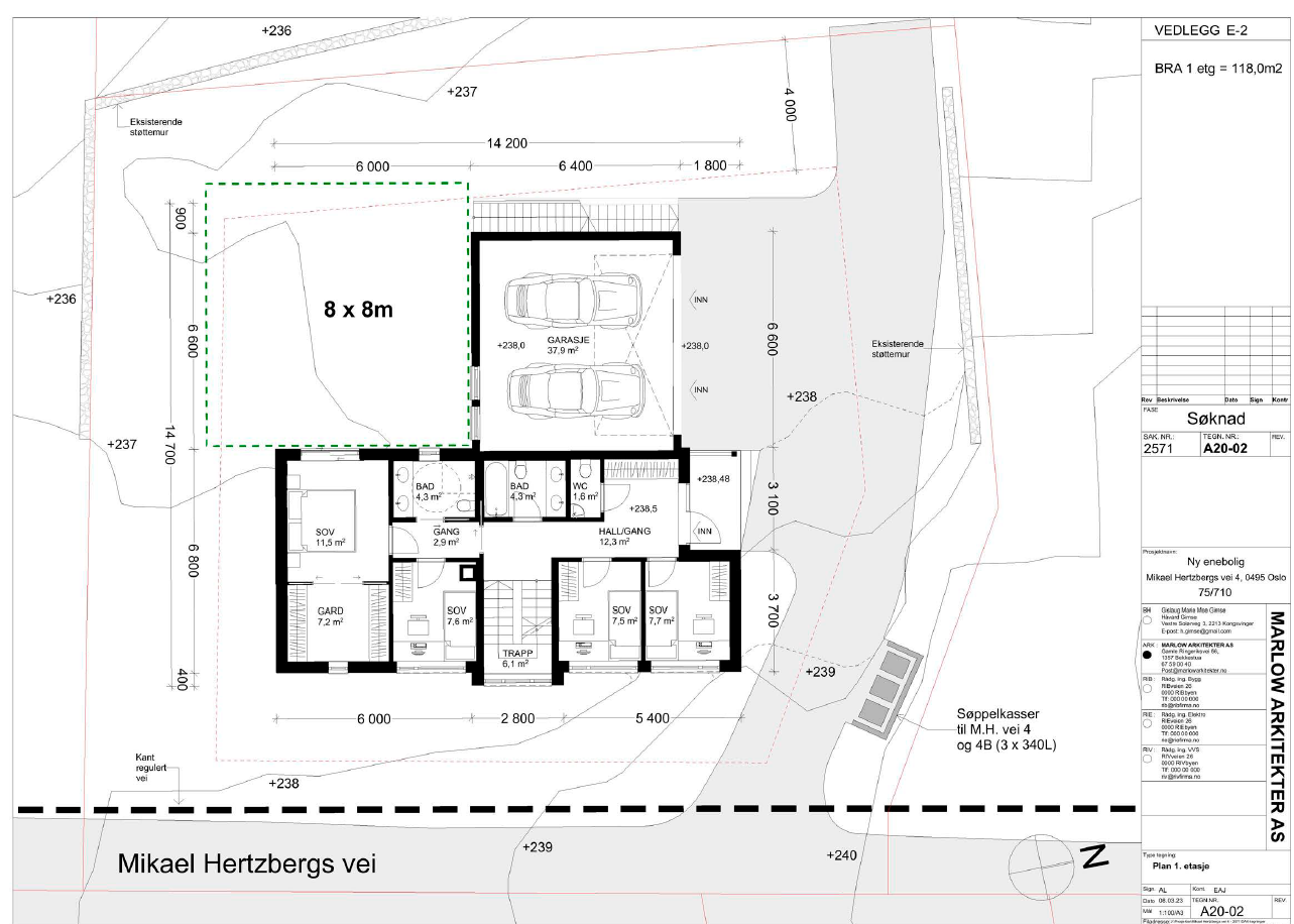
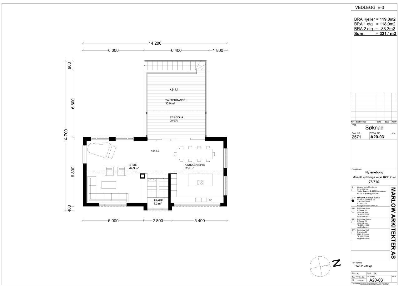
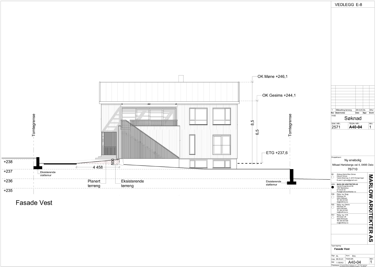
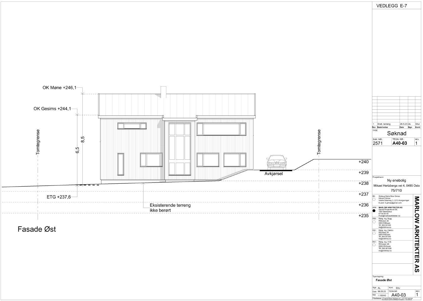
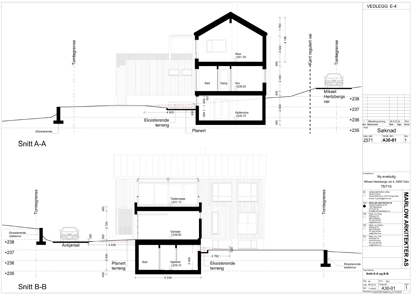
Dette er en sjarmerende bolig med oppussingsbehov, perfekt for deg som ønsker å sette ditt eget preg. Her bor du i populære Grefsen med marka som nærmeste nabo og enkel tilgang til områdets mange fritidsmuligheter. Det foreligger godkjent rivnings- og rammetillatelse for oppføring av enebolig med 321 m² BRA. Det er godkjent å bygge tre etasjer, inkludert kjeller, med gesimshøyde på 6,5 m og mønehøyde på 8,5 m.
- Arkitekttegnet enebolig (Marlow arkitekter AS)
- 24% utnyttelsesgrad frem til rammetillatelsen går ut, unik mulighet!
- Planlagt dobbelgarasje m/ tilhørende takterrasse med gode sol- og utsiktsforhold
- Tegnet inn egen utleieleilighet på ca. 50 kvm
- Privat blindvei rett ved Marka
- Sjelden mulighet!
Dette er en sjarmerende bolig med oppussingsbehov, perfekt for deg som ønsker å sette ditt eget preg. Her bor du i populære Grefsen med marka som nærmeste nabo og enkel tilgang til områdets mange fritidsmuligheter. Det foreligger godkjent rivnings- og rammetillatelse for oppføring av enebolig med 321 m² BRA. Det er godkjent å bygge tre etasjer, inkludert kjeller, med gesimshøyde på 6,5 m og mønehøyde på 8,5 m.
- Arkitekttegnet enebolig (Marlow arkitekter AS)
- 24% utnyttelsesgrad frem til rammetillatelsen går ut, unik mulighet!
- Planlagt dobbelgarasje m/ tilhørende takterrasse med gode sol- og utsiktsforhold
- Tegnet inn egen utleieleilighet på ca. 50 kvm
- Privat blindvei rett ved Marka
- Sjelden mulighet!
NB: Knappen for å vise hele beskrivelsen har kun en visuell effekt.
NB: Knappen for å vise hele beskrivelsen har kun en visuell effekt.
Salgsoppgaven beskriver vesentlig og lovpålagt informasjon om eiendommen
Se komplett salgsoppgaveNyttige lenker
Nærområdet
Nordvik Nydalen
Annonseinformasjon
| FINN-kode | 367061465 |
|---|---|
| Sist endret | 13. jan. 2026 14:24 |
| Referanse | 20-0291/24 |
Annonsene kan være mangelfulle i forhold til lovpålagt opplysningsplikt. Før bindende avtale inngås oppfordres interessenter til å innhente komplett informasjon fra meglerforetaket, selger eller utleier.










































