Bildegalleri

Dette er en flott og svært innholdsrik enebolig.
Familievennlig og svært innholdsrik enebolig | Hybel | 10 soverom | Gode inntjeningsmuligheter-55.000 mnd| Dobbelgarasje
Nøkkelinfo
- Boligtype
- Enebolig
- Eieform
- Eier (Selveier)
- Soverom
- 10
- Internt bruksareal
- 301 m² (BRA-i)
- Bruksareal
- 301 m²
- Eksternt bruksareal
- 31 m² (BRA-e)
- Balkong/Terrasse
- 52 m² (TBA)
- Byggeår
- 1990
- Tomteareal
- 977 m² (eiet)
Visning
Om boligen
EIE Eiendomsmegling v/ Roksana Risberg har gleden av å presentere Trolldalsvegen 3!
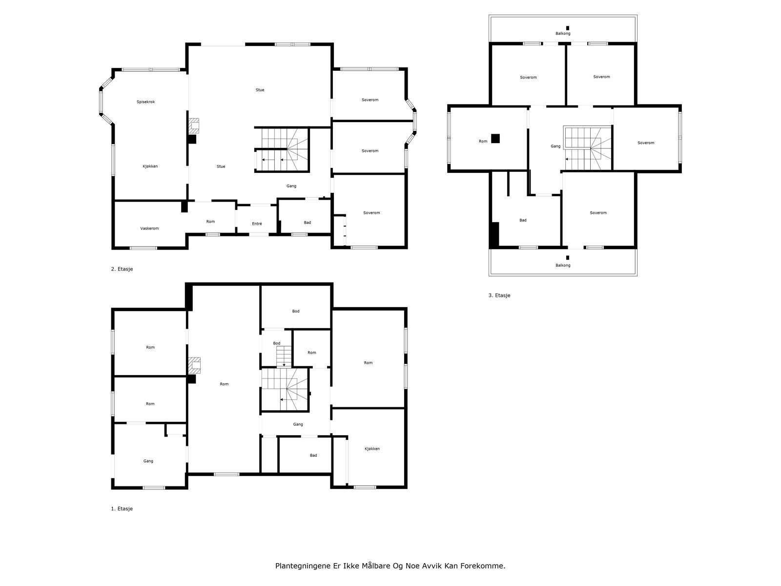
Dette er en svært innholdsrik og familievennlig enebolig som strekker seg over tre plan og 301 m2 BRA-i. Nåværende eier har hatt leieinntekter på ca. 660.000,- i året.
Boligen kan blant annet by på åtte soverom i hoveddelen, romslige stue, pent kjøkken med integrerte hvitevarer, to baderom og vaskerom. Det er innredet hybel i underetasjen, pusset opp i 2024, med to soverom, kjøkken, stue, bad og flere boder. Uteområdene har stor terrrasse, balkong og grønne gressplener med skjermet beliggenhet. Parkering i dobbelgarasje og på tomten.
Boligen har en attraktiv og barnevennlig beliggenhet på Åsgreina i Nannestad kommune. Nærhet til skoler, barnehager, offentlig kommunikasjon samt dagligvarehandel.
Salgsoppgaven beskriver vesentlig og lovpålagt informasjon om eiendommen
Se komplett salgsoppgaveNærområdet
EIE eiendomsmegling Råholt
Annonseinformasjon
| FINN-kode | 367003471 |
|---|---|
| Sist endret | 01. juli 2025 15:59 |
| Referanse | 101240101 |
Annonsene kan være mangelfulle i forhold til lovpålagt opplysningsplikt. Før bindende avtale inngås oppfordres interessenter til å innhente komplett informasjon fra meglerforetaket, selger eller utleier.

































































