Bildegalleri

Fasade vertikaldelt tomannsbolig med utleieenhet
Olahola Allé
Vertikaldelt tomannsbolig med utleieenhet
Kort om prosjektet
Velkommen til Olahola Allè sentralt på Nordfjordeid - en unik mulighet til å sikre seg en romslig og praktisk bolig med flott beliggenhet og fantastisk fjordutsikt.
Prosjektets status
Planlegging
Grunnarbeid pågår
Salgsstart
23.08.24
Byggestart
Høst/vinter 2024
Overtakelse
Etter avtale
Nøkkelinfo
- Boligtype
- Enebolig
- Etasje
- 2
- Soverom
- 4
- Bruksareal
- 149 m²
Fasiliteter
Visning
Ta kontakt for å avtale visning.Beskrivelse
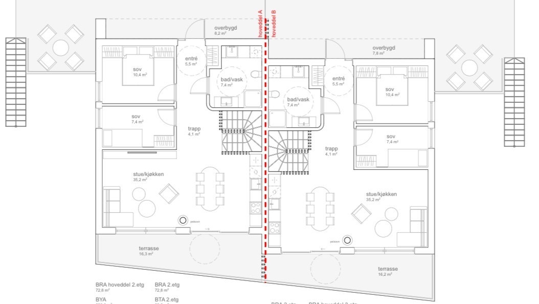
Nøkkelferdig vertikaldelt tomannsbolig med utleieenhet i egen gate, Olahola Allé i Hogaåsen på Nordfjordeid.
Boligene er på totalt 149 m2.
Hoveddelen er på 110 m2 med tre soverom fordelt på 1 soverom i første etasje og to soverom i andre etasje.
Utleieenheten er på 39 m2 med ett soverom.
Det er mulig å utvide leiligheten ved å ta inn soverommet i første etasje fra hoveddelen.
Boligene har egen parkering, sportsbod og gjesteparkering.
Fordeler ved kjøp av ny bolig/leilighet
Det er mange fordeler med å kjøpe ny leilighet kontra det å kjøpe brukt, tenk på den fantastiske følelsen av å flytte inn i en splitter ny leilighet med fantastisk beliggenhet, utsikt og høy standard.
Fordeler:
- Alt er nytt, ikke behov for oppussing på mange år.
- Mer energieffektiv bolig, lave kostnader til oppvarming.
- Lave kostnader til vedlikehold.
- Mulighet til å påvirke utforming og innredning.
- Tidsriktig og praktisk bolig.
- Ett sikrere kjøp, garantitid om feil oppstår.
- Du slepp hektiske budrunder.
- Lave kjøpskostnader, kun omkostninger til tinglysning av skøyte på kr. 14.500,- som kommer i tillegg.
Ta kontakt for å få tilsendt leveransebeskrivelse
Nærområdet
UNU Eiendomsutvikling AS
Unu Eiendomsutvikling AS
Utbygger
Annonsene kan være mangelfulle i forhold til lovpålagt opplysningsplikt. Før bindende avtale inngås oppfordres interessenter til å innhente komplett informasjon fra meglerforetaket, selger eller utleier.






