Bildegalleri

Velkommen til Ovenstadlia 68!
Solgt
Lierskogen
Flott & romslig familiebolig med 3 etasjer. 2 bad. Fine uteplasser. Hage. Dobbelgarasje m/loft. Barnevennlig beliggenhet
Prisantydning7 890 000 kr
Nøkkelinfo
- Boligtype
- Enebolig
- Eieform
- Eier (Selveier)
- Soverom
- 4
- Internt bruksareal
- 195 m² (BRA-i)
- Bruksareal
- 244 m²
- Eksternt bruksareal
- 49 m² (BRA-e)
- Balkong/Terrasse
- 57 m² (TBA)
- Etasje
- 3
- Byggeår
- 1996
- Energimerking
- E - Rød
- Rom
- 6
- Tomteareal
- 707 m² (eiet)
Fasiliteter
Balkong/Terrasse
Barnevennlig
Bredbåndstilknytning
Garasje/P-plass
Hage
Kjæledyr tillatt
Kabel-TV
Offentlig vann/kloakk
Peis/Ildsted
Rolig
Utsikt
Turterreng
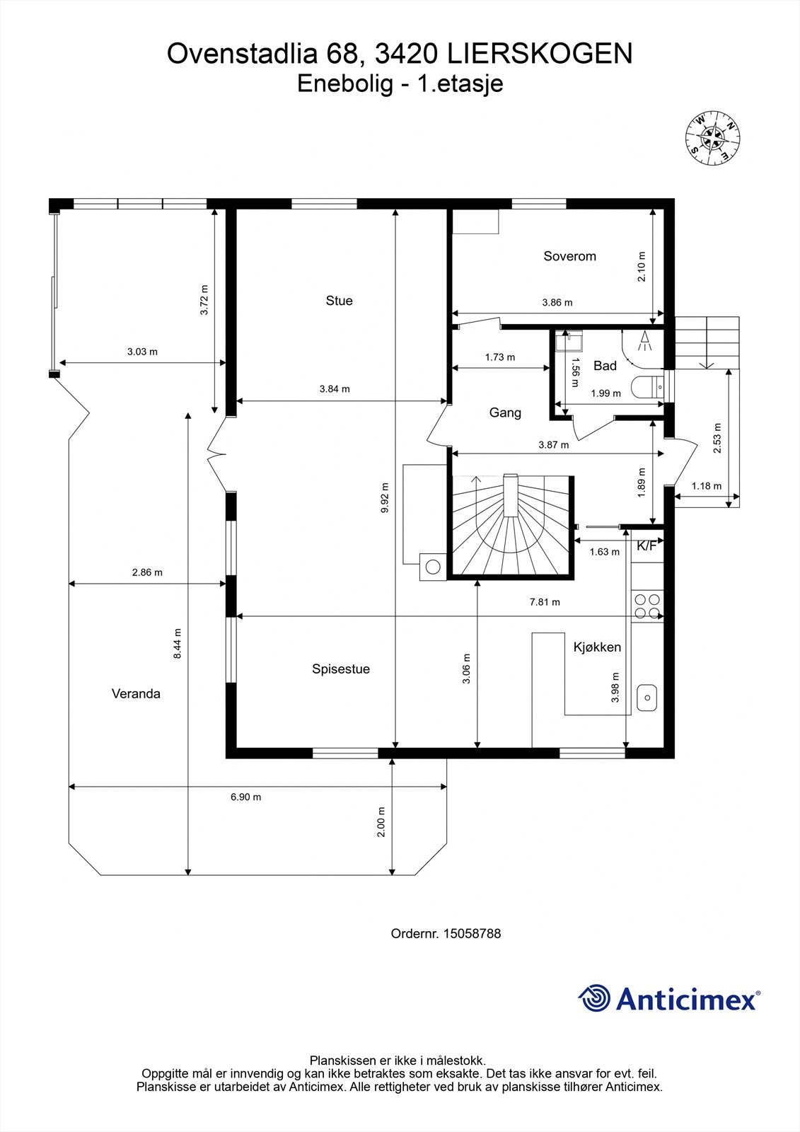
Om boligen
Flott og romslig familiebolig med 3 etasjer.
- Flott familiebolig mtp. innhold, størrelse og planløsning
- Gjennomtenkte og gode rom/planløsninger
- Fin stue med peis og åpen løsning mot kjøkkenet
- Profilert kjøkken med integrerte hvitevarer og barløsning
- Bad i 1. etg med dusjhjørne og bad i u. etg med dusjnisje samt badekar
- Separat vaskerom med skap
- Loft med flere innredningsmuligheter
- Fine og romslige uteplasser samt praktisk opparbeidet hage
- Dobbelgarasje med stort lagringsloft
- Eiendommen har en attraktiv og barnevennlig beliggenhet
- Kort gangavstand til barneskole, idrettshall og barnehage med trygg gangvei
- Gangavstand til buss mot Asker/Oslo/Drammen og matbutikk (Kiwi)
- Flott turterreng med skiløyper og stier i nærheten av eiendommen
NB: Knappen for å vise hele beskrivelsen har kun en visuell effekt.
NB: Knappen for å vise hele beskrivelsen har kun en visuell effekt.
Salgsoppgaven beskriver vesentlig og lovpålagt informasjon om eiendommen
Se komplett salgsoppgaveNyttige lenker
Nærområdet
Krogsveen Drammen
Velkommen til en enklere boligreise.

Morten Solberg Helgerud
Daglig leder / Jurist / Eiendomsmegler / Partner
Prisstatistikk
Ovenstadlia 68
9 280 klikk
på annonsen
40 461 kr
prisantydning per kvadratmeter
Prisfordeling
Pris per m² ligger 3 461 kr over snittet for eneboliger i Lier.
Grafen viser antall eneboliger solgt i Lier siste året fordelt på pris per m² - totalt 177 eneboliger
Antall boliger
Kvadratmeterpris tilsvarer prisantydning pluss fellesgjeld per kvadratmeter (p-rom eller BRA-i). Prisene i grafen er avrundet til nærmeste 1000 kr.
Annonseinformasjon
| FINN-kode | 366810237 |
|---|---|
| Sist endret | 05. apr. 2025 11:14 |
| Referanse | KR20.24194 |
Annonsene kan være mangelfulle i forhold til lovpålagt opplysningsplikt. Før bindende avtale inngås oppfordres interessenter til å innhente komplett informasjon fra meglerforetaket, selger eller utleier.








































