Bildegalleri

Solgt
Ullernkammen 8
Hus C
Prisantydning18 500 000 kr
Prosjektets status
Planlegging
Utarbeidelse av salgsmateriell
Salgsstart
Høst 2024
Byggestart
Høst 2024
Overtakelse
1.kvartal 2026
Nøkkelinfo
- Boligtype
- Enebolig
- Soverom
- 4
- Internt bruksareal
- 158 m² (BRA-i)
- Bruksareal
- 196 m²
- Eksternt bruksareal
- 38 m² (BRA-e)
- Balkong/Terrasse
- 42 m² (TBA)
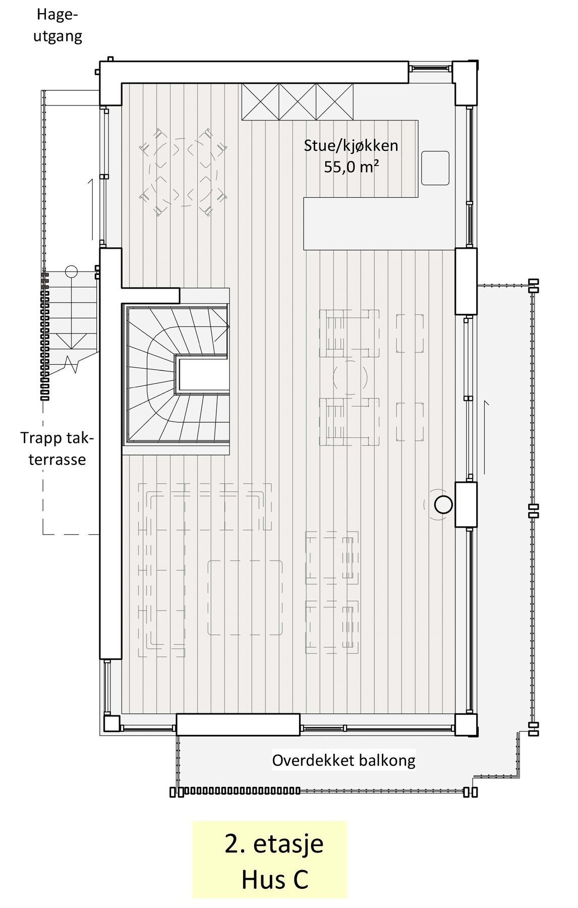
Beskrivelse
Totalt BRA:196,2 m²
Underetasje, 49,9 m² BRA-i :
Entre, vaskerom/ teknisk rom, soverom, stue/ alternativt soverom og bad.
1.etasje, 53,7 m² BRA-i :
Gang, 2 bad, 2 soverom, hovedsoverom med garderoberom
2.etasje, 54,6 m² BRA-i:
Stue/ kjøkken med utgang til balkong på 12 m²
Takterrasse: 30 m²
Garasje/ Bod: 38 m²
NB: Knappen for å vise hele beskrivelsen har kun en visuell effekt.
NB: Knappen for å vise hele beskrivelsen har kun en visuell effekt.
Nyttige lenker
Nærområdet
TINHOLT Eiendomsmegling
Du vil kjenne forskjellen
Annonseinformasjon
| FINN-kode | 366657563 |
|---|---|
| Sist endret | 03. okt. 2024 14:59 |
| Referanse | 201241033 |
Annonsene kan være mangelfulle i forhold til lovpålagt opplysningsplikt. Før bindende avtale inngås oppfordres interessenter til å innhente komplett informasjon fra meglerforetaket, selger eller utleier.








