Bildegalleri

Eiendomsmegler Krogsveen v/ Øystein Thorsen har gleden av å presentere Bjerkebakken 4 H - en flott og innholdsrik enebolig med sokkelleilighet i et populært boligområde
Inaktiv
Sætreskogen
Pen arkitekttegnet villa med 3-roms utleieleilighet, bergvarme og pent opparbeidet uteområder - Carport med lagringsloft
Prisantydning9 500 000 kr
Nøkkelinfo
- Boligtype
- Enebolig
- Eieform
- Eier (Selveier)
- Soverom
- 5
- Internt bruksareal
- 209 m² (BRA-i)
- Bruksareal
- 212 m²
- Eksternt bruksareal
- 3 m² (BRA-e)
- Balkong/Terrasse
- 79 m² (TBA)
- Etasje
- 3
- Byggeår
- 1999
- Energimerking
- C - Lysegrønn
- Renovert år
- 2022
- Tomteareal
- 803 m² (eiet)
Fasiliteter
Balkong/Terrasse
Barnevennlig
Garasje/P-plass
Hage
Offentlig vann/kloakk
Peis/Ildsted
Sentralt
Visning
PRIVATVISNING etter avtale. Ta kontakt med megler for avtale.
Ønsker du kun å bli holdt orientert, kan du fra eiendommens hjemmeside få varsel om solgtpris, eller kontakte megler.
VisningspåmeldingOm boligen
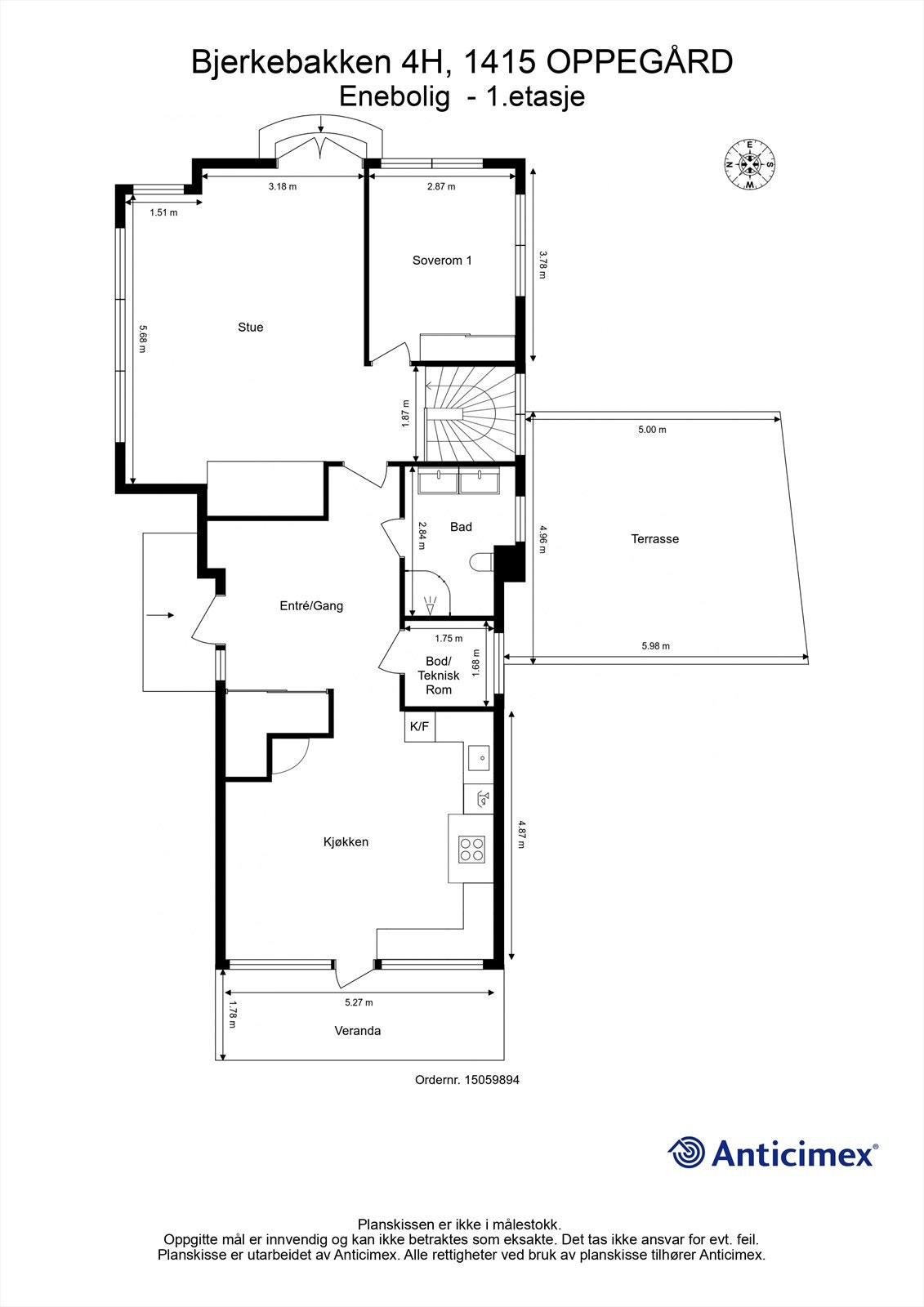
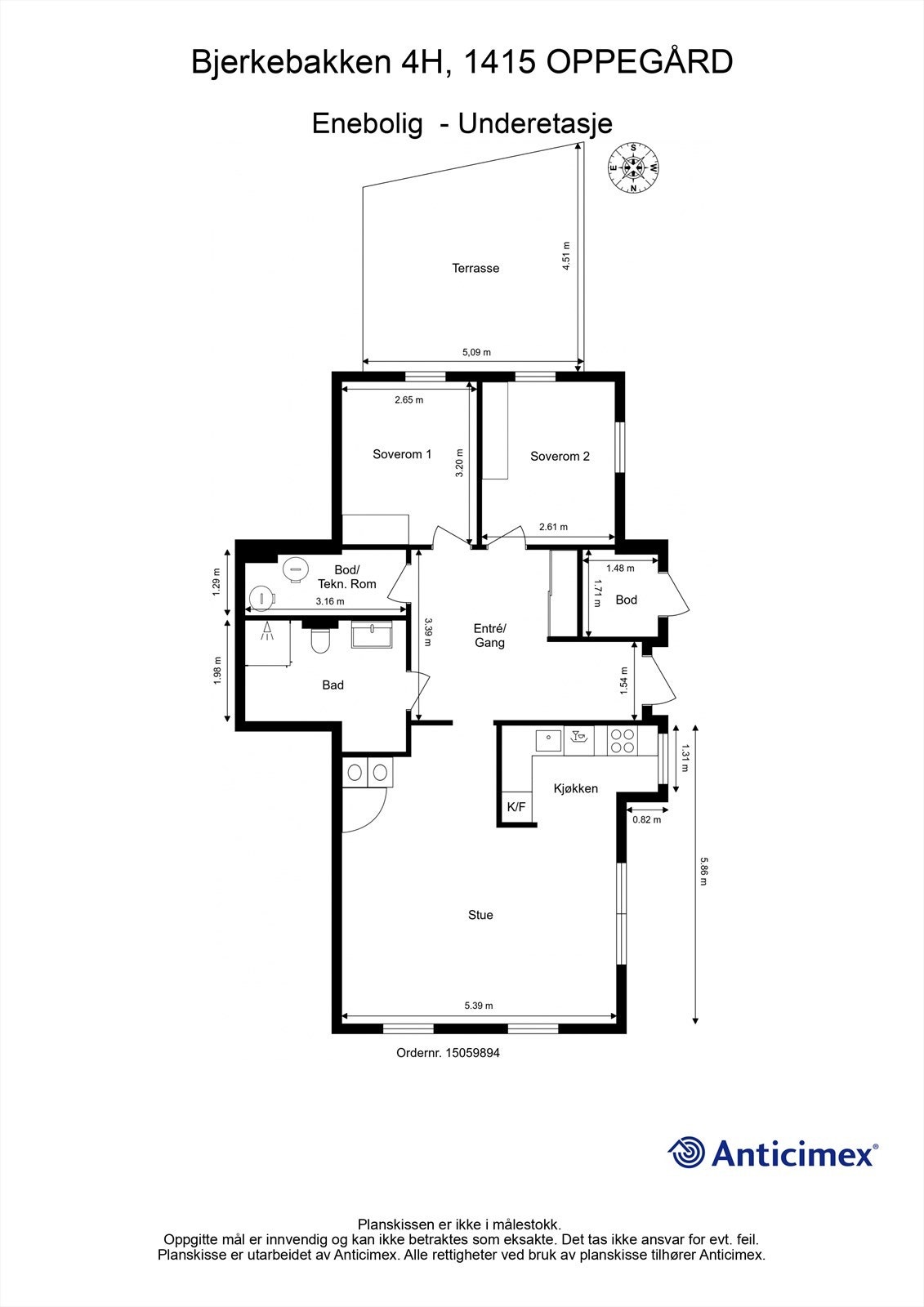
Enebolig med sekundærleilighet over tre plan, Hoveddelen med tre soverom ligger i boligens 1 og 2.etg og leiligheten med to soverom ligger i underetasjen
- Beliggende vestvendt i noe skrånende terreng med gode solforhold
- Tomten er pent opparbeidet med flere hyggelige uteplasser
- Frittliggende carport med stort lagringsloft
- Stor markterrasse med pergola i hagen
- Boligen holder en gjennomgående standard fra byggeår, nyere bad i utleieleiligheten fra 2022/23.
- Fra boligen, terrasse og hage har du flott utsikt og lite innsyn
- Nærhet til barnehage, Greverud barneskole og Flåtestad ungdomsskole
- Gangavstand til togstasjon, bussholdeplass, butikk, golfbane, fotballbane, lekeplass
- Kort vei til 18 hulls golfbane, idrettsanlegg, lysløype og marka
NB: Knappen for å vise hele beskrivelsen har kun en visuell effekt.
NB: Knappen for å vise hele beskrivelsen har kun en visuell effekt.
Salgsoppgaven beskriver vesentlig og lovpålagt informasjon om eiendommen
Se komplett salgsoppgaveNyttige lenker
Nærområdet
Krogsveen Kolbotn
Verdien av en god megler.
Annonseinformasjon
| FINN-kode | 366622383 |
|---|---|
| Sist endret | 19. juni 2025 09:13 |
| Referanse | KR49.2460 |
Annonsene kan være mangelfulle i forhold til lovpålagt opplysningsplikt. Før bindende avtale inngås oppfordres interessenter til å innhente komplett informasjon fra meglerforetaket, selger eller utleier.




























































