Bildegalleri

Lilliann Tronshaug v/Nordvik Torshov har gleden av å presentere Hans Nielsen Hauges gate 34B!
Solgt
Søylegården/Torshov
Nydelig familieleilighet over to plan i klassisk Torshovgård | Flotte gårdsrom | Kjøkken 2018| To bad | Garasjeplass*
Prisantydning11 500 000 kr
Nøkkelinfo
- Boligtype
- Leilighet
- Eieform
- Andel
- Soverom
- 3
- Internt bruksareal
- 160 m² (BRA-i)
- Bruksareal
- 163 m²
- Eksternt bruksareal
- 3 m² (BRA-e)
- Etasje
- 1
- Byggeår
- 1926
- Energimerking
- E - Oransje
- Rom
- 5
- Tomteareal
- 597 m²
Fasiliteter
Barnevennlig
Bredbåndstilknytning
Fellesvaskeri
Garasje/P-plass
Kjæledyr tillatt
Offentlig vann/kloakk
Parkett
Peis/Ildsted
Rolig
Sentralt
Vaktmester-/vektertjeneste
Turterreng
Om boligen
VELKOMMEN TIL HANS NIELSEN HAUGES GATE 34B!
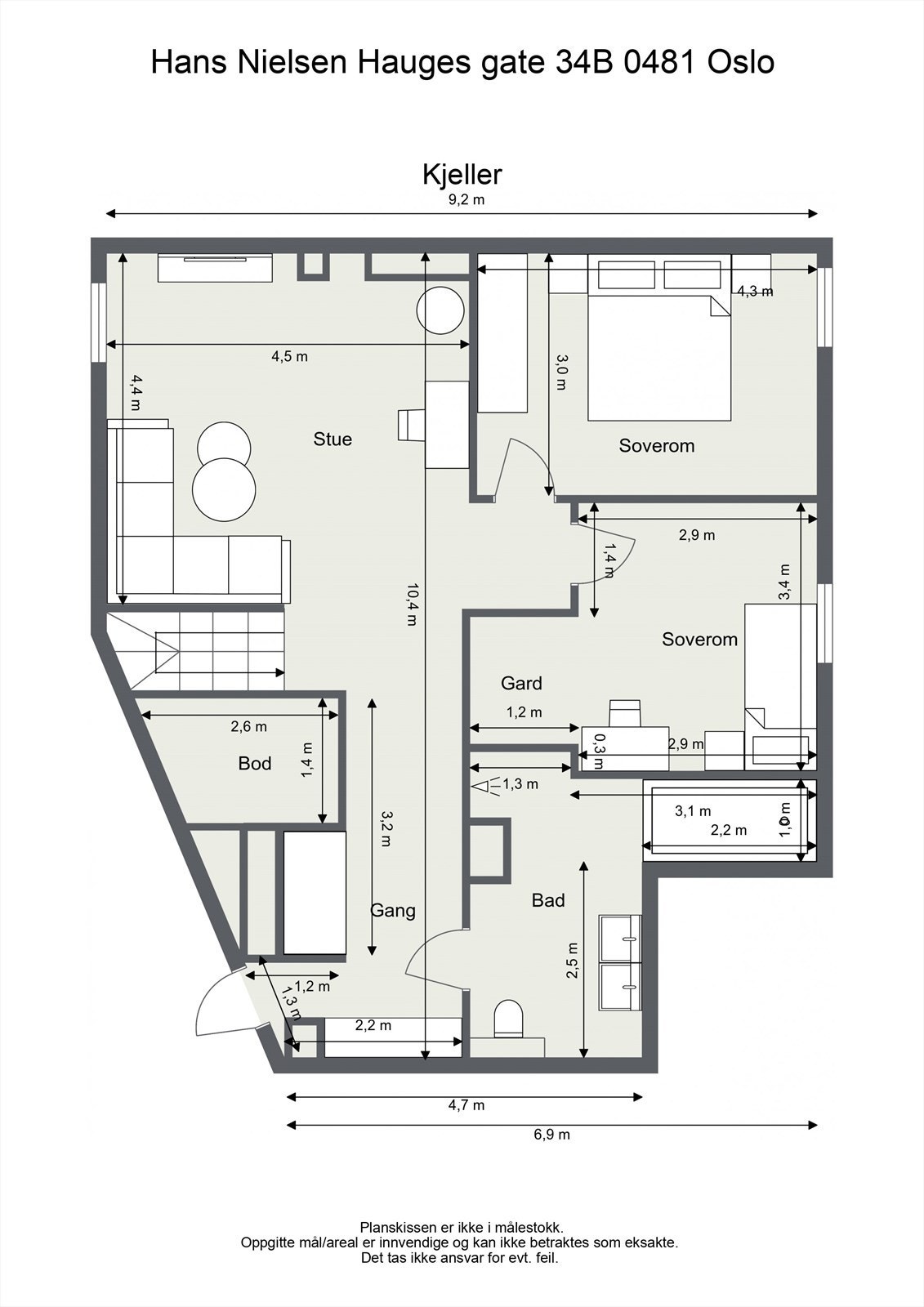
En flott familiebolig over to plan som ligger i sin helhet mot to av Søylegårdens flotte gårdsrom - tilbaketrukket fra veien. Overetasjen har en takhøyde på 2,81m består av en stor gang, kjøkken, bad, toalettrom, soverom og stue. Underetasjen har kjellerstue, to soverom, bad, innvendig bod og walk-in, samt en god takhøyde på 2,55m som gir en herlig romfølelse.
Leiligheten ligger i et rolig og barnevennlig område i Søylegården med nærhet til flere grønne parker, spisesteder, butikker og offentlig kommunikasjon.
FASILITETER
- Klassisk Torshovgård
- Tilbaketrukket fra veien
- Tre peisovner
- To bad oppgradert i 2021 og 2013
- Kjøkken fra 2018
- Tre soverom
- Ingen forkjøpsrett
- Mulig kjøp av p-plass i Aasen garasjelag
En flott familiebolig over to plan som ligger i sin helhet mot to av Søylegårdens flotte gårdsrom - tilbaketrukket fra veien. Overetasjen har en takhøyde på 2,81m består av en stor gang, kjøkken, bad, toalettrom, soverom og stue. Underetasjen har kjellerstue, to soverom, bad, innvendig bod og walk-in, samt en god takhøyde på 2,55m som gir en herlig romfølelse.
Leiligheten ligger i et rolig og barnevennlig område i Søylegården med nærhet til flere grønne parker, spisesteder, butikker og offentlig kommunikasjon.
FASILITETER
- Klassisk Torshovgård
- Tilbaketrukket fra veien
- Tre peisovner
- To bad oppgradert i 2021 og 2013
- Kjøkken fra 2018
- Tre soverom
- Ingen forkjøpsrett
- Mulig kjøp av p-plass i Aasen garasjelag
NB: Knappen for å vise hele beskrivelsen har kun en visuell effekt.
NB: Knappen for å vise hele beskrivelsen har kun en visuell effekt.
Salgsoppgaven beskriver vesentlig og lovpålagt informasjon om eiendommen
Se komplett salgsoppgaveNyttige lenker
Nærområdet
Nordvik Torshov
Vi vet hva det er verdt
Annonseinformasjon
| FINN-kode | 366068069 |
|---|---|
| Sist endret | 24. aug. 2024 11:49 |
| Referanse | 29-0202/24 |
Annonsene kan være mangelfulle i forhold til lovpålagt opplysningsplikt. Før bindende avtale inngås oppfordres interessenter til å innhente komplett informasjon fra meglerforetaket, selger eller utleier.
















































