Bildegalleri

Fasade
Nordåsvegen 42
Flott familiebolig sentralt i Maura.
Kort om prosjektet
To stk. store og romslige boligenheter i forskjellig størrelse under oppføring i Maura. Praktisk planløsning tilpasses for både mindre og større familier. Sentral beliggenhet og grenser delvis til friområde - andre boligeiendommer. Mulighet for personlig tilpassing.
Prosjektets status
Planlegging
Juni 2024
Salgsstart
Januar 2025
Byggestart
August 2024
Overtakelse
4. kvartal 2025
Nøkkelinfo
- Boligtype
- Rekkehus
- Soverom
- 5
- Rom
- 7
- Bruksareal
- 194 m²
- Eksternt bruksareal
- 40 m² (BRA-e)
- Balkong/Terrasse
- 52 m² (TBA)
Fasiliteter
Visning
Ta kontakt for å avtale visning.Beskrivelse
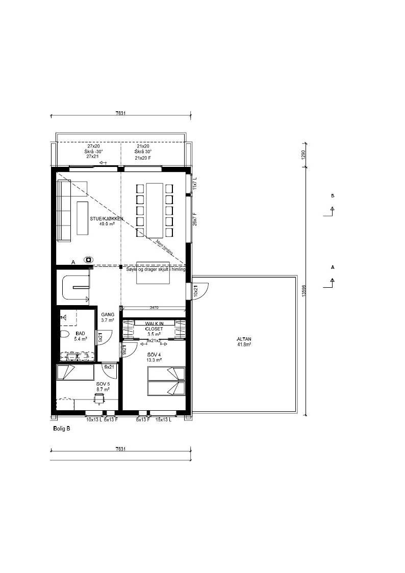
Hus B
Hus A er et hus over 2 etasjer med et totalt BRA på 244 kvm. så her er det plass til storfamilien
1. etasje består av entre, vaskerom, 3 soverom, et romslig bad, tv-stue, bod samt gang med trapperom. På samme planet et det er stor sportsbod og en carport / garasje.
2 etasje består av trapperom/gang, 2 soverom hvorav et soverom har walk inn closet, bad og åpen stue/kjøkkenløsning. Deler av stue/kjøkken har mønt/skrå himling som gir en spesiell romfølelse og mye lys gjennom vinduer i dette skrå himlingen.
Det er en romslig balkong i enden av boligen samt en stor takterrasse på langsiden av boligen, over carport/garasje/sportsbod. Både balkong og takterrasse har utgang fra stue.
Boligen har store vindusflater som gir mye lys og en flott romfølelse. Denne boligen med bl.a. 5 soverom, stue og egen tv-stue gir mange muligheter for de som ønsker en stor og romslig bolig.
Nærområdet
BoligPartner - Byggmester Frank Aasheim
Annonsene kan være mangelfulle i forhold til lovpålagt opplysningsplikt. Før bindende avtale inngås oppfordres interessenter til å innhente komplett informasjon fra meglerforetaket, selger eller utleier.






