Bildegalleri

Nordvik v/Caroline Wivestad har gleden av å ønske velkommen til Damgata 49!
Inaktiv
Sjønær og idyllisk beliggenhet!
Innholdsrik og nydelig eiendom med praktfull sjøutsikt og særdeles gode solforhold!
Prisantydning9 450 000 kr
Nøkkelinfo
- Boligtype
- Enebolig
- Eieform
- Eier (Selveier)
- Soverom
- 4
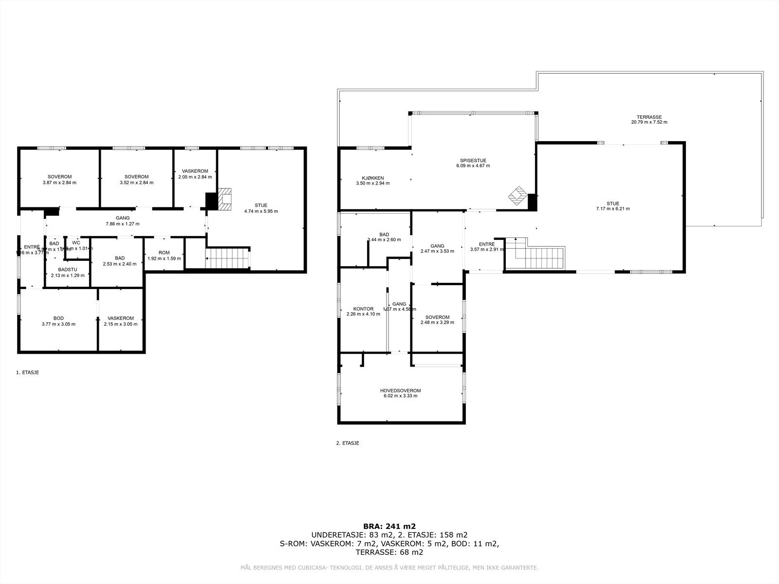
- Internt bruksareal
- 262 m² (BRA-i)
- Bruksareal
- 262 m²
- Balkong/Terrasse
- 66 m² (TBA)
- Etasje
- 2
- Byggeår
- 1972
- Energimerking
- F - Mørkegrønn
- Rom
- 8
- Tomteareal
- 799 m² (eiet)
Fasiliteter
Balkong/Terrasse
Barnevennlig
Bredbåndstilknytning
Garasje/P-plass
Hage
Kabel-TV
Offentlig vann/kloakk
Peis/Ildsted
Rolig
Sentralt
Utsikt
Om boligen
Velkommen til Damgata 49!
Eiendommen har en særdeles attraktiv beliggenhet i ett av Åsgårdstrands mest idylliske boligområder med praktfull utsikt over Oslofjorden! Boligen ligger høyt og fritt øverst på feltet, med sol fra morgen til kveld! I kort gåavstand fra eiendommen finner man strand, skog og kyststi med nydelige turmuligheter!
Eiendommen ble opprinnelig oppført i 1972, og har vært gjenstand for vesentlige oppgraderinger. Fremstår i dag som en stilren og flott enebolig med store og gode rom. Boligens nyeste oppgradering er et rålekkert og tiltalende bad pusset opp i 2024!
Hagen og uteplassene må også fremheves! Langs hele fremsiden av boligen er det en stor og solrik terrasse med nydelig utsikt! I tillegg har man en usjenert og solrik hage ved boligens inngangsparti.
Eiendommen har en særdeles attraktiv beliggenhet i ett av Åsgårdstrands mest idylliske boligområder med praktfull utsikt over Oslofjorden! Boligen ligger høyt og fritt øverst på feltet, med sol fra morgen til kveld! I kort gåavstand fra eiendommen finner man strand, skog og kyststi med nydelige turmuligheter!
Eiendommen ble opprinnelig oppført i 1972, og har vært gjenstand for vesentlige oppgraderinger. Fremstår i dag som en stilren og flott enebolig med store og gode rom. Boligens nyeste oppgradering er et rålekkert og tiltalende bad pusset opp i 2024!
Hagen og uteplassene må også fremheves! Langs hele fremsiden av boligen er det en stor og solrik terrasse med nydelig utsikt! I tillegg har man en usjenert og solrik hage ved boligens inngangsparti.
NB: Knappen for å vise hele beskrivelsen har kun en visuell effekt.
NB: Knappen for å vise hele beskrivelsen har kun en visuell effekt.
Salgsoppgaven beskriver vesentlig og lovpålagt informasjon om eiendommen
Se komplett salgsoppgaveNyttige lenker
Nærområdet
Nordvik Tønsberg
Annonseinformasjon
| FINN-kode | 365799639 |
|---|---|
| Sist endret | 27. okt. 2024 08:31 |
| Referanse | 25-0177/24 |
Annonsene kan være mangelfulle i forhold til lovpålagt opplysningsplikt. Før bindende avtale inngås oppfordres interessenter til å innhente komplett informasjon fra meglerforetaket, selger eller utleier.


























































