Bildegalleri

Rollaugs gate 46 presenteres av Proaktiv v/ Ordin Fikstvedt
En særdeles stor og flott villa. Ligger i ende av blindgate. Stor dobbel garasje med kjeller. Flott utsikt. Høy standard
Nøkkelinfo
- Boligtype
- Enebolig
- Eieform
- Eier (Selveier)
- Soverom
- 6
- Internt bruksareal
- 312 m² (BRA-i)
- Bruksareal
- 332 m²
- Innglasset balkong
- 20 m² (BRA-b)
- Balkong/Terrasse
- 108 m² (TBA)
- Byggeår
- 1977
- Energimerking
- D - Oransje
- Tomteareal
- 803 m² (eiet)
- Boligselgerforsikring
- Ja
Fasiliteter
Beliggenhet
Rollags gate har en ypperlig beliggenhet - rolig og tilbaketrukket i enden av blindgate i et etablert boligområde sentralt og attraktivt på Madla. Området må kunne beskrives som barnevennlig og populært. Madla er en populær bydel i Stavanger. Her er det godt å bo! Nabolaget er rolig og veletablert og består for det meste av villabebyggelse.
Sentral beliggenhet med kort vei til butikker, internasjonal skole og andre servicetilbud. Amfi Madla ligger i kort avstand med over 80 spennende butikker, spiseplasser og tjenester. Gode treningsmuligheter hos Sats på Amfi Madla, Aktiv treningssenter Tjensvoll og SIS sportssenter som ligger like ved universitetet. Videre er det gode bussforbindelser inn til Stavanger sentrum. I tillegg til offentlig kollektivtransport, sykkelsti er det tursti og bademuligheter like i nærheten. Det er kort vei til Møllebukta og her finner du den populære sandstranda. Like fin uansett årstid. Ta deg en dukkert på varme sommerdager eller spaser en tur vinterstid. Nyt synet av vakker natur.
Nasjonalt sett er nok Møllebukta som oftest forbundet med de tre sverdene "Sverd i fjell".
Kort vei til flotte turområder. Det mest nærliggende å nevne først er turveien, og område i og rundt store Stokkavann. Et veldig populært område, enten om vil gå tur rundt vannet, eller for de mer spreke - jogge rundt. Det er fine rekreasjonsområder her.
Blir turen rundt Stokkavannet for lang, er Mosvannet et godt alternativ.
Videre har man Sørmarka, det største sammenhengende friområdet i Stavanger med et areal som dekker cirka 1500 dekar. Her finner man et godt utbygd og familievennlig turvei-nett. Sørmarkas Venner har også bygd en tømret gapahuk på Hinnaberget. Denne er åpen for fri bruk og tørr ved er alltid tilgjengelig.
Til slutt må det nevnes DNB Arena / Siddishallen og Storhallen. Stavangers eneste - og største anlegg for innendørs idrett. Turen til Dnb Arena tar bare 5 minutt å gå.
Alt i alt en sentral, populær og flott beliggenhet.
Se vedlagte nabolagsprofil i prospektet for ytterligere informasjon om nærområdet.
Bebyggelse
Hovedsakelig trehus bebyggelse i form av eneboliger.
Adkomst
Det vil bli skiltet med visningsskilt på visningsdagen.
Tomten
Areal: 803 kvm, Eierform: Eiet tomt
Tomten er meget flott opparbeidet. Et stort hellebelagt gårdsrom, med innslag av brostein. En flott kombinasjon. Hagen er belagt med kunstgress. Stor terrasseplatting, delvis overbygget med Pergola. Større hekkplanter i grense. Hele eienodmmen er inngjerdet.
Byggemåte
Enebolig oppført med grunnmur i murkonstruksjoner som utvendig er isolert med 10 cm sps plater som som igjen er pusset 2 ganger med STO sine produkter. Reisverk i trekonstruksjoner og bordkledning i tre. Saltak med tekking av betongpanner. Flott inngangsdør i eik. Tilkomst til eiendom er igjennom elektrisk port. Boligen er generelt oppført i kjente konstruksjoner med den byggemåten som var vanlig ved oppføringstidspunkt (ene).
Bygningsdeler med TG 3 (store eller alvorlige avvik):
- Utvendig > Utvendige trapp, ned bak ved garasje
Bygningsdeler med TG 2 (avvik som ikke krever umiddelbare tiltak):
- Utvendig > Nedløp og beslag
- Utvendig > Takkonstruksjon/Loft
- Utvendig > Vinduer bad under etasje
- Innvendig > Radon
- Innvendig > Pipe og ildsted
- Innvendig > Innvendige trapper
- Våtrom > Under etasje > Bad > Overflater Gulv
- Våtrom > Under etasje > Bad > Sanitærutstyr og innredning
- Våtrom > Under etasje > Vaskerom > Overflater Gulv
- Våtrom > 1 Etasje > Bad > Overflater vegger og himling
- Våtrom > 2 Etasje > Bad > Overflater Gulv
- Våtrom > 2 Etasje > Bad > Sanitærutstyr og innredning
- Tekniske installasjoner > Varmtvannstank
Se vedlagt tilstandsrapport avholdt 30.07.24, hvor ovennevnte opplysninger er hentet fra, for nærmere teknisk beskrivelse av eiendommen.
Innhold
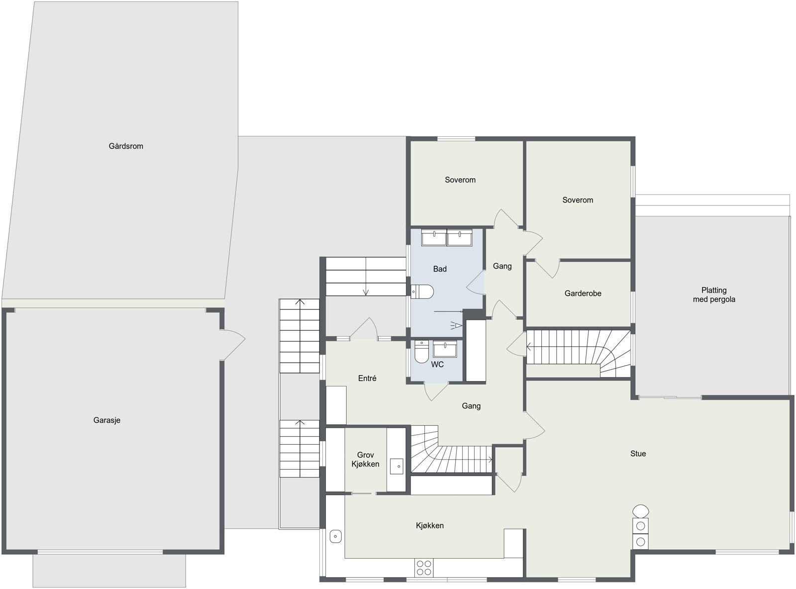
1. etg.: Vindfang, gang, gang 2, bad, to soverom, garderobe, trapperom, stue og kjøkken.
2. etg.: Loftstue, bad og soverom.
U-etg.: Gang, vaskerom, gang 2, teknisk rom, tre soverom, bad og stue.
I tillegg har man en garasje, samt bod/allrom under garasjen.
Det gjøres oppmerksom på at dagslysflate er under 10% av bruksareal på 2 soverom.
Areal
- BRA-i (internt bruksareal): 312 kvm
- BRA-b (innglasset balkong): 20 kvm
- Totalt BRA: 332 kvm
- TBA (terrasse-/balkongareal): 108 kvm
Arealet fordeler seg som følger pr. etasje:
Første etasje:
- Totalt BRA: 159 m²
- BRA-i: 139 m²
- BRA-b: 20 m²
Andre etasje:
- Totalt BRA: 45 m²
- BRA-i: 45 m²
Underetasje:
- Totalt BRA: 128 m²
- BRA-i: 128 m²
I tillegg har man garasje på 44 kvm BRA og bod/allrom i kjeller av garasje på 52 kvm BRA. Disse arealene er ikke medtatt i arealoppstillingen ovenfor.
Vedlagte plantegninger er ikke målbare, og oppgitte arealer er hentet fra vedlagte tilstandsrapport.
Arealene er plassmålt og beregnet med utgangspunkt i NS 3940:2023.
Standard
Rollaugs gate 46 er en stor og innholdsrik villa med nydelig opparbeidet uteområde, dobbel garasje med kjeller samt optimal beliggenhet på Madla.
Boligen er totaloppusset, om - og påbygget og fremstår med gjennomgående høy og tidsriktig standard. Den er særdeles innholdsrik. Det nevnes 6 (7) soverom, 3 stuer, 3 bad mm. Alle rom er store og romslige.
Rollaugs gate 46 ligger i enden av en blindgate. En rolig gate og boligen grenser til friområde på to sider. Det første som møter en når man kommer til eiendommen er den flotte sortlakkerte porten. Innenfor er det et stort gårdsrom med plass til flere bilder. På bakken ligger det belegningsstein og skiferheller, og gangveien til boligen er ispedd brostein. En flott detalj
I gårdsrommet er det en stor dobbel garasje. Det er lagt epoxy på gulvet, og det er selvsagt automatisk portåpner. Det er opplegg for elbillader i garasjen. Hele garasjen har kjeller. Dvs. et stort uinnredet rom, utvendig isolert (som boligen) med store vindusflater som gir godt lysinnslipp. Det er støpt ned varmekabler i gulvet her til fremtidig innredning. Eget sikringsskap. Bruksområdene her er mange, men dagens eier har brukt dette rommet som treningsrom. Ved siden av er det en praktisk bod.
En stor trapp, mellom hus og garasje leder en ned til garasjekjelleren og boden. Midt i trappenedgangen er også en bi-inngang til boligen. Alt i alt veldig praktisk.
Tilbake til boligen
Nåværende eier overtok boligen i 2019, før den tid hadde huset blitt innvendig oppusset i 2014. Det første som ble gjort var å tegne fasadeendring, samt påbygg til boligen. I tillegg til nevnte garasje med kjeller.
I forbindelse med dette arbeidet ble hele tomten gravd ut og det ble lagt ny drens/avløp. Grunnmuren er utvendig isolert med 10 cm SPS plater (tilsvarer 20 cm glava). Hele grunnmuren er isolert helt opp. Grunnmuren er deretter pusset med STO side produkter. Fasade og takutstikk ble revet og det ble lagt ny vindsperre og isolasjon før kledning. Kledning er av typen Superwood (www.superwood.no). Tilsvarende ble taket lagt helt nytt med undertak og glasserte teglsteinspanner.
Innvendig er boligen som sagt stor og meget innholdsrik.
I boligens hovedetasje kommer man inn i et stort vindfang/hall. Her er det fliser på gulv og garderobeløsing. Videre inn i boligen har man en privat del med 2 soverom + ett rom som som brukes som walk in closet. Et stort flisalgt bad. Til slutt har man en stor stue/spisestue samt et innholdsrikt kjøkken, med eget grovkjøkken ved siden. Gjestetoalett fra gang.
I boligens andre etasje har man stue, baderom og soverom.
I underetasje har man en stor stue, 3 soverom, (mulighet for ett 4.) Ett stort vaskerom, gang og teknisk rom. Egen inngang til etasjen.
Standarden er gjennomgående høy med god kvalitet på materialvalg.
Det kan nevnes
- Parkett fra Boen i gang, stue og kjøkken i 1. etasje. Plank type Animoso live pure lakk
- Kjøkken i 1. etg. fra Epoq med 2 kjøleskap (Bosch), fryseskap (Samsung), 2 ovner (Bosch) og 2 oppvaskmaskiner (En Bosch og en Whirlpool). Induksjon platetopp (Bosch) med integrert ventilator som har utblåsning direkte ut i ytterveggen. Alt fra Bosch var topputgaven.
- I 2023 ble det lagt ny parkett fra Boen type Plank Håndskrapt oljet i gang, stuer og 2 soverom i kjeller.
- Pergola fra Utedesign med integrert, elektrisk solskjerming. Elektrisk tak hvor en kan åpne taket helt om ønskelig.
- Begge soverommene i 1.etg. og på loftet har elektrisk utvendig mørklegging Zip Screen fra Fasadeprodukter. Disse slipper ingen lys inn og er veldig effektive i forhold til å holde varmen på soverommene ute på varme dager. I stuen i 1. etg. er det 2 stk. Zip Screen hvor en kan se ut, men holder nesten all sollys ute.
- Terrasse og gjerde med royalimpregnert materiale.
- Elektrisk port mot veien er levert av Ziktek AS på Ålgård. Porten er av typen Wisniowski. Det medfølger 2 automatiske portåpnere som en har i bilen. I tillegg montert fast bryter på innsiden av hoveddør for åpning uten portåpnere. Sensor på porten som gjør at porten lukkes automatisk når en har kjørt inn. Åpner en porten og ingen bryter sensoren lukkes den etter 2 minutter. Ønsker en porten permanent åpen er det bryter for dette montert innenfor hoveddør. Liten gangport kan holdes åpen eller låses innenfra. Er den låst er det kode ved porten.
- Hoveddør i eik fra Ege Dør AS (230 høyde) med integrert låsesystem fra Yale med kode eller app styring.
Boligen oppleves veldig praktisk innredet, med store og gode rom. Passer perfekt for en stor familie, eller en familie i vekst. Her vil alle aldersgrupper finne seg vel til rette.
Fra hovedetasje og 2. etasje har man en veldig flott utsikt.
Velkommen til visning
Oppvarming
Elektrisk.
Varmekabler på gulv med fliser
Vedovn i stue.
Energimerking
Energimerke D og oppvarmingskarakter ORANSJE
Parkering
Stor dobbel garasje med god plass til to biler. I tillegg har man et stort gårdsrom med plass til flere biler.
Vei/vann/avløp
Eiendommen er tilknyttet offentlig vann- og avløp via private stikk- og fellesledninger. Vi gjør oppmerksom på at private ledninger vedlikeholdes for eiers regning. For private fellesledninger er der normalt tilknyttet solidarisk vedlikeholdsplikt.
Privat- og offentlig vei.
Formuesverdi
Formuesverdi som primærbolig kr 1 923 098 per 31.12.22
Formuesverdi som sekundærbolig kr 7 307 773 per 31.12.22
Offentlige/kommunale avgifter
Kr. 28 480 pr. år
Oppgitt beløp er samlet årsgebyr for 2024. Stavanger kommune fakturerer kom. avgift med to terminer pr. år. Siste faktura var således kr. 14 240,-
De kommunale avgiftene omfatter vann- og avløpsgebyr, renovasjonsgebyr samt feie- og tilsynsavgift. Eiendomsskatt. Det gjøres oppmerksom på at det kan forekomme variasjon i avgiftene som følge av forbruk og eventuelle kommunale endringer av gebyr/avgift.
Faste løpende kostnader
Kommunale avgifter, forsikring, strøm, samt kabel-tv/internett.
Ferdigattest/midlertidig brukstillatelse
Det foreligger ferdigattest på eiendommen (Tilbygg, - pergola - garasje mm) datert 15.04.24
Det foreligger ferdigattest på eiendommen datert 14.08.2024 (Gjelder bruksendring av rom til varig opphold i underetasje mm)
Det fremgår spesifikt av tiltalelse:
"Det må utføres tiltak for å lette rømming slik at høyden opp til vindusåpningen maksimalt blir 1 meter, jf. TEK § 11-13 tredje ledd. Dette kan eksempelvis sikres ved fastmontert møbel inntil veggen under vinduet".
Kjøper er selv ansvarlig for dette.
Ferdigattest er en sluttattest fra bygningsmyndighetene om at et søknadspliktig tiltak er ferdigstilt. At evt. ferdigattest / midl. brukstillatelse eksisterer, gir ingen garanti for at det ikke er utført arbeid på boligen som ikke er byggemeldt eller godkjent.
Utleie
Det er ikke kjent at det foreligger offentligrettslige regler som er til hinder for at hele eiendommen leies ut.
Det er krav til forsvarlige radonnivåer på utleieboliger. I de tilfeller hvor det ikke særskilt er opplyst at selger har kunnskap om eiendommens radonnivå må kjøpere som ønsker å leie ut hele eller deler av eiendommen, særskilt være oppmerksom på at de overtar ansvaret for den usikkerheten dette medfører. Se http://www.nrpa.no for nærmere informasjon.
Konsesjon
Eiendommen er konsesjonspliktig: NEI
Odel
Det er ikke odel på eiendommen.
Diverse
Det gjøres oppmerksom på at megler ikke har innhentet særskilte opplysninger om det finnes pålegg fra brann/feiervesen på eiendommen.
En stk. lampe i hall medfølger ikke i handelen.
Servitutter/rettigheter/forpliktelser
Intet registrert
Rettigheter på andre eiendommer
Rettigheter på 1103-38/1330
Rettigheter i eiendomsrett
1976/12776-1/102 Best. om vann/kloakkledn.
09.11.1976
rettighetshaver:Knr:1103 Gnr:38 Bnr:1333
Reguleringsmessige forhold
Eiendommen er regulert til boligformål.
Id: 1823
Navn: Norde del av Madlamark
Plantype: Eldre reguleringplan
Stauts: Endelig vedtatt reguleringsplan
Ikrafttredelse: 10/10.2004
Delareal: 711,38 kvm
Regform : Boliger
Delareal: 91,28 kvm
Regform: Kjørevei
Eiendommens betegnelse
Gnr. 38 Bnr. 1333 i Stavanger kommune
Oppgjør
Kjøpesum inkludert omkostninger skal være disponibelt på meglerforetakets klientkonto innen dato for overtakelse. Kjøpesummen skal innbetales fra norsk finansinstitusjon og/eller fra kjøpers egen konto i norsk finansinstitusjon. Eventuell egenkapital skal innbetales i én samlet betaling fra kjøpers egen konto i norsk finansinstitusjon.
Sikkerhetsstillelse
Alle eiendomsmeglingsforetak har lovpålagt forsikring av klientmidler begrenset oppad til kr 45 mill. Enkeltsaker er forsikret inntil kr 15 mill. Dersom kjøpers låneinstitusjon krever tilleggsforsikring ved omsetning over 15 millioner, må kjøper selv eller dennes låneinstitusjon dekke utgiftene forbundet med dette.
Overtagelse
Overtagelse etter nærmere avtale med selger.
Boligselgerforsikring
Selger har tegnet boligselgerforsikring som dekker selgers ansvar etter avhendingsloven begrenset oppad til kr. 10 000 000,-. I den forbindelse har selger utarbeidet en egenerklæring som kjøper bør gjøre seg kjent med før budgivning. Egenerklæringen ligger alltid med som en del av salgsprospektet. Boligselgerforsikringen sikrer at selger er søkegod og en motpart som håndterer eventuelle reklamasjoner faglig og ryddig.
Boligkjøperpakke
Proaktiv har i samarbeid med If lansert et gunstig forsikringskonsept, som innebærer at du får alle relevante dekninger inkludert i en pakke til en meget konkurransedyktig pris.
Denne kan inkludere bl.a. husforsikring, innboforsikring, dobbel rente dekning, flytteforsikring og boligkjøperforsikring som gir deg juridisk bistand dersom du ønsker å reklamere på boligkjøpet. Boligkjøperpakken må senest tegnes på kontraktsmøte. Kjøpere (ikke juridiske personer) har anledning til å tegne Boligkjøperpakken. Ta kontakt med megler for ytterligere informasjon.
Budgivning i forbrukerforhold
Alle bud på eiendommen skal være skriftlig og sendes meglerforetaket pr. fax, mail, sms eller via vår "gi bud"-knapp på våre nettsider. Knappen finner du også på eiendommens annonse på www.finn.no. Bud må ikke ha kortere akseptfrist enn til kl. 12.00 første virkedag etter siste annonserte visning. Lørdag regnes ikke som virkedag. Bud med kortere frist enn dette kan ikke formidles av megler.
Megler tar ikke noe ansvar for forsinkelser på el- eller telenettet. Under budrunden kan akseptfristene kortes inn ved mottakelse av nye bud. Akseptfristen fra kjøper er absolutt. Det betyr at dersom selger velger å akseptere budet, må kjøper meddeles aksept innen utløpet av akseptfristen. Dersom du utsetter inngivelse av bud til tett opp mot akseptfristen er det en reell fare for at eiendommen kan bli solgt før ditt bud fremkommer til megler.
Nærmere info om budgiving finner du på egen side sammen med budskjema.
Se for øvrig forbrukerinformasjon om budgivning , som også er en del av salgsoppgaven.
Nye arealbegreper
Fra og med 1 januar 2024 skal boliger markedsføres med nye arealbegreper. Unntaket er for de eiendommene hvor oppdraget ble inngått før 01.01.2024, da vil de gamle arealbegrepene fortsatt gjelde.
De nye arealbegrepene for bolig er:
-BRA-i: Areal innenfor omsluttende vegger. Det er for eksempel stue, soverom, kjøkken, entre, bad, innvendig bod og rom for kommunikasjon mellom disse. Dersom boligen består av en bruksenhet med flere selvstendige boenheter, skal de selvstendige boenhetene kategoriseres som BRA-i. Et eksempel på dette kan være en enebolig med adskilt utleieenhet.
-BRA-e: Areal av for eksempel en ekstern bod, kjellerstue med egen inngang, gjesterom, tilleggsbygg eller andre rom som tilhører boenheten, men som ikke er direkte tilknyttet det interne arealet. Tilleggsbygg kan være for eksempel garasje, naust eller utvendig bod.
-BRA-b: Innglassede balkonger, verandaer og altaner som tilhører boenheten.
-Totalt BRA: Summen av BRA-i, BRA-e og BRA-b
-TBA: Arealet av terrasser, altaner, verandaer og åpne balkonger som er tilknyttet boenheten.
Løsøre og tilbehør
Listen over løsøre og tilbehør som er utarbeidet av NEF, Eiendom Norge og Advokatforeningens eiendomsmeglergruppe, legges til grunn for salget dersom ikke annet fremkommer av salgsoppgaven. Listen er tilgjengelig hos oppdragsansvarlig samt på www.nef.no. Til orientering er det full avtalefrihet om hva som skal følge med bolig og fritidsbolig ved salg.
I dette oppdraget er det særskilt avtalt at integrerte hvitevarer medfølger i handelen.
Kjøper er utenlandsk statsborger
Dersom kjøper er utenlandsk statsborger kreves det at vedkommende har et såkalt D-nummer til erstatning for norsk personnummer. Rekvirering av D-nummer må sendes Kartverket samtidig med innsending av skjøtet for tinglysing. Skjøtet blir liggende i Kartverket inntil kjøper har fått D-nummer av Skatteetaten. Når Kartverket har mottatt D-nummeret fra Skatteetaten, vil skjøtet bli tinglyst umiddelbart. Rekvisisjon av D-nummer i forbindelse med tinglysing av skjøte vil ofte medføre at oppgjør og utbetaling til selger blir forsinket med noen uker. Kjøper må i disse tilfellene enten ta forbehold i bud om forsinket utbetaling til selger, eller være forberedt på å dekke forsinkelsesrenter til selger. Kontakt ansvarlig megler for informasjon før budgivning.
Lov om hvitvasking
Det følger av lov om tiltak mot hvitvasking og terrorfinansiering at meglerforetaket er forpliktet til å foreta kundetiltak av begge parter i handelen. For oppdragsgiver skjer dette i forbindelse med inngåelse av oppdraget, og for kjøper på tidspunkt for kontraktsinngåelse. Dersom slik kundekontroll ikke kan gjennomføres, er meglerforetaket pålagt å avstå fra gjennomføring av oppgjøret. Partene er selv ansvarlig for eventuelle kostnader og ansvar dette kan medføre uten at det kan anføres et kontraktsrettslig ansvar overfor meglerforetaket.
Personopplysninger
Som følge av meglerforetakets plikt til å oppbevare kontrakter og dokumenter i minst 10 år, jf. eiendomsmeglingsforskriften § 3-7 (3), er mulighetene for å få slettet personlige opplysninger som er formidlet til megler, begrenset. Du kan lese mer om vår personvernpolicy på våre hjemmesider, www.proaktiv.no.
Lovanvendelse og kontraktsbetingelser
Eiendommen selges etter reglene i avhendingsloven.
Eiendommen skal overleveres kjøper i tråd med det som er avtalt. Det er viktig at kjøper setter seg grundig inn i alle salgsdokumentene, herunder salgsoppgave, tilstandsrapport og selgers egenerklæring. Kjøper anses kjent med forhold som er tydelig beskrevet i salgsdokumentene. Forhold som er beskrevet i salgsdokumentene kan ikke påberopes som mangler. Dette gjelder uavhengig av om kjøper har lest dokumentene. Alle interessenter oppfordres til å undersøke eiendommen nøye, gjerne sammen med fagkyndig før bud inngis. Kjøper som velger å kjøpe usett kan ikke gjøre gjeldende som mangel noe han burde blitt kjent med ved undersøkelsen.
Dersom det er behov for avklaringer, anbefaler vi at kjøper rådfører seg med eiendomsmegler eller en bygningssakkyndig før det legges inn bud.
Hvis eiendommen ikke er i samsvar med det kjøperen må kunne forvente ut ifra alder, type og synlig tilstand, kan det være en mangel. Det samme gjelder hvis det er holdt tilbake eller gitt uriktige opplysninger om eiendommen og dette har virket inn på avtalen. En bolig som har blitt brukt i en viss tid, har vanligvis blitt utsatt for slitasje og skader kan ha oppstått. Slik bruksslitasje må kjøper regne med, og det kan avdekkes enkelte forhold etter overtakelse som nødvendiggjør utbedringer. Normal slitasje og skader som nødvendiggjør utbedring, er innenfor hva kjøper må forvente og vil ikke utgjøre en mangel.
Boligen kan ha en mangel dersom det er avvik mellom opplyst og faktisk areal, forutsatt at avviket er på 2% eller mer og minimum 1 kvm.
Ved beregning av et eventuelt prisavslag eller erstatning må kjøper selv dekke tap/kostnader opptil et beløp på kr 10 000 (egenandel).
Dersom kjøper ikke er forbruker selges eiendommen som den er , og selgers ansvar er da begrenset jf. avhl. § 3-9, 1. ledd 2. pktm. Avhendingsloven § 3-3 (2) fravikes, og hvorvidt en innendørs arealsvikt karakteriseres som en mangel vurderes etter avhendingsloven § 3-8. Informasjon om kjøpers undersøkelsesplikt, herunder oppfordringen om å undersøke eiendommen nøye, gjelder også for kjøpere som ikke anses som forbrukere. Med forbrukerkjøp menes kjøp av eiendom når kjøperen er en fysisk person som ikke hovedsakelig handler som ledd i næringsvirksomhet.
Finansiering
Vi bistår mer enn gjerne med kontakt med ulike banker, men vi har ingen fast bankforbindelse da vi mener at vilkårene i ulike finansinstitusjoner varierer fra kundegruppe til kundegruppe. Vi kan således ikke anbefale en bestemt bank, men hjelper mer enn gjerne med å finne den banken som tilbyr deg best vilkår.
Tinglysing av hjemmel
Skjøte sendes for tinglysing i forbindelse med oppgjøret. Oppgjør forutsetter at det er gjennomført overtagelse og at partene har signert en overtakelsesprotokoll og sendt denne til oppgjørsavdelingen slik som avtalt i kontrakt. Det forutsettes at skjøte tinglyses i kjøpers navn. Hvis interessenter mot formodning ikke ønsker tinglysing av skjøte må det tas forbehold om dette i kjøpetilbudet.
Salgsoppgave
Opplysningene i salgsoppgaven er godkjent av selger. Alle interessenter oppfordres imidlertid til grundig besiktigelse av eiendommen, gjerne sammen med fagmann før bud inngis.
Salgsoppgaven beskriver vesentlig og lovpålagt informasjon om eiendommen
Se komplett salgsoppgaveNyttige lenker
Nærområdet
Proaktiv Eiendomsmegling Stavanger
Prisstatistikk
Rollaugs gate 46
på annonsen
prisantydning per kvadratmeter
Prisfordeling
Pris per m² ligger 7 961 kr over snittet for eneboliger i Madlamark/Gosen/Granneslia.
Grafen viser antall eneboliger solgt i Madlamark/Gosen/Granneslia siste året fordelt på pris per m² - totalt 70 eneboliger
Antall boliger
Kvadratmeterpris tilsvarer prisantydning pluss fellesgjeld per kvadratmeter (p-rom eller BRA-i). Prisene i grafen er avrundet til nærmeste 1000 kr.
Annonseinformasjon
| FINN-kode | 365462662 |
|---|---|
| Sist endret | 28. okt. 2024 11:39 |
| Referanse | 54240132 |
Annonsene kan være mangelfulle i forhold til lovpålagt opplysningsplikt. Før bindende avtale inngås oppfordres interessenter til å innhente komplett informasjon fra meglerforetaket, selger eller utleier.





































































































