Bildegalleri

Velkommen til Øverlandsvegen 38!
Øverland - Eldre, sjarmerende enebolig med oppgraderingsbehov på svært romslig tomt (1360 kvm) - 30% BYA Garasje
Nøkkelinfo
- Boligtype
- Enebolig
- Eieform
- Eier (Selveier)
- Internt bruksareal
- 108 m² (BRA-i)
- Balkong/Terrasse
- 8 m² (TBA)
- Byggeår
- 1900
- Energimerking
- F - Gul
- Tomteareal
- 1 360 m² (eiet)
- Boligselgerforsikring
- Ja
Visning
Om boligen
Velkommen til Øverlandsvegen 38!
Eiendommen ligger i et veletablert og rolig område på Øverland. Eiendommen består av stor tomt med eldre enebolig og garasje fra 80-tallet. Bygningsmassen fremstår som sjarmerende og greit vedlikeholdt, men oppgraderinger av bygningsmassen må påregnes.
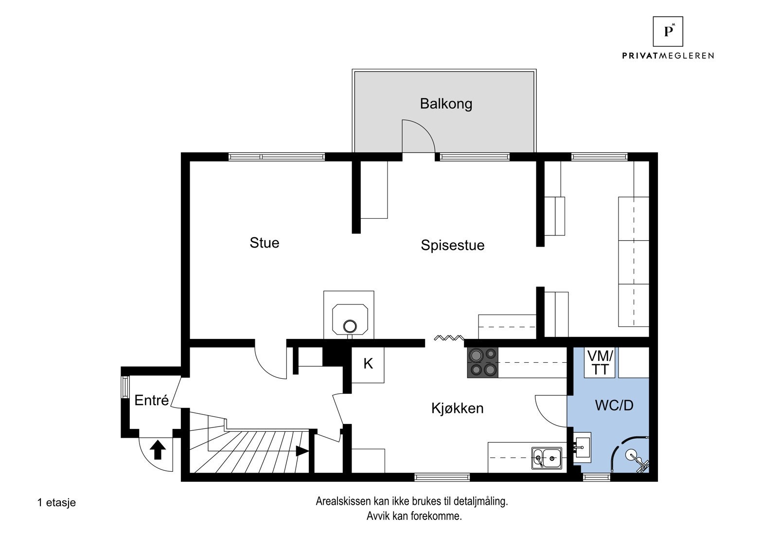
Eneboligen går over 3 plan og inneholder:
Loftsetasje: Gang m/trapp, 2 soverom, mellomgang, bad og toalettrom.
1. etasje: Vindfang, gang m/trapp, kjøkken, stue, soverom bad/wc og toalettrom.
Krypkjeller: Ett åpent kjellerrom.
Eiendommen ligger i gul fortettingssone (30 % BYA) iht kommuneplans arealdel for Molde - del 1, 2015-2025.
Salgsoppgaven beskriver vesentlig og lovpålagt informasjon om eiendommen
Se komplett salgsoppgaveNyttige lenker
Nærområdet
Privatmegleren Molde
Annonseinformasjon
| FINN-kode | 365416384 |
|---|---|
| Sist endret | 13. apr. 2025 19:10 |
| Referanse | 45240108 |
Annonsene kan være mangelfulle i forhold til lovpålagt opplysningsplikt. Før bindende avtale inngås oppfordres interessenter til å innhente komplett informasjon fra meglerforetaket, selger eller utleier.




































