Bildegalleri

Eiendomsmegler 1 Fjellmegleren har gleden av å presentere denne moderne hytta beliggende ved golfbanen på Nesfjellet
NESFJELLET - nyere og pen hytte over 2 plan |4 soverom | nær golfbane, alpin og skiløypene
- Omkostninger
- 111 230 kr
- Totalpris
- 4 511 230 kr
- Kommunale avg.
- 12 111 kr per år
- Eiendomsskatt
- 7 099 kr per år
- Formuesverdi
- 1 143 750 kr
Nøkkelinfo
- Beliggenhet
- På fjellet
- Boligtype
- Hytte
- Eieform
- Eier (Selveier)
- Internt bruksareal
- 70 m² (BRA-i)
- Bruksareal
- 73 m²
- Eksternt bruksareal
- 3 m² (BRA-e)
- Tomteareal
- 1 085 m² (eiet)
- Byggeår
- 2019
- Soverom
- 4
- Rom
- 5
- Energimerking
- C - Oransje
- Overtakelse
- Etter nærmere avtale med selger. Vær vennlig å angi ønsket overtagelsesdato i vedlagte budskjema.
Fasiliteter
Om boligen
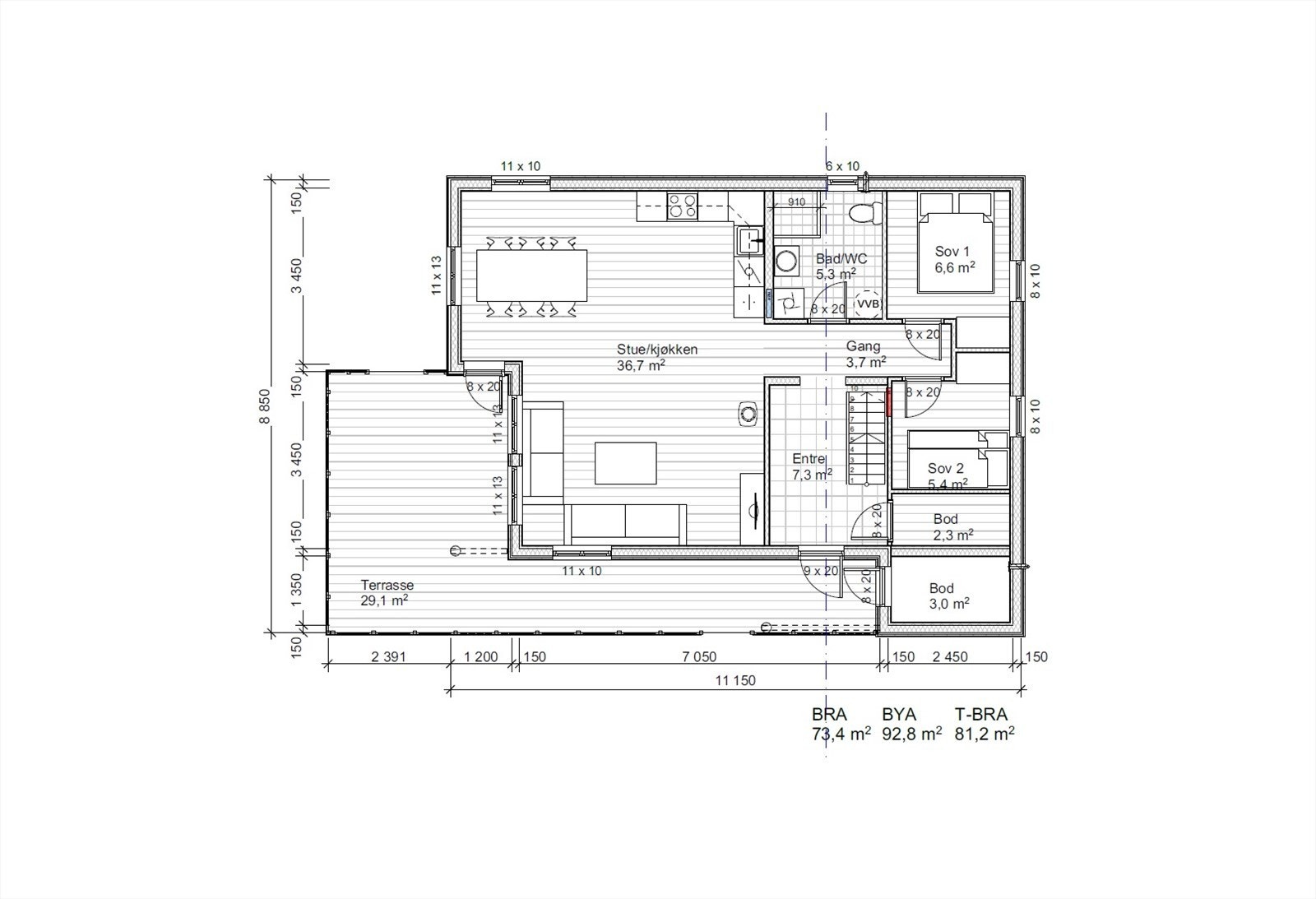
Eiendommen består av sentralt beliggende hytte midt i smørøyet av Nesfjellet. Med beliggenhet mot friarealer og nærheten til golfbanen. Nydelig utsikt ut over omkringliggende fjell. Gangavstand til Golfkaféen, umiddelbar nærhet til skiløypenettet, sykkelstier og Nesfjellet Alpin.
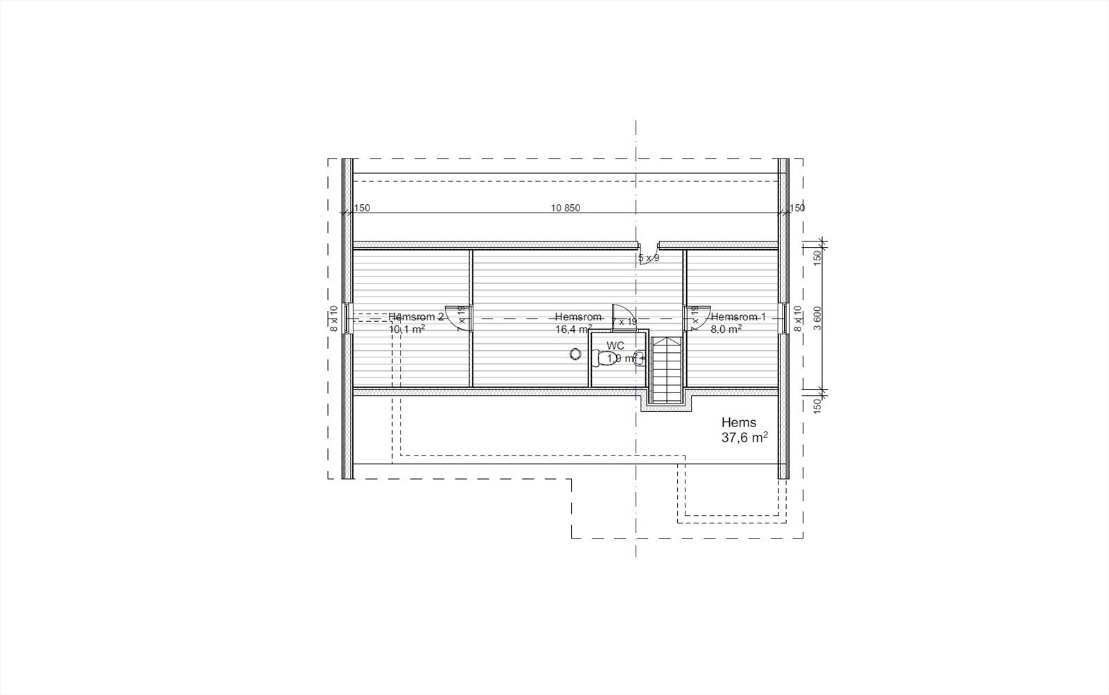
Hytta er arealeffektiv med god planløsning over to etasjer og inneholder bla. a. 4 soverom, 2 stuer og bad og ekstratoalett i 2. etasje.
Andre høydepunkter:
- Nydelig utsikt og svært barnevennlig
- Friområde/turområde på to sider
- Pent opparbeidet uteområde med hage, terrasse, platting.
- Skjermet Jacuzzi (North SEA Breeze Spa)
- Gode solforhold
- Innlagt fiber og elbillader på yttervegg.
- Loftsetasjen har 36 m² gulvareal
- Plass til mange biler på egen tomt
Salgsoppgaven beskriver vesentlig og lovpålagt informasjon om eiendommen
Se komplett salgsoppgaveNyttige lenker
Nærområdet
EIE Fjellmegleren Gol / Nesbyen / Flå
Prisstatistikk
Mårvegen 8
på annonsen
prisantydning per kvadratmeter
Prisfordeling
Pris per m² ligger 16 857 kr over snittet for hytter i Nesbyen.
Grafen viser antall hytter solgt i Nesbyen siste året fordelt på pris per m² - totalt 63 hytter
Antall boliger
Kvadratmeterpris tilsvarer prisantydning pluss fellesgjeld per kvadratmeter (p-rom eller BRA-i). Prisene i grafen er avrundet til nærmeste 1000 kr.
Annonseinformasjon
| FINN-kode | 364777340 |
|---|---|
| Sist endret | 29. apr. 2025 13:07 |
| Referanse | 1531240135 |
Annonsene kan være mangelfulle i forhold til lovpålagt opplysningsplikt. Før bindende avtale inngås oppfordres interessenter til å innhente komplett informasjon fra meglerforetaket, selger eller utleier.










































