Bildegalleri

EIE Råholt v/ Julie Fredheim Maudal har gleden av å presentere Vognvegen 8!
Innbydende enebolig med alt på ett plan | Dobbelgarasje | Naturskjønt og barnevennlig | Nydelig hage og romslig terrasse
Nøkkelinfo
- Boligtype
- Enebolig
- Eieform
- Eier (Selveier)
- Soverom
- 4
- Internt bruksareal
- 129 m² (BRA-i)
- Bruksareal
- 129 m²
- Eksternt bruksareal
- 37 m² (BRA-e)
- Balkong/Terrasse
- 26 m² (TBA)
- Byggeår
- 2020
- Energimerking
- B - Gul
- Tomteareal
- 731 m² (eiet)
Fasiliteter
Visning
Om boligen
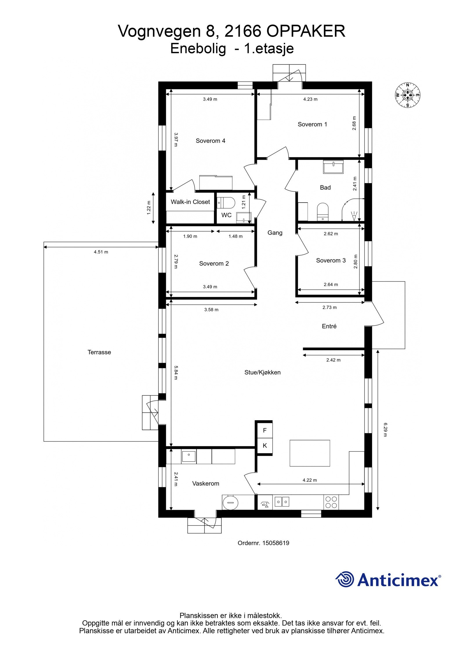
EIE Råholt v/ Julie Fredheim Maudal har gleden av å presentere Vognvegen 8, en innbydende enebolig over ett plan. Boligen ligger fredelig til i et nytt boligområde på Oppaker/Bjertnes i Nes kommune, med nærhet til skole, barnehage, offentlig transport og ulike servicetilbud.
Eneboligen har en svært praktisk og romslig planløsning som omfatter entré, moderne kjøkken, baderom, vaskerom og separat toalettrom. Videre byr boligen på en romslig stue og fire komfortable soverom, hvorav ett har en praktisk walk-in-garderobe.
Det er tilrettelagt for parkering i dobbelgarasje og på asfaltert gårdsplass. Tomten er på 731 kvm med flotte uteplasser, perfekt for utendørs aktiviteter og avslapning.
Salgsoppgaven beskriver vesentlig og lovpålagt informasjon om eiendommen
Se komplett salgsoppgaveNærområdet
EIE eiendomsmegling Råholt
Annonseinformasjon
| FINN-kode | 363863143 |
|---|---|
| Sist endret | 07. mai 2025 16:31 |
| Referanse | 101240114 |
Annonsene kan være mangelfulle i forhold til lovpålagt opplysningsplikt. Før bindende avtale inngås oppfordres interessenter til å innhente komplett informasjon fra meglerforetaket, selger eller utleier.





































