Bildegalleri

Ca. 40 minutters kjøretur fra Oslo sentrum - velkommen til hyttegrenda Strandly med felles strandlinje
Inaktiv
Brevik brygge
Frogn/Brevik - Nære Oslo. Unik hyttegrend med strandlinje. Boligstandard - dypvannsbrygge - felles strandtomt ca 10 mål
Prisantydning4 390 000 kr
- Omkostninger
- 131 000 kr
- Totalpris
- 4 521 000 kr
Nøkkelinfo
- Beliggenhet
- Ved sjøen
- Boligtype
- Hytte
- Eieform
- Annet
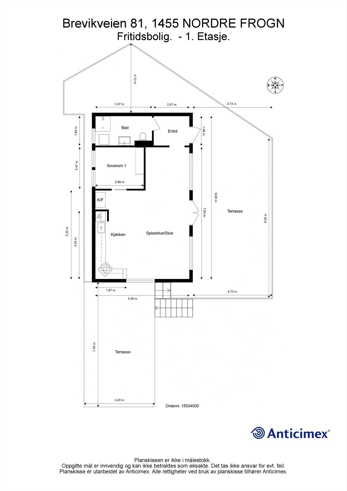
- Internt bruksareal
- 86 m² (BRA-i)
- Bruksareal
- 86 m²
- Balkong/Terrasse
- 105 m² (TBA)
- Tomteareal
- 10 274 m² (eiet)
- Byggeår
- 1940
- Soverom
- 2
- Energimerking
- G - Rød
- Overtakelse
- Etter avtale.
Fasiliteter
Balkong/Terrasse
Barnevennlig
Båtplass
Utsikt
Bademulighet
Fiskemulighet
Innlagt strøm
Strandlinje
Turterreng
Visning
NB: visninger uten påmeldinger innen kl. 12.00 på visningsdagen blir avlyst/utsatt.
VISNING ETTER AVTALE - Kontakt megler på tlf 905 64 890.
Avtal med megler om å bli møtt på Brevik brygge (ca 7 min. til fots) eller Kjærnes brygge (ca 2 minutter med båt).
Husk å lese komplett salgsoppgave før visning. Bestill komplett, utskriftsvennlig salgsoppgave.
VisningspåmeldingOm boligen
Velkommen til sommerperlen Strandly Hyttegrend med flott utsikt helt inn mot Oslo.
Dypvanns-flytebrygge som deles med nabo.
Isolert fritidsbolig med god plass og boligmessige kvaliteter på bla. kjøkken og bad/vaskerom.
Praktisk med to etasjer og flere allrom med bla. stue/kjøkken oppe og kjellerstue nede.
To soverom + loft.
Utgang fra stue/kjøkken til stor utsiktsterrasse.
Innlagt vann/avløp.
Kun ca. 40 minutter fra Oslo
- adkomst via Kjærnes brygge (nære Vinterbro/Tusenfryd) eller Brevik Brygge i begynnelsen av Nesoddlandet.
Brevik badestrand er en del av nærmiljøet og er en meget barnevennlig badeplass.
Enkelt utgangspunkt for besøk til sjarmerende Drøbak eller Nesoddtangen/Aker Brygge.
Båt med båthenger medfølger - Type Fjorder 470 med 9.9 Mercury motor.
Dypvanns-flytebrygge som deles med nabo.
Isolert fritidsbolig med god plass og boligmessige kvaliteter på bla. kjøkken og bad/vaskerom.
Praktisk med to etasjer og flere allrom med bla. stue/kjøkken oppe og kjellerstue nede.
To soverom + loft.
Utgang fra stue/kjøkken til stor utsiktsterrasse.
Innlagt vann/avløp.
Kun ca. 40 minutter fra Oslo
- adkomst via Kjærnes brygge (nære Vinterbro/Tusenfryd) eller Brevik Brygge i begynnelsen av Nesoddlandet.
Brevik badestrand er en del av nærmiljøet og er en meget barnevennlig badeplass.
Enkelt utgangspunkt for besøk til sjarmerende Drøbak eller Nesoddtangen/Aker Brygge.
Båt med båthenger medfølger - Type Fjorder 470 med 9.9 Mercury motor.
NB: Knappen for å vise hele beskrivelsen har kun en visuell effekt.
NB: Knappen for å vise hele beskrivelsen har kun en visuell effekt.
Salgsoppgaven beskriver vesentlig og lovpålagt informasjon om eiendommen
Se komplett salgsoppgaveNærområdet
Attentus Eiendomsmegling
Annonseinformasjon
| FINN-kode | 363636779 |
|---|---|
| Sist endret | 24. sep. 2025 10:02 |
| Referanse | ATE2.2393 |
Annonsene kan være mangelfulle i forhold til lovpålagt opplysningsplikt. Før bindende avtale inngås oppfordres interessenter til å innhente komplett informasjon fra meglerforetaket, selger eller utleier.



































