Bildegalleri

Velkommen til Lundebakka 487, åpent og solrikt beliggende i Bamserudfeltet.
Solgt
Bamserud, Bruflat
Innholdsrik hytte med fredelig og usjenert beliggenhet. Store terrasser med fin utsikt. 4 soverom. Helårsvei. Solcelle.
Prisantydning550 000 kr
- Omkostninger
- 15 100 kr
- Totalpris
- 565 100 kr
- Verditakst
- 700 000 kr
Nøkkelinfo
- Beliggenhet
- På fjellet
- Boligtype
- Hytte
- Eieform
- Eier (Selveier)
- Internt bruksareal
- 82 m² (BRA-i)
- Bruksareal
- 95 m²
- Eksternt bruksareal
- 13 m² (BRA-e)
- Balkong/Terrasse
- 45 m² (TBA)
- Tomteareal
- 2 700 m² (festet)
- Festeavgift
- 4 161 kr
- Byggeår
- 1976
- Soverom
- 4
- Energimerking
- G - Rød
- Overtakelse
- Etter nærmere avtale med selger. Normalt 3-4 uker etter budaksept. Kjøper vil ikke ha tilgang til eiendommen i perioden mellom budaksept og overtakelse.
Fasiliteter
Balkong/Terrasse
Barnevennlig
Bilvei frem
Peis/Ildsted
Rolig
Utsikt
Bademulighet
Fiskemulighet
Turterreng
Om boligen
Bamserudfeltet ligger sør i Etnedal kommune, ca. 13 km fra Bruflat, og er et hyggelig hyttefelt med god plass mellom hyttene. Her er det gode solforhold og fra hytta er det vid utsikt til bla. Flaggfjell og Tonsåsen.
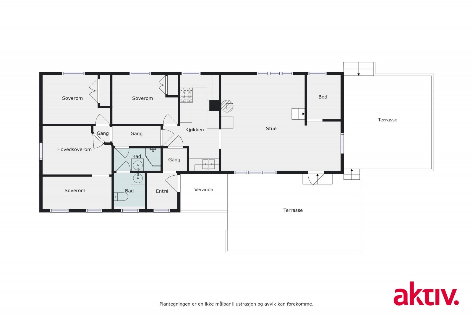
Hytta ligger på en stor naturtomt og har to store terrasser hvor en kan nyte dagene i stille og fredelige omgivelser. Inne i hytta er det god plass til både store og små. Den har hele fire soverom, samt et enkelt hyttebad og toalettrom. Her har du også helårsvei og solcelleanlegg. Det er ikke strøm i området.
Uthus med lagringsplass og utedo.
Hytta har behov for noe oppgraderinger, men har et stort potensial.
Turterrenget i Lundebygda er fint og variert, og øverst i Bamserudfeltet er det en felles, hyggelig badeplass.
Velkommen på visning!
Hytta ligger på en stor naturtomt og har to store terrasser hvor en kan nyte dagene i stille og fredelige omgivelser. Inne i hytta er det god plass til både store og små. Den har hele fire soverom, samt et enkelt hyttebad og toalettrom. Her har du også helårsvei og solcelleanlegg. Det er ikke strøm i området.
Uthus med lagringsplass og utedo.
Hytta har behov for noe oppgraderinger, men har et stort potensial.
Turterrenget i Lundebygda er fint og variert, og øverst i Bamserudfeltet er det en felles, hyggelig badeplass.
Velkommen på visning!
NB: Knappen for å vise hele beskrivelsen har kun en visuell effekt.
NB: Knappen for å vise hele beskrivelsen har kun en visuell effekt.
Salgsoppgaven beskriver vesentlig og lovpålagt informasjon om eiendommen
Se komplett salgsoppgaveNærområdet
Aktiv Valdres
Prisstatistikk
Lundebakka 487
20 929 klikk
på annonsen
6 707 kr
prisantydning per kvadratmeter
Prisfordeling
Pris per m² ligger 19 293 kr under snittet for hytter i Etnedal.
Grafen viser antall hytter solgt i Etnedal siste året fordelt på pris per m² - totalt 48 hytter
Antall boliger
Kvadratmeterpris tilsvarer prisantydning pluss fellesgjeld per kvadratmeter (p-rom eller BRA-i). Prisene i grafen er avrundet til nærmeste 1000 kr.
Annonseinformasjon
| FINN-kode | 363564019 |
|---|---|
| Sist endret | 16. okt. 2025 13:19 |
| Referanse | 1201240054 |
Annonsene kan være mangelfulle i forhold til lovpålagt opplysningsplikt. Før bindende avtale inngås oppfordres interessenter til å innhente komplett informasjon fra meglerforetaket, selger eller utleier.

































