Bildegalleri

DNB Eiendom v/Joachim Norum Larsen (414 65 594) ønsker velkommen til Valhallveien 15!
NY PRIS! Unik familiebolig over 2 plan|Lekkert motstrømsbasseng Stor terrasseplatting|Solrikt|Blindvei|Garasje|Utleiedel
Nøkkelinfo
- Boligtype
- Enebolig
- Eieform
- Eier (Selveier)
- Soverom
- 3
- Internt bruksareal
- 201 m² (BRA-i)
- Bruksareal
- 282 m²
- Eksternt bruksareal
- 81 m² (BRA-e)
- Balkong/Terrasse
- 172 m² (TBA)
- Byggeår
- 1971
- Energimerking
- F - Oransje
- Tomteareal
- 928 m² (eiet)
Fasiliteter
Om boligen
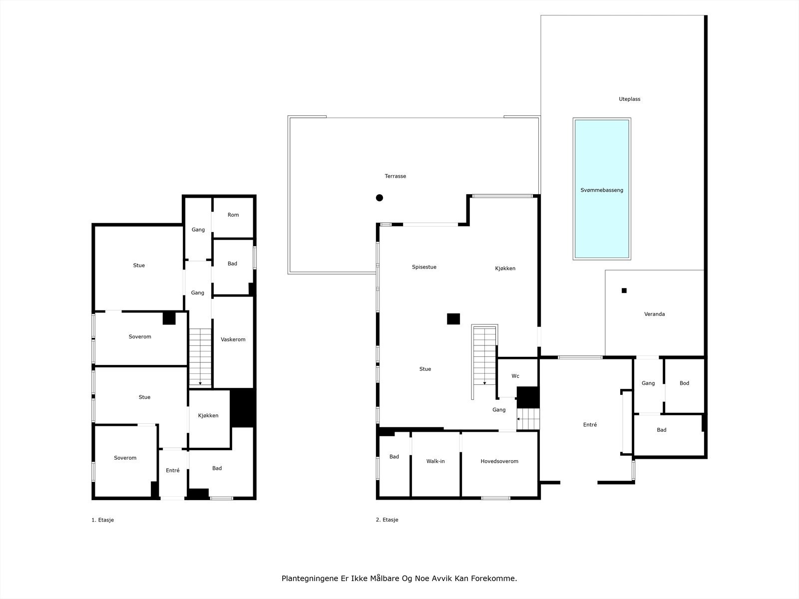
En velholdt bolig bestående av bl.a. en lys og romslig stue med integrert HiFi-anlegg, åpent kjøkken med delikat, håndlaget innredning med 75 cm dyp benkeplate. 4 baderom med innredninger fra Villeroy & Boch, samt Alpe. 3 soverom av god størrelse. Vaskerom. Terrasser på totalt 172 m² med plassbygget grill fra Beefeater, og todelt basseng, med motstrømsdel og jacuzzi.
Utleiedel i underetg. gir mulighet for gode leieinntekter.
Drivhus med varmekabler, og utvendig montert kaldtvannskran.
Vinterisolert dobbelgarasje med varmekabler, samt bod/verksted og lagringsloft.
Salgsoppgaven beskriver vesentlig og lovpålagt informasjon om eiendommen
Se komplett salgsoppgaveNyttige lenker
Nærområdet
DNB Eiendom AS
Prisstatistikk
Valhallveien 15
på annonsen
prisantydning per kvadratmeter
Prisfordeling
Pris per m² ligger 3 228 kr over snittet for eneboliger i Frogn - Drøbak.
Grafen viser antall eneboliger solgt i Frogn - Drøbak siste året fordelt på pris per m² - totalt 130 eneboliger
Antall boliger
Kvadratmeterpris tilsvarer prisantydning pluss fellesgjeld per kvadratmeter (p-rom eller BRA-i). Prisene i grafen er avrundet til nærmeste 1000 kr.
Annonseinformasjon
| FINN-kode | 363553025 |
|---|---|
| Sist endret | 14. nov. 2024 09:59 |
| Referanse | 206240091 |
Annonsene kan være mangelfulle i forhold til lovpålagt opplysningsplikt. Før bindende avtale inngås oppfordres interessenter til å innhente komplett informasjon fra meglerforetaket, selger eller utleier.













































































