Bildegalleri

Velkommen til Bygdøy Allé 37 - Presentert av Sara Marie Zachariassen Østbye ved Krogsveen Majorstuen.
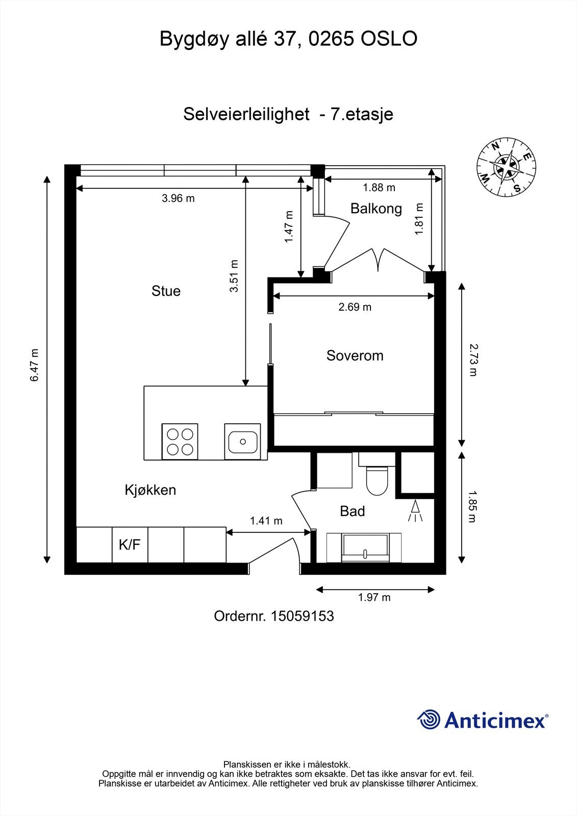
Arealeffektiv og påkostet 2-roms i 7. etg m/heis og balkong. Hele leiligheten vender mot bakgård! Fyring og v.v. inkl.
Nøkkelinfo
- Boligtype
- Leilighet
- Eieform
- Eier (Selveier)
- Soverom
- 1
- Internt bruksareal
- 36 m² (BRA-i)
- Bruksareal
- 38 m²
- Eksternt bruksareal
- 2 m² (BRA-e)
- Balkong/Terrasse
- 3 m² (TBA)
- Etasje
- 7
- Byggeår
- 1969
- Energimerking
- G - Mørkegrønn
- Rom
- 2
- Tomteareal
- 610 m² (eiet)
Fasiliteter
Om boligen
Dette er en super 2-roms selveierleilighet med sentral beliggenhet på Frogner. Leiligheten ligger høyt og fritt til i byggets 7. etasje, og vender i sin helhet mot bakgård.
Planløsningen er godt utnyttet og arealeffektiv, og inneholder stue med åpen kjøkkenløsning, soverom, samt flislagt bad fra 2013. Du vil også garantert sette pris på den hyggelige balkongen, i tillegg til den felles takterrassen i sameiet. Leiligheten holder en stilren og moderne standard fra 2013, og store vindusflater slipper inn rikelig med naturlig lys.
Varmtvann og fyring er inkludert i felleskostnadene.
Beliggenheten er upåklagelig med gangavstand til alt av fasiliteter og servicetilbud.
Kort oppsummert er dette et ypperlig førstegangskjøp, utleie- eller pendlerbolig.
Salgsoppgaven beskriver vesentlig og lovpålagt informasjon om eiendommen
Se komplett salgsoppgaveNyttige lenker
Nærområdet
Krogsveen Majorstuen og Oslo Vest
Prisstatistikk
Bygdøy allé 37
på annonsen
prisantydning per kvadratmeter
Prisfordeling
Pris per m² ligger 2 804 kr under snittet for leiligheter i Bygdøy - Frogner.
Grafen viser antall leiligheter solgt i Bygdøy - Frogner siste året fordelt på pris per m² - totalt 1 118 leiligheter
Antall boliger
Kvadratmeterpris tilsvarer prisantydning pluss fellesgjeld per kvadratmeter (p-rom eller BRA-i). Prisene i grafen er avrundet til nærmeste 1000 kr.
Annonseinformasjon
| FINN-kode | 363432670 |
|---|---|
| Sist endret | 12. sep. 2024 07:16 |
| Referanse | KR40.24133 |
Annonsene kan være mangelfulle i forhold til lovpålagt opplysningsplikt. Før bindende avtale inngås oppfordres interessenter til å innhente komplett informasjon fra meglerforetaket, selger eller utleier.






























