Bildegalleri

- Hesteskoen 10H er et enderekkehus over tre plan med en god beliggenhet på Kjelsås, med nærhet til barnehager, skoler, offentlig kommunikasjon, servicetilbud, samt sentrum og Marka - en perfekt beliggenhet for familier -
Solgt
KJELSÅS
Attraktivt enderekkehus m/nytt tak og fasade/isolasjon i 2022 | Solrikt | Garasjeplass | Barnevennlig | Nær marka
Prisantydning10 250 000 kr
Nøkkelinfo
- Boligtype
- Rekkehus
- Eieform
- Eier (Selveier)
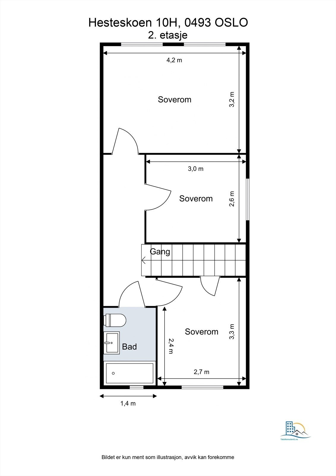
- Soverom
- 3
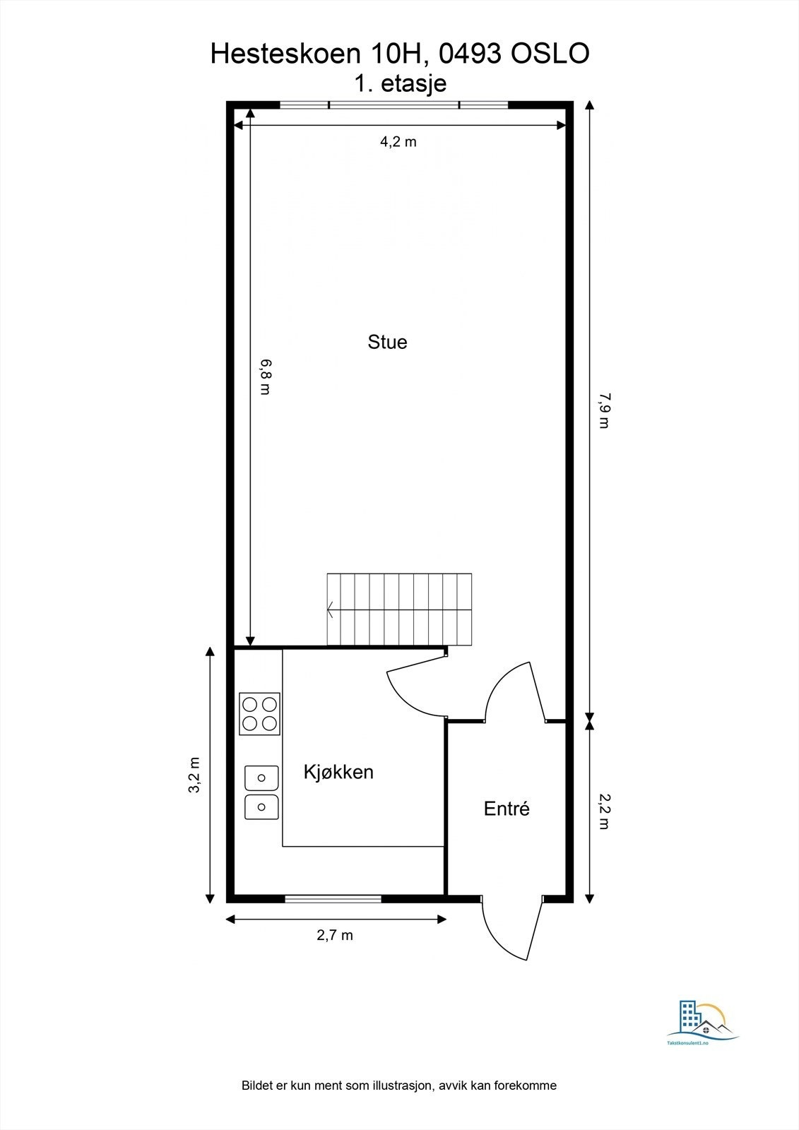
- Internt bruksareal
- 127 m² (BRA-i)
- Bruksareal
- 127 m²
- Balkong/Terrasse
- 11 m² (TBA)
- Byggeår
- 1961
- Energimerking
- G - Oransje
- Rom
- 5
- Tomteareal
- 44 673 m² (eiet)
Fasiliteter
Balkong/Terrasse
Barnevennlig
Bredbåndstilknytning
Garasje/P-plass
Hage
Kjæledyr tillatt
Ingen gjenboere
Kabel-TV
Offentlig vann/kloakk
Parkett
Peis/Ildsted
Rolig
Turterreng
Om boligen
Velkommen til Hesteskoen 10H!
Dette er et enderekkehus over tre plan med en god beliggenhet på Kjelsås, med nærhet til barnehager, skoler, offentlig kommunikasjon, servicetilbud, samt sentrum og Marka en perfekt beliggenhet for familier. Huset er i god teknisk tilstand med nytt yttertak (22), ny fasadekledning med ny isolasjon (22) samt nye vinduer i 1.etg og 2.etg. les mer under feltet modernisering.
- Innholdsrikt rekkehus
- Sørvestvendt terrasse på ca. 11 m² med svært gode solforhold
- God standard med en god planløsning
- Separat kjøkken med plass til spisegruppe
- To baderom
- Tre soverom
- Hyggelig peisovn, varmer godt opp i boligen
- Garasjeplass
- En svært god beliggenhet, både i sameiet og området for øvrig
- En perfekt bolig både for barnefamilier og godt voksne
Dette er et enderekkehus over tre plan med en god beliggenhet på Kjelsås, med nærhet til barnehager, skoler, offentlig kommunikasjon, servicetilbud, samt sentrum og Marka en perfekt beliggenhet for familier. Huset er i god teknisk tilstand med nytt yttertak (22), ny fasadekledning med ny isolasjon (22) samt nye vinduer i 1.etg og 2.etg. les mer under feltet modernisering.
- Innholdsrikt rekkehus
- Sørvestvendt terrasse på ca. 11 m² med svært gode solforhold
- God standard med en god planløsning
- Separat kjøkken med plass til spisegruppe
- To baderom
- Tre soverom
- Hyggelig peisovn, varmer godt opp i boligen
- Garasjeplass
- En svært god beliggenhet, både i sameiet og området for øvrig
- En perfekt bolig både for barnefamilier og godt voksne
NB: Knappen for å vise hele beskrivelsen har kun en visuell effekt.
NB: Knappen for å vise hele beskrivelsen har kun en visuell effekt.
Salgsoppgaven beskriver vesentlig og lovpålagt informasjon om eiendommen
Se komplett salgsoppgaveNyttige lenker
Nærområdet
Nordvik Nydalen
Annonseinformasjon
| FINN-kode | 362393539 |
|---|---|
| Sist endret | 11. okt. 2024 09:23 |
| Referanse | 20-0248/24 |
Annonsene kan være mangelfulle i forhold til lovpålagt opplysningsplikt. Før bindende avtale inngås oppfordres interessenter til å innhente komplett informasjon fra meglerforetaket, selger eller utleier.



















































