Bildegalleri

Velkommen til Valdresvegen 1802!
Solgt
Velkommen på visning i sommer! "Lettdrevet" hytte på Golsfjellet! Vann/avløp og stor inngjerdet tomt. Gode solforhold!
Prisantydning1 690 000 kr
- Omkostninger
- 42 250 kr
- Totalpris
- 1 732 250 kr
- Kommunale avg.
- 5 187 kr per år
- Eiendomsskatt
- 1 456 kr per år
- Verditakst
- 2 300 000 kr
Nøkkelinfo
- Beliggenhet
- På fjellet
- Boligtype
- Hytte
- Eieform
- Eier (Selveier)
- Internt bruksareal
- 53 m² (BRA-i)
- Bruksareal
- 53 m²
- Balkong/Terrasse
- 16 m² (TBA)
- Tomteareal
- 2 094 m² (eiet)
- Byggeår
- 1984
- Soverom
- 3
- Rom
- 3
- Energimerking
- F - Oransje
- Overtakelse
- Etter nærmere avtale med selger. Vær vennlig å angi ønsket overtagelsesdato i vedlagte budskjema.
Fasiliteter
Innlagt vann
Aircondition
Alpinanlegg
Balkong/Terrasse
Bilvei frem
Hage
Peis/Ildsted
Bademulighet
Innlagt strøm
Turterreng
Om boligen
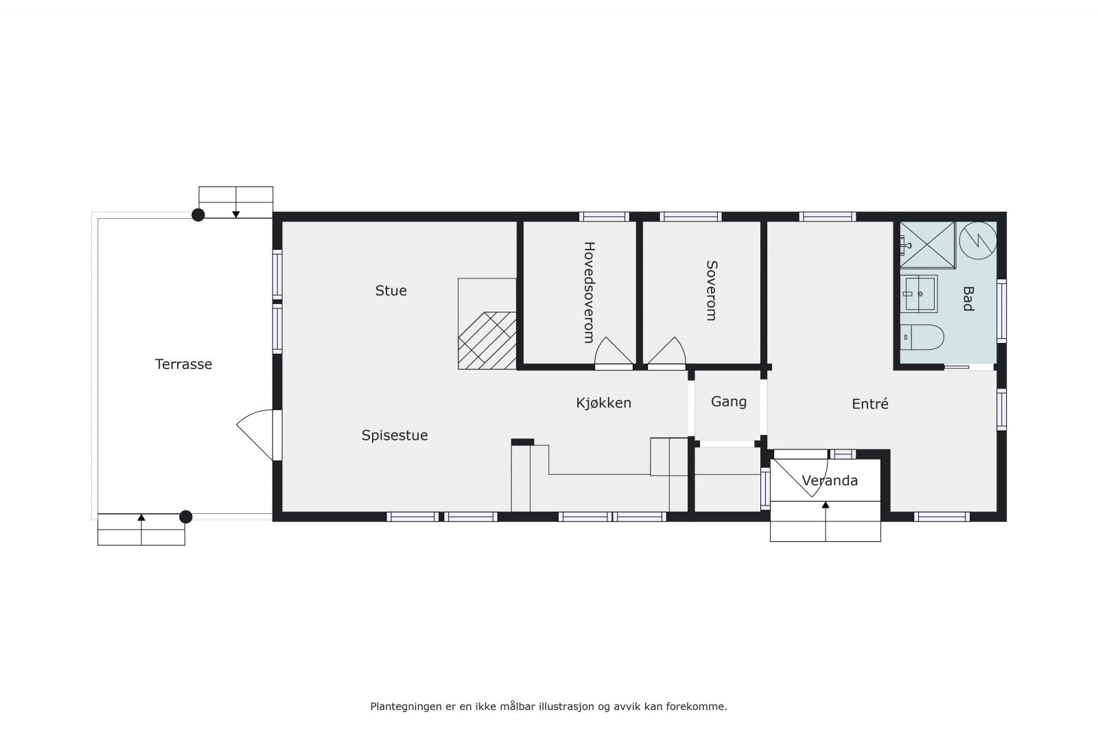
Valdresvegen 1802 er en hytte fra 1984 med tilbygg fra 2015. Hytta har en solrik beliggenhet på Golsfjellet som er en fin helårsdestinasjon. På Golsfjellet finner du et godt utvalg av aktiviteter for hele familien, med blant annet over 50 merkede sykkelløyper, fotturer for ulike nivåer og bade- og fiskemuligheter i flere vann og elver. Vinterstid går langrennsløypene like ved eiendommen, og de er koblet på det omfattende løypenettet med 20 mil preparerte skiløyper innover fjellet.
Hytta inneholder en romslig gang, enkelt hyttekjøkken, koselig stue med utgang til terrasse, 3 soverom og et fint bad. I tillegg er det en hems for ekstra sengeplasser eller oppbevaring. Tomen er på ca. 2 mål med mulighet for garasje og uthus.
Velkommen på visning!
Hytta inneholder en romslig gang, enkelt hyttekjøkken, koselig stue med utgang til terrasse, 3 soverom og et fint bad. I tillegg er det en hems for ekstra sengeplasser eller oppbevaring. Tomen er på ca. 2 mål med mulighet for garasje og uthus.
Velkommen på visning!
NB: Knappen for å vise hele beskrivelsen har kun en visuell effekt.
NB: Knappen for å vise hele beskrivelsen har kun en visuell effekt.
Salgsoppgaven beskriver vesentlig og lovpålagt informasjon om eiendommen
Se komplett salgsoppgaveNyttige lenker
Nærområdet
EIE Fjellmegleren Gol / Nesbyen / Flå
Prisstatistikk
Valdresvegen 1802
39 822 klikk
på annonsen
31 886 kr
prisantydning per kvadratmeter
Prisfordeling
Pris per m² ligger 7 114 kr under snittet for hytter i Gol.
Grafen viser antall hytter solgt i Gol siste året fordelt på pris per m² - totalt 29 hytter
Antall boliger
Kvadratmeterpris tilsvarer prisantydning pluss fellesgjeld per kvadratmeter (p-rom eller BRA-i). Prisene i grafen er avrundet til nærmeste 1000 kr.
Annonseinformasjon
| FINN-kode | 361836966 |
|---|---|
| Sist endret | 21. aug. 2025 09:20 |
| Referanse | 1531240168 |
Annonsene kan være mangelfulle i forhold til lovpålagt opplysningsplikt. Før bindende avtale inngås oppfordres interessenter til å innhente komplett informasjon fra meglerforetaket, selger eller utleier.
































