Bildegalleri

Romslig 5-roms toppleilighet/kollektiv på Laksevåg. 1 soverom ledig!
- Månedsleie
- 7 500,–
- Depositum
- 15 000,–
Nøkkelinfo
- Internt bruksareal
- 80 m² (BRA-i)
- Boligtype
- Rom i bofellesskap
- Soverom
- 3
- Etasje
- 3.
- Leieperiode
- 06.05.2025
Fasiliteter
Beskrivelse
? Nymalt og innflyttingsklar leilighet med møblerte rom til leie – like ved Laksevåg senter!
Leiligheten er nylig renovert og klar for innflytting. Den leies ut møblert med blant annet kommoder, senger, speil, TV-er, TV-benker m.m. Møblene er plassert på de ulike soverommene og kan benyttes av leietakere ved ønske, etter "førstemann til mølla"-prinsippet.
Møblene i fellesområdene tilhører disse rommene og skal bli stående der.
🧑 🤝 🧑 Om bomiljøet
Som utleier er det viktig for meg at det er god stemning i kollektivet, og at alle viser respekt og hensyn til hverandre. Målet er at boforholdet skal være trygt, hyggelig og positivt for alle parter.
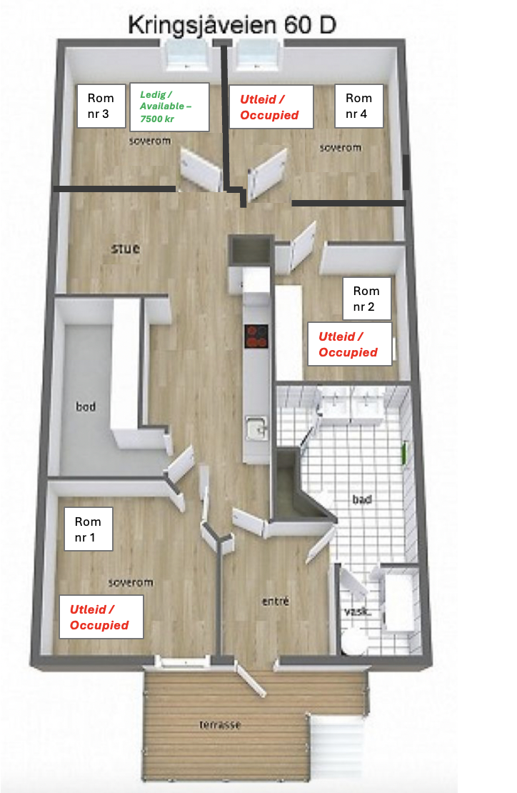
🛏? Ledige og utleide rom
Soverom 1 – 7500/10 000 kr – UTLEID – Fikrat (fom 22.06 - Davit & Laura, 26 og 27 år, Jobber på restaurant på Bergen fiskemarket)
Soverom 2 – 7 000 kr – UTLEID - Sang Hoon, jobber på NHH og studerer på nett.
Soverom 3 – 7 500 kr – LEDIG
Soverom 4 – 7 500 kr – UTLEID - Mathias - 31 år - Barnehageassistent
📍 Beliggenhet
Leiligheten ligger et steinkast fra Laksevåg senter, med butikker og alt du trenger i hverdagen. Treningssentre som Energi, SATS og Kaliber Gym ligger i umiddelbar nærhet.
Bussholdeplass like ved – buss tar:
Ca. 8 min til Bergen sentrum
Ca. 14 min til UiB/BI
Ca. 21 min til Haukeland sykehus / Høgskulen på Vestlandet
Flott utsikt over Byfjorden og Nordnes, og sol fra morgen til kveld ved terrasseinngangen – perfekt som uteplass! Mange fine turmuligheter i nærområdet.
📦 Praktisk info
Hvitevarer og større møbler inkludert
Internett inkludert via Bergen Fiber / Altibox (150/150) – midlertidig mobilt bredbånd fra Telia benyttes frem til bytte.
Bod både inne og ute til oppbevaring
Parkering i veien ved Laksevåg senter (se bilde)
Barnehage, barneskole og ungdomsskole kun 2 minutters gange unna
💰 Leie og betingelser
2 måneders depositum på egen konto eller gjennom depositumsgaranti
📞 Ta kontakt nå!
Disse rommene blir fort utleid – ikke vent for lenge!
Send en melding via Hybel.no i dag for å avtale visning.
_______________________________________________________________________________
🇬🇧Newly renovated and fully furnished apartment with rooms for rent – right by Laksevåg Senter!
The apartment has recently been painted and renovated, and is now ready for new tenants. It comes furnished with items like dressers, beds, mirrors, TVs, TV stands, etc.
These items are currently placed in the bedrooms and are available to use on a first come, first served basis.
Furniture placed in the shared areas is to remain there for communal use.
🧑 🤝 🧑 About the living environment
As the landlord, I care deeply about creating a friendly and respectful atmosphere in the apartment. I want the living situation to be a positive and enjoyable experience for everyone.
🛏? Room availability
Room 1 – NOK 7,500 / 10 000 RENTED – Fikrat (From June 22: Davit and Laura, 26 and 27 years old, work at a restaurant at the Bergen Fish Market.)
Room 2 – NOK 7,000 – OCCUPIED - Sang Hoon, 33 years old, works at NHH and study online.
Room 3 – NOK 7,500 – AVAILABLE
Room 4 – NOK 7,500.- OCCUPIED - Mathias – 31 years old – works as a kindergarten assistant.
📍 Location
The apartment is located just a short walk from Laksevåg Senter, which has all the shops and services you might need. Several gyms nearby, including Energi, SATS, and Kaliber Gym.
Public transport is easily accessible:
Around 8 minutes by bus to Bergen city center
About 14 minutes to UiB or BI
Around 21 minutes to Haukeland Hospital / Western Norway University of Applied Sciences (HVL)
There is a beautiful view of the fjord and Nordnes, and the apartment gets sun from morning until evening by the terrace entrance – a great place to relax! There are also plenty of hiking opportunities nearby.
📦 Practical information
Large furniture and white goods included
Internet included – Bergen Fiber / Altibox (150/150). For now, mobile broadband from Telia is being used due to contract period.
Indoor and outdoor storage space available
Parking available on the street near Laksevåg Senter (see picture)
Kindergarten, elementary and middle school just 2 minutes’ walk from the apartment
💰 Rent & terms
2 months’ deposit (held in a separate deposit account), or you can use a deposit guarantee
📞 Get in touch today!
These rooms are rented out quickly – don’t wait!
Send a message via Hybel.no now to schedule a viewing.
Visning
Hybel.no
Nyttige lenker
Nærområdet
Annonseinformasjon
| FINN-kode | 361673657 |
|---|---|
| Sist endret | 19. mai 2025 17:36 |
| Referanse | rom-i-bofellesskap-kringsjaveien-60d-laksevag |
Annonsene kan være mangelfulle i forhold til lovpålagt opplysningsplikt. Før bindende avtale inngås oppfordres interessenter til å innhente komplett informasjon fra meglerforetaket, selger eller utleier.






























