Bildegalleri
Minihus/mikrohus på hjul selges
Til salgs
749 900 kr
Beskrivelse av varen
Tilstand: Som ny - Ikke synlig brukt
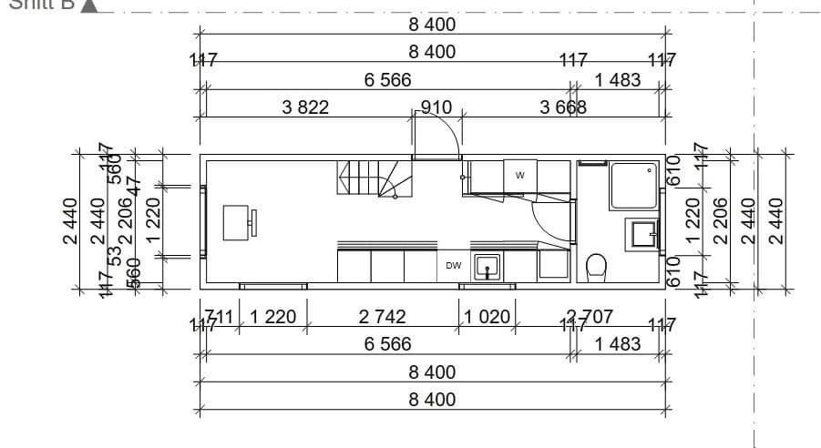
Huset er designet for å gi maksimal komfort og plass for enslige og par. Det har to flotte hemser, med stue og soverom, som er tilgjengelige via sambatrapper.
I førsteetasje finner du et stort kjøkken fra AUBO med integrerte hvitevarer. Det inkluderer kjøle-/fryseskap, oppvaskmaskin, mikrobølgeovn, ovn og induksjonstopp. Det er også et kontorområde med en skreddersydd IKEA-Pax løsning, hvor du kan få plass til alt du trenger.
Du finner også et romslig bad i førsteetasje som er utstyrt med alt du trenger for å leve komfortabelt. Der er det baderomsplater på veggene og belegg på gulvet. I tillegg er det et forbrenningstoalett (Cinderella Comfort), som gjør at du ikke trenger avløp for kloakk. Huset er også utstyrt med en 200 l varmtvannstank
Huset har gulvvarme i hele første etasje og en varmepumpe, som sikrer en lun og behagelig temperatur uansett vær. Belysningen styres både med veggbrytere og Philips Hue-appen, som gir deg full kontroll over lys og varme via telefonen, uansett hvor du befinner deg i verden.
Huset står på en Vlemmix TH780-tilhenger og har påsatt avløp og vanntilkobling utvendig. Det er utstyrt med en 230V 32A strømkontakt.
Fortsatt noe småtteri som gjenstår dette vil bli ferdigstilt før salg
Ved flere spørsmål bare å ta kontakt på Finn eller via telefon 91833887
Brukerprofil
Du må være logget inn for å se brukerprofiler og sende meldinger.
Logg innAnnonsens metadata
Sist endret: 5.6.2025 kl. 21:20 ・ FINN-kode: 361446332
Utforsk våre nye sider for klær og mote
Ta en titt















