Bildegalleri

Solgt
Øygarden
3 eneboliger Øygarden
Bolig 3
Prisantydning4 990 000 kr
Kort om prosjektet
3 eneboliger i godt etablert boligfelt med kort avstand til flotte turområder, Bygnes og Kopervik Sentrum. BRA på 155m2 med godt utnyttet arealer over to plan.
Prosjektets status
Planlegging
For salg
Salgsstart
Juli 2024
Byggestart
September 2024
Overtakelse
Etter avtale
Nøkkelinfo
- Boligtype
- Enebolig
- Soverom
- 3
- Bruksareal
- 149 m²
Fasiliteter
Balkong/Terrasse
Ingen gjenboere
Offentlig vann/kloakk
Barnevennlig
Garasje/P-plass
Kabel-TV
Parkett
Balansert ventilasjon
Bredbåndstilknytning
Lademulighet
Peis/Ildsted
Turterreng
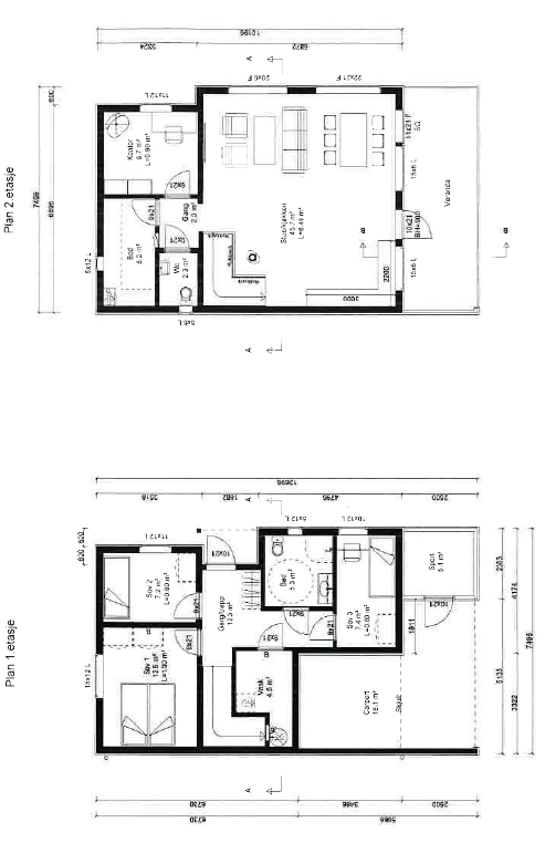
Beskrivelse
Første etasje: Entré, bad, tre soverom, vaskerom/bod
Andre etasje: Stue og kjøkken i åpen løsning, wc og kontor
Carport med sportsbod
Boligene inneholder :
- Flott og moderne kjøkken inkl. hvitevarer
- 1-stavs laminat på alle gulv (unntatt våtrom)
- Fliser på golv på våtrom
- Malte flater i tak og vegger.
- Baderomsplater på vegger på bad.
- Alu. bekledning på vinduer
- Fabrikk beiset kledning
- Terrasse over carport
- Ovn og pipe
- ++
NB: Knappen for å vise hele beskrivelsen har kun en visuell effekt.
NB: Knappen for å vise hele beskrivelsen har kun en visuell effekt.
Nærområdet

Bømlo Hus AS
Annonsene kan være mangelfulle i forhold til lovpålagt opplysningsplikt. Før bindende avtale inngås oppfordres interessenter til å innhente komplett informasjon fra meglerforetaket, selger eller utleier.














