Bildegalleri

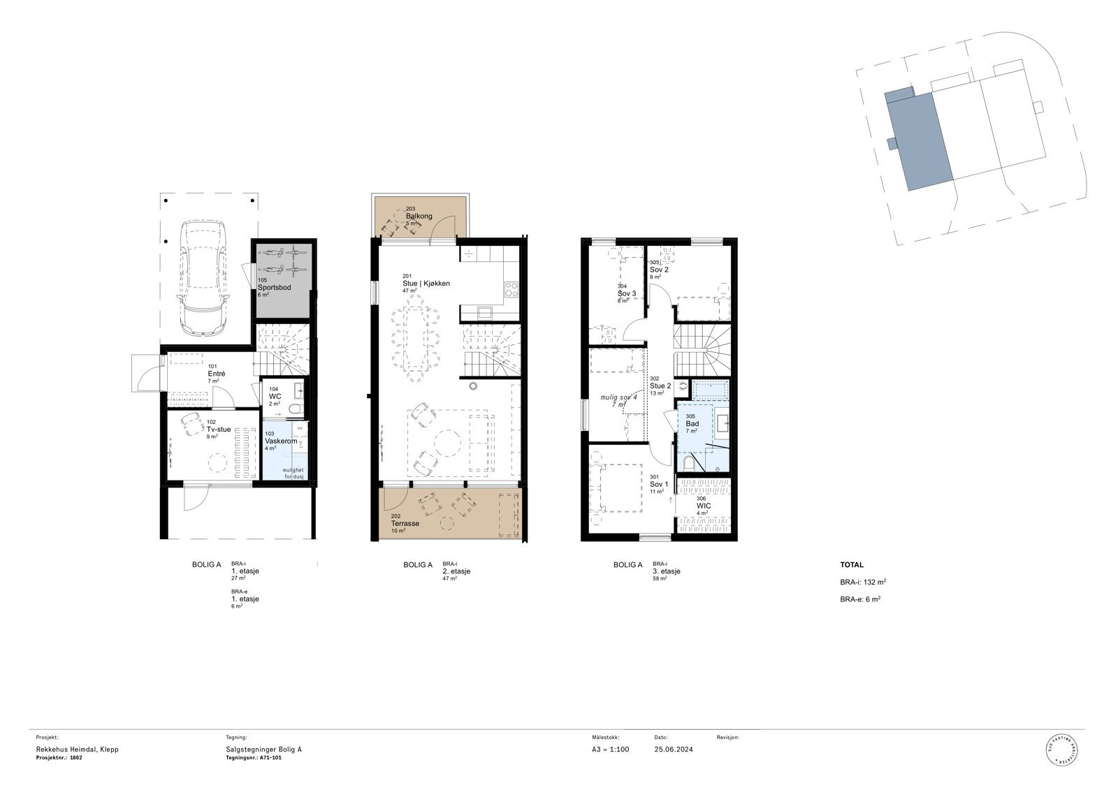
Plantegning - Heimdal, bolig A
Heimdal
To av tre solgt! Prosjekterte og innholdsrike rekkehus med attraktiv beliggenhet. Bygging igangsatt.
Prosjektets status
Planlegging
-
Salgsstart
05.07.2024
Byggestart
Byggestart i gang
Overtakelse
Juli 2025
Nøkkelinfo
- Boligtype
- Rekkehus
- Soverom
- 3
- Internt bruksareal
- 132 m² (BRA-i)
- Bruksareal
- 138 m²
- Eksternt bruksareal
- 6 m² (BRA-e)
- Balkong/Terrasse
- 15 m² (TBA)
Beskrivelse
Oppdragsansvarlig
Jæren Eiendomsmegling AS / Bjørn Rune Salte
Selger/Utbygger
Jærbygg prosjekt as
Betegnelse
Gnr. 17 Bnr. 386 Snr. 3 i Klepp kommune
Arealer og fordeling per etasje
Bolig B
Totalt BRA: 158 kvm
Første etasje: BRA: 42 kvm, BRA-i: 36 kvm, BRA-e: 6 kvm
Andre etasje: BRA: 52 kvm, BRA-i: 52 kvm, TBA: 18 kvm
Tredje etasje: BRA: 64 kvm, BRA-i: 64 kvm
Se prisliste for oppgitt areal til den enkelte bolig.
BRA - Boligens bruksareal (summen av BRA-i, BRA-b og BRA-e)
BRA-i - Areal innenfor boenheten
BRA-e - Areal tilhørende boenheten utenfor denne, eksempelvis bod i kjeller
BRA-b - Innglasset balkong
TBA - Terrasse-/balkongareal
Bruksareal (BRA-i) for en boenhet er det arealet av boenheten som ligger innenfor omsluttende
vegger. I BRA-i medregnes
areal som opptas av vegger, rør og ledninger, sjakter, søyler, innredningsenheter o.l. innenfor
boenheten.
Definisjoner og beregninger er basert på: NS 3940:2023.
Leilighetens areal er rundet opp/ned til nærmeste hele tall i den til enhver tid gjeldende prisliste og
prospekt.
Arealberegningene er foretatt av arkitekt/selger og er oppmålt etter tegninger.
Det tas forbehold om arealavvik mellom prospekttegning og kontrakts tegning
Arealer og fordeling pr. etasje
Bruksareal: 138 kvm - 158 kvm, BRA-i: 132 kvm - 152 kvm , BRA-e: 6 kvm , TBA: 15 kvm - 18 kvm
Prosjektbeskrivelse/Beliggenhet
PROSJEKTBESKRIVELSE
I et av Brynes mest ettertraktede boligområder bygges det nå tre moderne og tiltalende rekkehus i rekke i en endegate fri for gjennomgjøring i et barnevennlig boligområde på Tu/Kåsen i Klepp kommune. Dette er prosjektet for deg som søker kort vei til sentrum, butikkhandel, turområde, skole og tog m.m.
Boligen er på tre etasjer og her får du 3-5 soverom. Flott kjøkken/allrom med kjøkkeninnredning i eik utførelse levert av kvalitetsleverandøren Aubo, inklusive hvitevarer. Det er innfelte downlights på kjøkken/stue, gang og bad, samt 1-stavs parkett på gulv. Boligen har et lekkert bad med 60x60 fliser, samt gjestetoalett og vaskerom med mulighet for dusj. Boligen har også en tv-stue i første etasje, et kjærkomme rom for familien, her kan ungdommen enkelt trekke seg tilbake i egen sone.
Fra tv-stue er det utgang til hage/terrasse og fra stue/kjøkken i andre etasje er det utgang til balkong på begge sider. Lune, solfylte utesteder med takoverbygg. Boligen har royalimpregnert kledning og det medfølger carport, samt to biloppstillingsplasser per bolig. Boligen har også egen sportsbod på ca. 6 kvm.
Dette er hjemmet for deg som setter pris på kort avstand til det meste og ønsker en bolig hvor man ikke trenger å tenke på vedlikehold på flere år.
BELIGGENHET
Rekkehusene ligger i en rolig gate fri for gjennomkjøring, i et sentralt, skjermet og barnevennlig område på Tu/Kåsen i Klepp kommune. Stedet er et av Brynes mest ettertraktede boligområder, og her har man nærhet til barnehager, skoler, friluftsområder og offentlig kommunikasjon. I Bryne sentrum finner du togstasjon og et variert servicetilbud.
Fra eiendommen er det umiddelbar nærhet til Kåsen idrettslag ved Kåsen fotballbane. Boligene har kort vei til flotte tur- og rekreasjonsområder som kan benyttes gjennom hele året, hvor blant annet Njåskogen byr på gode turstier og lysløype vinterstid. I tillegg er det gangavstand til det flotte parkanlegget, Vardheia, som ligger like ved Frøylandsvatnet. Langs østsiden av vannet er det opparbeidet turvei fra Bryne til Kvernaland.
Bryne fotballklubb holder til ved Bryne stadion og har ca. 50 lag i aldersbestemte klasser. Stadionanlegget har gressbane, kunstgressbane og innendørs treningshall. Bryne har også tennisklubb, taekwon-do klubb, karateklubb, svømmeklubb og håndballag. For golfentusiaster kan Jæren golfklubb tilby en 9-hulls bane av høy kvalitet, 6-hulls treningsbane og driving-range.Ved elven Bryneåna finner du Fritz Røed skulpturpark. I enden av parken ligger Bryne mølle med utstillingslokaler, scene og kafé. Ikke langt fra parken ligger også Garborgsenteret som er et nasjonalt formidlingssenter for forfatterskapene til Hulda og Arne Garborg. I underetasjen på senteret finner du Time bibliotek.
Dagligvarehandelen kan blant annet gjøres på Coop Extra, Rema 1000, Kiwi og Obs. Sistnevnte ligger på M44 senteret i Bryne. Her finner man et rikt utvalg butikker og forretninger, samt flere spisesteder. I tillegg ligger Stavanger godt innen rekkevidde med alt av bymessige fasiliteter.
Området byr på offentlig kommunikasjon i form av buss og tog. Nærmeste holdeplass er Varheia ungdomsskule. Det er ca. 18 minutters gange til Bryne stasjon, og herfra tar toget deg til Stavanger på ca. 32 min. Ved å benytte bil tar det ca. 31 min til Stavanger, 20 min til Sandnes og 24 min til Stavanger Lufthavn.
Boligene ligger rett ved Tu barneskole, som stod ferdig januar 2015. For elever i ungdomstrinnene er gangavstand til Vardheia ungdomsskule, som sto ferdig i august 2021. Det finnes flere videregående skoler i nærliggende områder, samt et godt utvalg av både kommunale og private barnehager. Tu barnehage og Tjøttaparken FUS barnehage ligger i umiddelbar nærhet.
Bygninger
TOMTESTØRRELSE
Eiendommen har et totalt areal på 555 kvm.
Eiendommen er under seksjonering, og hver enhet får egen tomt med eget matrikkelbrev. Det
opprettes sameie for tomten, med eksklusiv bruksrett for hagearealene.
Byggemåte
Leveranser i henhold til TEK 17. Se leveransebeskrivelse fra utbygger.
Innhold
Bolig B
1.etasje: Entré/garderobe, wc, tv-stue, vaskerom og bod u/trapp (tilvalg).
2.etasje: Stue/kjøkken og mulighet for et fjerde soverom.
3.etasje: Gang, bad, 3 soverom, walk-in closet og bod.
Annet: Carport, sportsbod på ca. 6 kvm, balkong på ca. 7 kvm, balkong på ca. 11 kvm og terrasse på
ca. 11 kvm.
Standard
Velkommen til Heimdal 2B!
Nå har du muligheten til å sikre deg en lekker bolig med attraktiv beliggenhet!
I et av Brynes mest ettertraktede boligområder bygges det nå tre moderne og tiltalende rekkehus i rekke i en endegate fri for gjennomgjøring i et barnevennlig boligområde på Tu/Kåsen i Klepp kommune. Dette er prosjektet for deg som søker kort vei til sentrum, butikkhandel, turområde, skole og tog m.m.
Boligen er på tre etasjer og her får du 3-5 soverom. Flott kjøkken/allrom med kjøkkeninnredning i eik utførelse levert av kvalitetsleverandøren Aubo, inklusive hvitevarer. Det er innfelte downlights på kjøkken/stue, gang og bad, samt 1-stavs parkett på gulv. Boligen har et lekkert bad med 60x60 fliser, samt gjestetoalett og vaskerom med mulighet for dusj. Boligen har også en tv-stue i første etasje, et kjærkomme rom for familien, her kan ungdommen enkelt trekke seg tilbake i egen sone.
Fra tv-stue er det utgang til hage/terrasse og fra stue/kjøkken i andre etasje er det utgang til balkong på begge sider. Lune, solfylte utesteder med takoverbygg. Boligen har royalimpregnert kledning og det medfølger carport, samt to biloppstillingsplasser per bolig. Boligen har også egen sportsbod på ca. 6 kvm.
Dette er hjemmet for deg som setter pris på kort avstand til det meste og ønsker en bolig hvor man ikke trenger å tenke på vedlikehold på flere år.
Utstyr
Balansert ventilasjon.
Møblering
Eiendommen selges umøblert.
Oppvarming
Det leveres pipe gjennomføring gjennom sperr, avsluttes i himling 2. etg. Det leveres elektriske
varmekabler i alle våtrom. Videreføring og installasjon av vedovn vil være tilvalg.
Parkering / Garasje
Hver bolig har fast parkering i Carport på tomt, samt i gårdsrom.
Adkomst
På finn.no kan du se vedlagt kartskisse på høyre side i annonsen. Ved å trykke på kartet får du enkelt tilgang til en spesifisert reiserute fra din startdestinasjon til boligen. Det vil bli skiltet med PrivatMegleren visningsskilt på visningsdagen.
Beskrivelse av tomt
Overtakelse av boligene kan ikke nektes av kjøper selv om utomhusarealer ikke er ferdigstilt. Såfremt deler av utvendige arbeider ikke er ferdigstilt ved overtakelse av boligen, skal manglende ferdigstilte arbeider anmerkes i overtakelsesprotokollen.
Det gjøres oppmerksom på at leveransebeskrivelsen/utomhusplanen i salgsprospektet ikke er ferdig detaljprosjektert, og at endringer vil forekomme. Kjøper kan utøve tilbakehold av nødvendig beløp på meglers klientkonto som sikkerhet for manglene.
Tilbakeholdt beløp må stå i samsvar med manglene. Alternativt kan selger stille garanti for ferdigstillelsen. Ovennevnte oppfordring om tilbakeholdelse gjelder også for de forhold som gjenstår for å få ferdigattest.
Tinglyste rettigheter og forpliktelser
Kommunen har legalpant som sikkerhet for betaling av kommunale avgifter. Legalpant er pant som følger av loven, og som ikke tinglyses. Legalpant følger derfor eiendommen ved salg. På eiendommen kan det være tinglyst erklæringer som f eks rett for kommunen til å vedlikeholde rørsystemer for vann- og kloakk. Disse erklæringene vil følge eiendommen ved salg. Kontakt megler for nærmere informasjon.
Øvrige sameiere har panterett i seksjonen for krav mot sameieren som følge av sameieforholdet, jf. eierseksjonsloven § 31. Pantekravet kan ikke overstige 2G (Folketrygdens grunnbeløp). Sameiet kan vedtektsfeste ytterligere panterett for sameiet. Vedtektsfestet pant tinglyses i seksjonene.
Servitutter / rettigheter
Eiendommen overdras fri for pengeheftelser, med unntak av eventuelle erklæringer, avtaler, servitutter og panteheftelser som fremgår av salgsoppgaven og skal følge med eiendommen ved salg. Kjøpers bank vil få prioritet etter disse.
Det er ingen registrerte heftelser på eiendommen.
RETTIGHETER PÅ ANDRE EIENDOMMER
Rettigheter på 1120-17/387
Rettigheter i eiendomsrett
2024/1046111-1/200 Bestemmelse om bebyggelse
01.02.2024 21:00
rettighetshaver:Knr:1120 Gnr:17 Bnr:386
Tillatt å bygge nærmere tomtegrensen enn 4 m
Vei / Vann / Avløp
Eiendommen vil være tilknyttet offentlig vei, vann og avløp via private/felles private stikkledninger.
Alle arbeider og kostnader er inkludert i kjøpesummen.
Ferdigattest eller midl. brukstillatelse
Kjøper har heller ingen plikt til å overta eller innbetale oppgjør før midlertidig brukstillatelse foreligger. Det er ulovlig å ta boligen i bruk før ferdigattest eller midlertidig brukstillatelse foreligger.
Å bebo uten brukstillatelse kan medføre krav om utflytting og eventuelle bøter fra kommunen. Ved å velge å overta stopper eventuelle krav om dagbøter.
Verdi ved skattefastsetting
Verdien ved skattefastsetting er p.t. ikke fastsatt. Verdien ved skattefastsetting fastsettes av Ligningskontoret etter beregningsmodell som tar hensyn til om boligen er en såkalt "primærbolig" (der boligeieren er folkeregistrert bosatt) eller "sekundærbolig" (alle boliger man eier, men ikke bor fast i). Interessenter oppfordres til å sjekke www.skatteetaten.no eller kontakte ansvarlig megler for nærmere informasjon om verdien ved skattefastsetting.
Velforening
Dersom en rasjonell forvaltning av fellesareal eller offentlige myndigheter krever det, kan selger sørge for etablering av velforening eller lignende som kjøper blir pliktig medlem av. Kostnadene ved forvaltning av slikt fellesareal vil bli fordelt på medlemmene i den aktuelle forening.
Gjennom sitt medlemskap er eieren pliktig til å vedstå seg og respektere foreningens rettigheter og plikter.
Regulert fellesareal skal/kan overskjøtes velforeningen som etableres for det samlede boligfelt.
Dokumentavgift for andel fellesareal er inkludert i kjøpesummen/tomteverdien for boligen, og betales ved overskjøting av boligen.
Detaljprosjektering
På salgstidspunktet er prosjektet ikke ferdig detaljprosjektert. Under detaljprosjekteringen må det påregnes mindre justeringer av planer, materialbruk og løsninger. Eksempler på dette er veggtykkelser, jakter/innkassinger for tekniske føringer, mindre justeringer på kjøkkeninnredning, vinduer, dører, bod plasseringer, justeringer i garasjeanlegg og annet. Sjakter og føringer for VVS er ikke endelig inntegnet og nedkassinger/foringer i himling vil stedvis kunne forekomme.
Justeringer som beskrevet over berettiger ikke endring av kjøpesummen så lenge justeringene ikke er vesentlige og påvirker boligen negativt mht. rom, funksjon og kvaliteter. Justeringer som beskrevet over kan også medføre mindre endringer i beregningsmessig bruksareal, uten at dette berettiger endring av kjøpesum dersom boligene og prosjektets ytre mål er tilsvarende som på salgstidspunktet.
Plantegningene er i skalert målestokk. De må imidlertid ikke benyttes som grunnlag for bestilling av innredning eller møbler. Mindre avvik kan forekomme.
Det er tatt forbehold om riss/sprekk mellom tak og vegg der boligen leveres uten taklister. Riss/sprekk vl ikke være grunnlag for reklamasjon.
Krymping i betong, tre, plater etc. kan medføre riss. Selger er ikke forpliktet til utbedring av slike mangler utover normer/krav i Norsk Standard NS3420 3, utgave etter NBI-byggdetaljblad «520.008 toleranser, anbefalte toleranser til ferdige overflate for utførelse». Skader som måtte skyldes kjøpers bruk eller manglende vedlikehold vil heller ikke vedrøre selger.
Reguleringsforhold
REGULERINGSPLAN
Navn: Område B25 Nordlysvegen
Formål: Konsentrert småhusbebyggelse
Vedtaksdato: 12.02.2007
KOMMUNEPLAN
Navn: Klepp
Formål: Boliger
Periode: 2014-2025
Kopi av kommuneplan kan fås utlevert hos megler, og vil også være vedlegg til kontrakt.
Vi oppfordrer interessenter til å gjøre seg kjent med disse.
Beskrivelse av sameiet
En sameier eier en andel i eiendommen, med tilknyttet enerett til bruk av sin bruksenhet, jf. eierseksjonsloven § 25.
Ingen kan erverve mer enn to boligseksjoner i et sameie, jf. eierseksjonsloven § 23 første ledd. Dersom et erverv har funnet sted i strid med eierseksjonslovens regler kan Kartverket nekte overskjøting.
Dersom overskjøting blir nektet, er kjøper likevel forpliktet til å gjennomføre handelen med selger, og oppgjør til selger vil finne sted tross manglende overskjøting.
Interessenter oppfordres til å sette seg inn i sameiets vedtekter, husordensregler, regnskap, budsjett, årsberetning m.m. Se særlig om vedtekter og husordensregler knyttet til husdyrhold, dugnader, trappevask o.l.
Andre faste løpende kostnader
Kostnader er ikke stipulert, men en kjøper må påregne at det vil komme løpende kostnader som:
Strøm
Forsikring
Velforening
Kommunale avgift
Bredbåndstilkobling er tilrettelagt for boligene med leveranse fra Lyse (Altibox). Hver enkelt boligkjøper må foreta bestilling/oppkobling selv ved innflytting og bekostning av denne.
Oppgjør
Nøkkelferdig
Ved kontraktsinngåelse: 0,-
Ved overtagelse: kjøpesum + omkostninger.
Finansieringsbevis for hele kjøpesummen skal innleveres innen 14 dager etter kontraktsinngåelse.
Det vil bli utsendt faktura fra Privatmegleren Jæren i samsvar med Bustadsoppføringslova §12. Ved eventuell forsinket betaling gjelder lov om forsinkelsesrenter av 17.12.1976 nr. 100.
Finansiering
Kontakt megler for avklaring av finansielle forhold, herunder lån til kjøp av eiendom. Privatmegleren har avtale med Nordea om formidling av lån og andre finansielle tjenester. Privatmegleren mottar godtgjørelse for dette.
Særlige bestemmelser
1. Kjøper og selger (entreprenør) gir megler fullmakt til å skrive inn på skjøte den endelige eiendomsbetegnelsen.
2. Nabo kan utføre utvendig vedlikehold av egen bolig ved midlertidig å plassere stige på denne eiendommen.
3. Kjøper må akseptere mindre justeringer av oppgitte arealer, samt at det kan bli foretatt mindre endringer som følge av pålegg i forbindelse med byggetillatelsen, optimalisering av sjakter og kanaler etc. Dette utløser ingen prisendring.
4. Alle illustrasjoner og perspektiver er kun ment å gi et inntrykk av den ferdige bebyggelsen. De kan således inneholde elementer som ikke inngår i utbyggers leveranser, både når det gjelder utvendige forhold og innredning.
5. Selger (entreprenør) tar forbehold om justering av tegninger/situasjonsplan i forbindelse med prosjektering.
6. For utførelsen gjelder NS 3420-1:2014, tabell 1. Normalkrav. For krav til toleranser for innvendige overflater på betongvegger og undersider av etasjeskiller i leiligheter som skal sparkles og males, gjelder PD/RD i NS 3420-1:2014, tabell 1. Maler arbeid leveres i toleranseklasse K2.
7. Selger (entreprenør) tar forbehold om riss/sprekk mellom tak og vegg der boligen leveres uten taklister. Riss/sprekk vil ikke være grunnlag for reklamasjon. Det presiseres at det må påregnes nyanseforskjeller i farge på behandlede flater som parkett, gulvlister og trappetrinn. På boliger hvor det leveres kledning som er ubehandlet, grunnet eller grunnet + mellomstrøk, må den etterbehandles i tråd med leverandørens anvisning. Alle sagede ender og stuer må etterbehandles av forbruker.
8. Kjøper er innforstått med og aksepterer de ulemper som naturlig finner sted under gjennomføringen av byggeprosjektet og utbyggingen av området, også etter at innflytting har funnet sted.
9. All ferdsel på byggeplass i anleggsperioden er beheftet med høy risiko og er forbudt. Befaringer avtales på forhånd med byggeleder. Det vil ikke bli gitt tilgang til boligen før alle kontraktsforpliktelser er oppfylt. Ved egeninnsats avtales ferdsel på byggeplass med byggeleder.
10. Fullstendig ferdigstillelse av fellesarealer og utearealer kan ikke påregnes utført samtidig med innflytting. Entreprenøren forplikter seg imidlertid til å ferdigstille disse arbeidene så snart prosjektet i sin helhet er ferdigstilt. Ferdigbefaring av fellesarealer/uteareal avholdes mellom entreprenør og styret i velforeningen så snart anlegget er ferdigstilt. Dette anses ikke som forsinkelse eller mangel, og gir derfor ikke kjøper rett til å gjøre misligholdsbeføyelser gjeldende.
11. Ved tilvalg Jærbygg Prosjekt AS på mer enn kr 100.000,- skal det fremlegges finansieringsbevis på beløpet innen 14 dager. Eventuelle endringer, tilleggsarbeider, og tidsfrister på disse, skal være avtalt i skriftlig tilleggskontrakt mellom den enkelte entreprenør og kjøper. Godkjenning av produksjonsdokumenter skal være signert og returnert innen 5 dager etter bestillingsmøte. Ved for sen godkjenning kan selger/entreprenør kreve fristforlengelse på overtakelsesdatoen.
12. Fakturaer fra underleverandører på eventuelle endringer som kjøkkeninnredning, elektriker, rørlegger osv. kan bli sendt direkte fra underleverandør til kjøper før overtakelse. Disse fakturaene betales samtidig med sluttoppgjør av eiendommen dersom ikke annet er avtalt. Det vil si, dagen før overtakelse. Dersom underleverandør krever tidligere betaling, skal underleverandøren stille garantier for det forhåndsinnbetalte beløpet.
13. Entreprenøren holder bygningene brannforsikret som bygg under oppføring i byggetiden. Kjøper må selv sørge for forsikring fra og med overtakelse samt forsikring av sitt innbo og løsøre fra og med innflyttingsdato.
14. Kjøper plikter å gi entreprenøren eller dennes representanter adgang til eiendommen etter overtagelse og mulighet for å gjennomføre utbedringsarbeider på hverdagene mellom kl. 08:00 og kl. 17:00.
15. Ved overtakelsen skal eiendommen overleveres bygge rengjort fra entreprenørens hånd, dvs. ryddet og støvsugd, men ikke utvasket.
16. Utbygger kan i henhold til prisliste levere boligen klar for maler/gulvlegger. Dette må avklares senest i kontraktsmøte som selger/entreprenør innkaller til og forutsetter at arbeidene ikke allerede er bestilt eller utført av byggeleder. Dersom kjøper skal utføre egeninnsats vil tidspunkt for overtagelse bli forlenget med totalt 4 måneder forutsatt at egeninnsats utføres innen 2 måneder etter at kjøper har fått tilgang til boligen. Ved egeninnsats skal kjøper ha innbetalt beløp som tilsvarer 90% av kjøpesummen og hvor de resterende 10% innbetales ved overtagelse. Dersom fristen ikke overholdes vil arbeidene bli utført av utbygger for kjøpers regning. En gjøres oppmerksom på at beskrivelser som følger vedlagt til kontrakten er utfylt som om maler- og gulvleggerarbeid er inkludert av selger/entreprenør.
17. Selger/entreprenør kan benytte boligen som visningsbolig før overtagelse. Videre forbeholder selger/entreprenør seg rettigheten til å benytte bilder og tegninger av boligen i sin markedsføring samt å ha logoskilt på boligen under arbeid. Forbruker kan ikke fremme krav om økonomisk kompensasjon for dette.
18. Kjøper må ikke overta boligen og har ingen plikt til å innbetale oppgjør hvis ikke midlertidig brukstillatelse eller ferdigattest foreligger. Det er ulovlig å ta boligen i bruk før ferdigattest eller midlertidig brukstillatelse er gitt av kommunen. Den som lar noen overta eller overtar bolig før disse foreligger kan bli ilagt overtredelses gebyr. Ved å likevel velge å overta stopper eventuelle krav om dagbøter.
19. Kjøper opplyses om muligheten til å tilbakeholde nødvendig beløp på meglers klientkonto som sikkerhet for eventuelle mangler. Tilbakeholdt beløp må stå i samsvar med manglene. Kjøpers tilbakeholdte beløp kan kun utbetales til selger/entreprenør ved skriftlig varsel om frigivelse fra kjøper.
20. Det forbeholdes vederlagsfritt rett for kommunen, televerk og netteiere til eventuelt å anlegge og vedlikeholde kummer, ledninger, vann og avløp, kabler og forsynings skap og telefon samt stolper og ledningstrekk på forbrukers (kjøpers) tomt. Eventuelle skader erstattes.
Annen nyttig informasjon
Det tas forbehold om endelig offentlig godkjent.
ANDRE RELEVANTE OPPLYSNINGER
Selger forbeholder seg retten til å leie ut, endre priser og kjøpsbetingelser på usolgte enheter, uten forutgående varsel når selger finner dette hensiktsmessig.
Kjøper gjøres oppmerksom på at alle skisser, frihånds- og oversiktstegninger i perspektiv, annonser, bilder og planer er foreløpige og utformet for å illustrere prosjektet. Dette materialet vil derfor inneholde detaljer - eksempelvis beplantning, innredning, møbler, tekst og andre ting - som ikke nødvendigvis vil inngå i den ferdige leveransen, og er ikke å anse som en del av avtalevilkårene for kjøpet. Slike avvik kan ikke påberopes som mangel fra kjøpers side.
Inntegnet utstyr/inventar som er stiplet medfølger ikke. Generelle beskrivelser av prosjektet i salgs-og markedsføringsmateriell vil ikke passe for alle enhetene. Kjøper oppfordres særskilt til å vurdere solforhold, utsikt og beliggenhet i forhold til terreng og omkringliggende eksisterende og fremtidig bygningsmasse mv. før et eventuelt bud inngis. Det kan være avvik mellom de planskisser, planløsninger, og tegninger som er presentert i prosjektet, og den endelige leveransen. Dersom det er avvik mellom tegninger i prospekt/Internettside og leveransebeskrivelsen i den endelige kontrakt med kjøper, vil leveransebeskrivelsen ha forrang og omfanget av leveransen er begrenset til denne. Vindusplassering i den enkelte bolig kan avvike noe fra de generelle planer, som følge av bl. a. den arkitektoniske utformingen av byggene.
Byggebeskrivelsen/romskjema i brosjyre fra utbygger skal angi hvilken teknisk standard prosjektet leveres med, samt foreløpig angi hva komplett leveranse etter kjøpekontrakten innebærer. Dersom det ikke er tatt inn spesifiserte bestemmelser i kjøpekontrakten, gjelder følgende krav: De tekniske løsninger skal tilfredsstille plan- og bygningslovgivningen, herunder kravene i teknisk forskrift. Hvitevarer medfølger ikke i leveransen selv om disse er illustrert på kjøkkentegninger.
Kjøper aksepterer at Privatmegleren kan offentliggjøre kjøpesum i egen markedsføring
Adgang til utleie
Det er èn bruksenhet som selges. Ingen restriksjoner utover generelt krav om radonmåling.
Konsesjon / Odel
Eiendommen er konsesjonsfri.
Det foreligger ikke odel.
Sikkerhetsstillelse
Alle eiendomsmeglingsforetak har lovpålagt forsikring av klientmidler begrenset oppad til kr 45 mill. Enkeltsaker er forsikret inntil kr 15 mill. Dersom kjøpers låneinstitusjon krever tilleggsforsikring ved omsetning over 15 millioner, må kjøper selv eller dennes låneinstitusjon dekke utgiftene forbundet med dette.
Planlagt overtagelse
360 dager fra signert kontrakt, levert finansieringsbevis og godkjent IG. Det er et forbehold at forbrukeren har stilt sikkerhet i form av finansieringsbekreftelse innen 14 dager etter signert kontrakt.
Ferdigstillelsesfristen forlenges dessuten med 21 kalenderdager dersom arbeidene berøres av fellesferien. Berøres arbeidene av juleferien forlengelsen den med 7 kalenderdager. Det samme gjelder om den berøres av påskeferien. Forlengelsen gjelder selv om det eventuelt utføres arbeid i en ferie.
Selgeren kan kreve overtakelse inntil fire måneder før den avtalte fristen til å ha boligen klar til overtakelse. Selgeren skal skriftlig varsle om dette minimum to måneder før det nye overtakelsestidspunktet. Det eksakte overtakelsestidspunktet skal gis med minst 14 kalenderdagers skriftlige varsel. Det beregnes dagmulkt fra det nye overtakelsestidspunktet, jfr. Bustadoppføringslova §18.
Overtagelse kan tidligst skje når det foreligger ferdigattest/midlertidig brukstillatelse. Ved overtakelse skal det dokumenteres at alle innbetalinger, inkludert eventuelle tilleggs leveranser, er betalt før utlevering av nøkkel til boligen finner sted. Kjøper kan ikke nekte å overta selv om seksjonering/fradeling/hjemmelsovergang ikke er gjennomført. Det gjøres oppmerksom på at det etter oppgjørs- og overtakelsesdato fortsatt vil foregå byggearbeider på eiendommen, herunder arbeid med ferdigstillelse av de øvrige boligene, fellesarealer, tekniske installasjoner og utomhus arbeider.
Kjøper kan ikke nekte å overta boligen mot midlertidig brukstillatelse selv om det gjenstår arbeider som nevnt foran eller arbeid gjenstår på fellesområdene. Det samme gjelder dersom tinglysing av hjemmelsovergang ikke kan gjennomføres på overtakelsesdagen. Ved overtakelse skal det dokumenteres at alle innbetalinger, inkludert eventuelle tilleggs leveranser, er betalt før utlevering av nøkkel finner sted. Oppgjøret vil bli stående på meglers klientkonto såfremt det ikke er stilt §47 garanti. De siste 10% av kjøpesummen skal uansett stå på meglers klientkonto inntil hjemmelen er overført. Der kjøper ikke skal utføre egeninnsats kan overtakelse tidligst skje når ferdigattest/midlertidig brukstillatelse foreligger.
Ved overtakelse skal det dokumenteres at alle innbetalinger, inkludert eventuelle tilleggs leveranser, er betalt før utlevering av nøkkel til leilighet finner sted. Før overtakelse vil det bli gjennomført befaring der boligen blir gjennomgått/befart samtidig som boligens driftsinstruks/FDV-mappe blir utlevert/gjennomgått. Påpekte og aksepterte /omforente mangler skal utbedres innen rimelig tid.
Boligen skal overleveres i ryddet stand og boligen skal være byggerengjort. Kunde er selv ansvarlig for utvask av boligen etter overtakelse.
Kjøper bør planlegge eventuelt salg av egen bolig med god margin i forhold til stipulert overtakelse, da det kan oppstå forsinkelser i byggeprosessen. Boligen kan også bli ferdigstilt før oppgitt ferdigstillelse dato.
Tilvalg
Kjøperen kan ikke kreve å få utført endringer eller tilleggsarbeider:
a) som vil endre kontraktsummen med 15% eller mer
b) som ikke står i sammenheng med selgers ytelse, eller
c) som vil medføre ulemper for selger som ikke står i forhold til kjøpers interesse i å kreve endringen eller tilleggsarbeidet.
Selgeren skal skriftlig klargjøre for kjøperen de kontraktsmessige og tidsmessige konsekvensene av de endringene eller tilleggsarbeidene kjøperen krever.
Selgeren kan kreve at kjøper betaler forskudd for endringer og tilleggsarbeider såfremt garanti i henhold til bustadoppføringslova § 47 er stilt. Alternativt kan selgeren kreve at kjøperen stiller sikkerhet for selgerens krav på tilleggsvederlag. Ved tilleggs kjøp fra Jærbygg Prosjekt AS på mer enn kr 100.000,- skal det fremlegges finansieringsbevis på beløpet innen 14 dager.
Kundetilvalg skal være gjennomførte og godkjente innen 40 dager frå signert kontrakt. Ved for sen godkjenning kan selger/entreprenør kreve fristforlengelse på overtakelsesdatoen.
Dersom det ikke er stilt §47 garanti skal tilleggsvederlaget betales ved overtakelsen.
Selgers forbehold
Selger tar forbehold om følgende:
- At det er gitt igangsettelsestillatelse fra Time kommune innen 31.12.2024.
- Det er et forbehold at forbrukeren har stilt sikkerhet i form av finansieringsbekreftelse innen 14 dager etter signert kontrakt.
Eventuell transport av avtalen
Videresalg av avtaledokumentet forutsetter samtykke fra selger. Selger betinger seg et transportgebyr på kr. 50 000,-. I tillegg kommer kostnader ved bruk av megler.
Solgt ihht bustadoppføringsloven
Boligene selges i henhold til Bustadoppføringslova som regulerer kjøpers (forbrukers) rettigheter og plikter ved avtale om oppføring av bolig og kjøp av fast eiendom der bygningen ikke er fullført når avtalen inngås. Ved salg til aksjeselskap legges Avhendingslovens bestemmelser til grunn. For øvrig gjelder Lov om eierseksjoner for eierseksjonssameiet og driften av dette.
FORSINKET LEVERING
Kjøper er kjent med og aksepterer at forsinkelser som skyldes force majure, streik, ekstreme klimatiske forhold, brann, vannskade, innbrudd o.l girselger rett til å forlenge fristen for overtakelse.
Selger presiserer at endelig innflyttingsdato kan endres som følge av manglende arbeidskraft, forsinket levering av nødvendige leveranser til prosjektet og lignende som følge av krig, sykdomsfravær ved f.eks. større virusutbrudd. Selger vil ha rett til tilleggsfrister etter reglene i Bustadoppføringslova. Eventuelle forsinkelser knyttet til dette gir ikke rett til dagbøter eller erstatning.
AVBESTILLING
Kjøpers adgang til å avbestille følger av bustadoppføringslova kap. VI.
Dersom forbrukeren avbestiller, fastsetter selgeren krav på vederlag og erstatning i samsvar med Bustadoppføringslova §§ 52 og 53. Det vil si at kjøper bærer all risiko ved avbestilling.
Bestilte endrings- og tilleggsarbeider betales i slike tilfeller i sin helhet av kjøper. Kontakt megler for nærmere informasjon dersom avbestilling vurderes.
AVTALEBETINGELSER
Avtaleforholdet er underlagt bestemmelsene i lov av 13. juni 1997 nr. 43 om avtaler med forbruker om oppføring av ny bustad (Bustadoppføringslova). Bustadoppføringslova bruker betegnelsen entreprenøren og forbrukeren, mens her brukes uttrykkene selger og kjøper om de samme betegnelsene.
Bustadsoppføringslova sikrer kjøper rettigheter som ikke kan innskrenkes i kjøpekontrakten, jfr. Bustadoppføringslova § 3.
Prosjektet retter seg mot kjøper som ønsker å erverve bolig til eget bruk. Selger forbeholder seg retten til å forkaste eller anta ethvert kjøpstilbud uten å måtte begrunne dette. For øvrig kommer gjeldende lovgivning til enhver tid til anvendelse.
Bustadsoppføringslova kommer ikke til anvendelse der kjøper anses som profesjonell/investor, eller når boligene er ferdigstilt. I slike tilfeller vil handelen i hovedsak reguleres av lov om avhending av fasteiendom av 3.juli 1992 nr. 93. Selger kan likevel velge å selge etter Bustadoppføringslova.
Kjøper er innforstått med at forpliktende finansieringsbevis for hele kjøpesummen skal forelegges megler når avtale om kjøp inngås iht. Bustadoppføringslovas § 46 2.ledd, og at disse opplysningene kan bli videreformidlet til utbyggers byggelånsbank.
Handelen er juridisk bindende for begge parter ved aksept. Dersom kjøper ikke overholder sin forpliktelse med tilfredsstillende finansieringsbevis, er kjøper allikevel bundet og selger vil kunne påberope avtalen som vesentlig misligholdt og heve avtalen.
Kjøper samtykker til at omkostninger knyttet til heving og dekningssalg i så fall dekkes av kjøper.
Nabo kan utføre utvendig vedlikehold av egen bolig ved midlertidig å plassere stige på denne eiendommen.
Det forutsettes at skjøtet tinglyses på ny eier. Hvis kjøper ikke ønsker en hjemmelsoverføring av eiendommen til seg, må det tas forbehold om dette i kjøpstilbudet.
Interessenter og kjøper godtar at selger og megler bruker elektronisk kommunikasjon i salgsprosessen.
Garantier
Det stilles garantier i henhold til Bustadoppføringslovas bestemmelser. Garanti etter § 12 vil bli stilt i forbindelse med avtaleinngåelse. Garantien skal være pålydende 3% av kjøpesummen i byggetiden og 5% i 5 år etter overlevering av boligene til kjøper. Garanti etter § 47 forutsettes stilt om selger ønsker utbetalt forskudd/delinnbetaling/sluttoppgjør før hjemmelsovergang. Eventuelle påkrevde endringer av garantier ved eventuelle videresalg/transporter utføres ikke og bekostes ikke av selger.
Forsikring
Frem til overtagelse vil eiendommen være forsikret av selger. Etter overtagelse vil eiendommen forsikres gjennom sameiets fellesforsikring. Kjøper må selv besørge innboforsikring og forsikring av eventuelle særskilte påkostninger.
Budgiving
Boligene selges til fastpris.
Alle bud/kjøpetilbud på eiendommen skal være skriftlig og sendes meglerforetaket pr. fax, mail, sms eller via vår "gi bud"-knapp på våre nettsider. Knappen finner du også på Privatmeglerens hjemmeside for prosjektet, se på den enkelte bolig.
Bud/kjøpetilbud må ikke ha kortere akseptfrist enn til kl. 12.00 første virkedag etter siste annonserte visning. Lørdag regnes ikke som virkedag. Bud/kjøpetilbud med kortere frist enn dette kan ikke formidles av megler. Nærmere info om budgiving finner du på egen side sammen med kjøpetilbud/budskjema.
Som budgiver hos Privatmegleren kan du kreve budjournal fremlagt så snart handel er gjennomført.
Innhold i budjournal er lovregulert, og innebærer at budgivere må akseptere at opplysninger om budet kan bli fremlagt for selger, kjøper og øvrige budgivere. Budgiver som ikke blir kjøper, kan kreve kopi av anonymisert budjournal.
Lov om hvitvasking
Megler er underlagt lov om hvitvasking som innebærer plikt til å melde ifra til Økokrim om mistenkelige transaksjoner
Meglers vederlag og utlegg
Fastpris pr. enhet: kr 50 000 + mva.
Tilrettelegging kr. 20 000,-
Oppgjørshonorar kr 5 500,-
NB! Ved delinnbetalinger påløper kr 500 pr. delinnbetaling i oppgjørskostnad
I tillegg kommer tillegg/utlegg/markedsføring
Nyttige lenker
Nærområdet

Privatmegleren Jæren
Annonseinformasjon
| FINN-kode | 360059978 |
|---|---|
| Sist endret | 24. juli 2025 02:02 |
| Referanse | 310240199 |
Annonsene kan være mangelfulle i forhold til lovpålagt opplysningsplikt. Før bindende avtale inngås oppfordres interessenter til å innhente komplett informasjon fra meglerforetaket, selger eller utleier.
