Bildegalleri

Privatmegleren ved Morten Liavaag har gleden av å presentere denne spennende 2-roms leiligheten med hems og god takhøyde beliggende sentralt i Mjøndalen. Illustrasjon kan avvike fra leveranse.
Spennende 2-roms med hems og god takhøyde - Sentral beliggenhet - Innglasset balkong - Salg av kontraktposisjon
Nøkkelinfo
- Boligtype
- Leilighet
- Eieform
- Eier (Selveier)
- Soverom
- 1
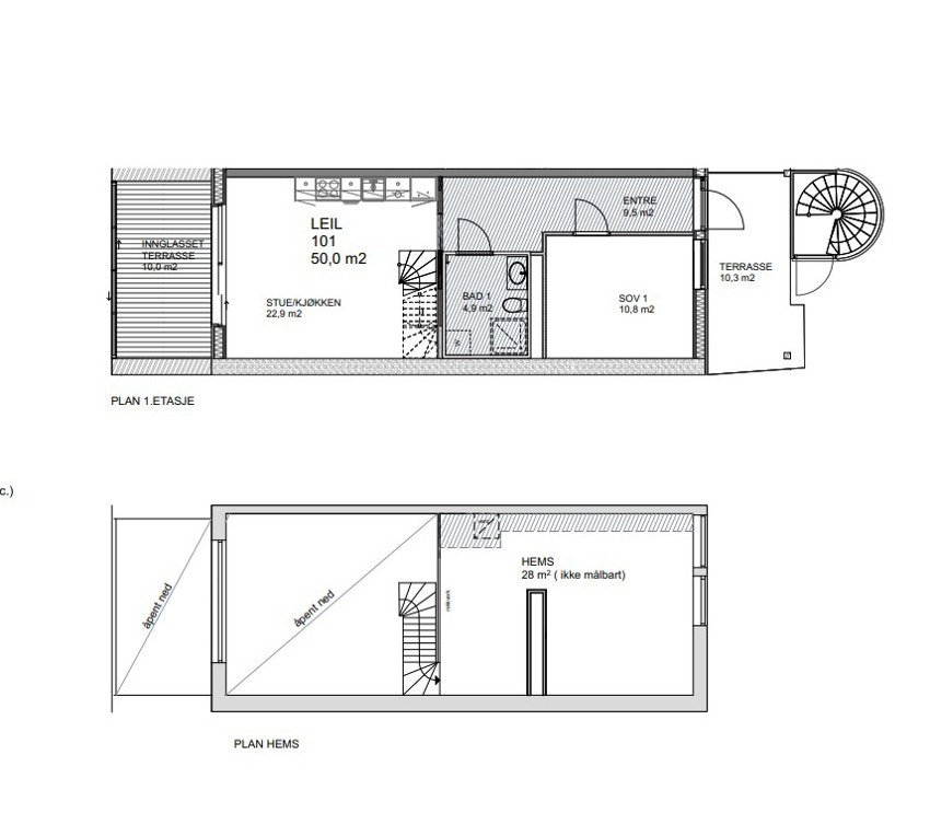
- Internt bruksareal
- 50 m² (BRA-i)
- Bruksareal
- 65 m²
- Eksternt bruksareal
- 5 m² (BRA-e)
- Innglasset balkong
- 10 m² (BRA-b)
- Balkong/Terrasse
- 10 m² (TBA)
- Etasje
- 1
- Rom
- 2
- Tomteareal
- 2 061 m² (eiet)
Visning
Om boligen
Akkurat nå har du muligheten til å sikre deg denne unike 2-roms selveierleiligheten med hems under oppføring. Leiligheten vil få en imponerende takhøyde på ca. 450 cm i stue og kjøkken, mens hemsen vil ha en takhøyde på ca. 190 cm. Dette gir rommet og leiligheten en luftig og eksklusiv følelse. Leiligheten har en spennende planløsning og sitt eget særpreg. Det vil være en innglasset privat balkong med store vinduer, som både slipper inn mye lys og sikrer et godt utsyn. Det medfølger en sportsbod på ca. 5 kvm.
Nedre Tverrgate 7 ligger i hjertet av Mjøndalen, et tettsted med sjarmerende småbysfølelse og et bredt tilbud av fasiliteter. Det er gangavstand til togstasjon og bussholdeplass.
Ferdigstillelse er planlagt til 2.kvartal 2025!
Salgsoppgaven beskriver vesentlig og lovpålagt informasjon om eiendommen
Se komplett salgsoppgaveNyttige lenker
Nærområdet

PrivatMegleren Drammen
Annonsene kan være mangelfulle i forhold til lovpålagt opplysningsplikt. Før bindende avtale inngås oppfordres interessenter til å innhente komplett informasjon fra meglerforetaket, selger eller utleier.











