Bildegalleri

Inaktiv
Mågerø
Innholdsrik enebolig over 2 plan i sjønære omgivelser - Rett til båtplass - Solrik tomt - Utleiemulighet - 4 soverom.
Prisantydning4 850 000 kr
Nøkkelinfo
- Boligtype
- Enebolig
- Eieform
- Eier (Selveier)
- Soverom
- 4
- Internt bruksareal
- 116 m² (BRA-i)
- Bruksareal
- 177 m²
- Eksternt bruksareal
- 61 m² (BRA-e)
- Balkong/Terrasse
- 47 m² (TBA)
- Etasje
- 2
- Byggeår
- 1946
- Energimerking
- F - Rød
- Rom
- 5
- Tomteareal
- 1 266 m² (eiet)
Fasiliteter
Balkong/Terrasse
Barnevennlig
Garasje/P-plass
Offentlig vann/kloakk
Utsikt
Bademulighet
Fiskemulighet
Turterreng
Om boligen
Velkommen til Mågerøveien 176 - en unik eiendom med stort potensial. Eiendommen er på hele 1266 kvm.
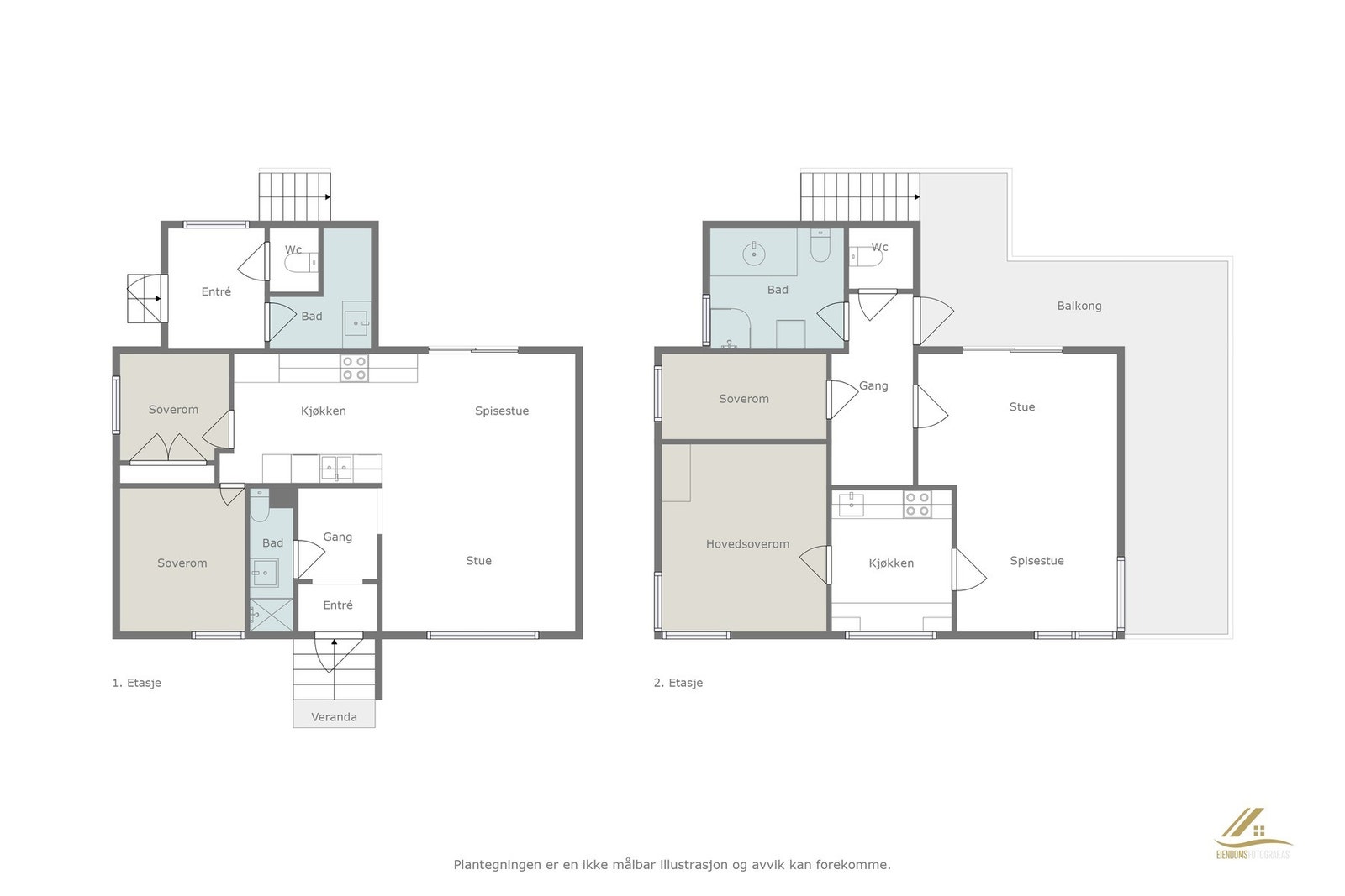
Eiendommen er en horisontaldelt tomannsbolig med en leilighet i hver etasje. Deler av 1. etasje har separat inngang til toalettrom, dusjrom og vaskerom. Bygningen har også en uinnredet kjeller.
1.etasje: Entré, gang, stue/kjøkken, bad og 2 soverom.
2.etasje: Gang, bad, toalettrom, 2 soverom, kjøkken og stue med utgang til solrik balkong med utsikt.
Dette er en eiendom med mange muligheter, solrikt og sjønært, denne må sees!
Eiendommen er en horisontaldelt tomannsbolig med en leilighet i hver etasje. Deler av 1. etasje har separat inngang til toalettrom, dusjrom og vaskerom. Bygningen har også en uinnredet kjeller.
1.etasje: Entré, gang, stue/kjøkken, bad og 2 soverom.
2.etasje: Gang, bad, toalettrom, 2 soverom, kjøkken og stue med utgang til solrik balkong med utsikt.
Dette er en eiendom med mange muligheter, solrikt og sjønært, denne må sees!
NB: Knappen for å vise hele beskrivelsen har kun en visuell effekt.
NB: Knappen for å vise hele beskrivelsen har kun en visuell effekt.
Salgsoppgaven beskriver vesentlig og lovpålagt informasjon om eiendommen
Se komplett salgsoppgaveNyttige lenker
Nærområdet
EiendomsMegler 1 Tønsberg
En del av Sparebank 1 Sør-Norge
Annonseinformasjon
| FINN-kode | 359846794 |
|---|---|
| Sist endret | 06. apr. 2025 08:44 |
| Referanse | 7044250065 |
Annonsene kan være mangelfulle i forhold til lovpålagt opplysningsplikt. Før bindende avtale inngås oppfordres interessenter til å innhente komplett informasjon fra meglerforetaket, selger eller utleier.








































