Bildegalleri

Velkommen til Fagertoppen 48 presentert av Øyvind Dypvik v/ Garanti Eiendomsmegling
Lekker 5-roms fra 2023. Carport og 3 balkonger med fantastisk utsikt. 20 min kjøretur fra Tromsø!
Nøkkelinfo
- Boligtype
- Leilighet
- Eieform
- Eier (Selveier)
- Soverom
- 4
- Internt bruksareal
- 122 m² (BRA-i)
- Bruksareal
- 132 m²
- Eksternt bruksareal
- 10 m² (BRA-e)
- Balkong/Terrasse
- 56 m² (TBA)
- Byggeår
- 2023
- Rom
- 5
- Tomteareal
- 3 589 m² (eiet)
Fasiliteter
Om boligen
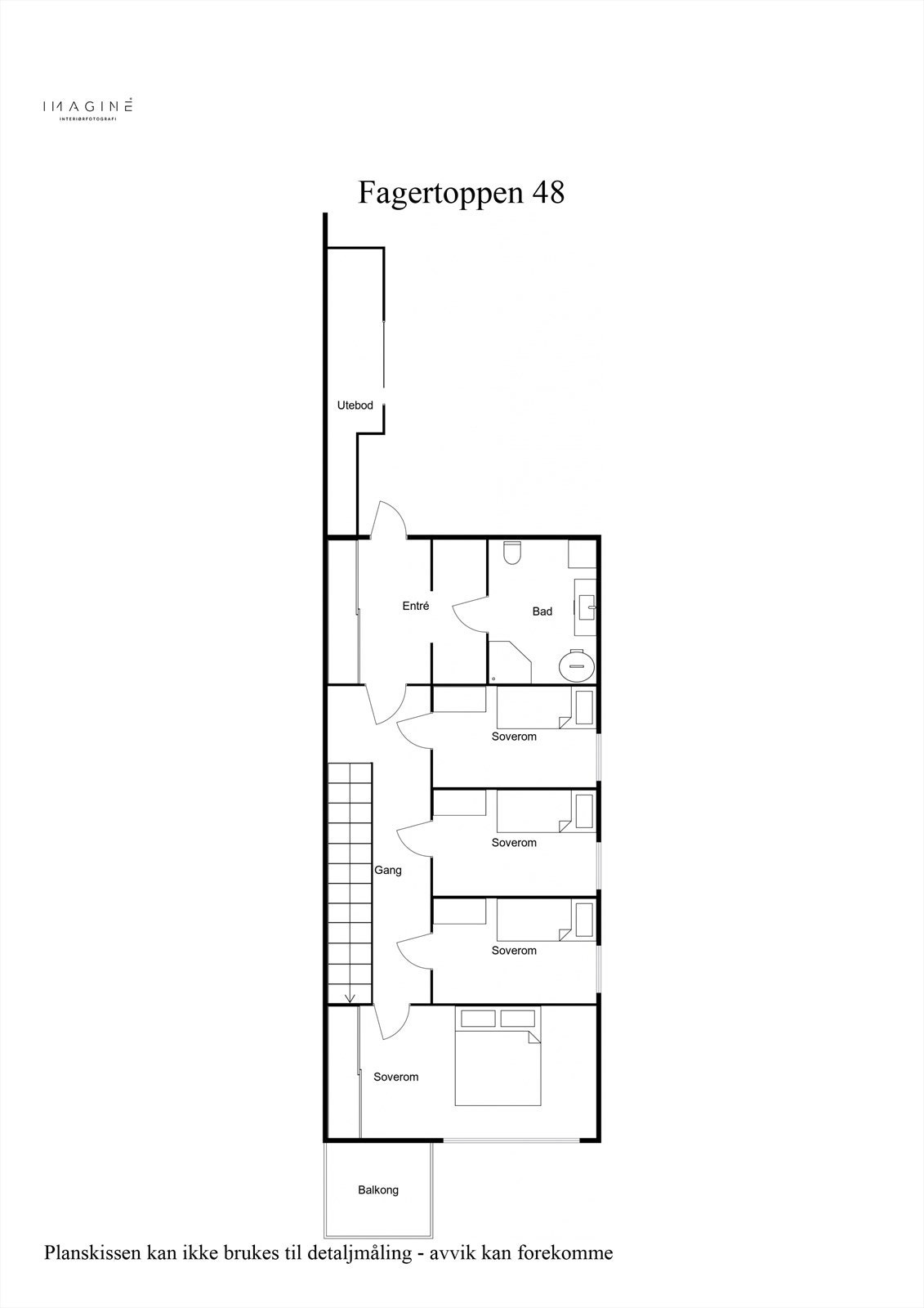
Boligen har en god og romsligplanløsning, som strekker seg over to etasjer. Første etasje består av entré med tilknyttet vaskerom, i tillegg til 4 soverom. I 2. etasje møter du ei romslig stue og kjøkken med god takhøyde og store vindusflater, som bidrar til god romfølelse og rikelig med naturlig lysinnslipp.
Boligen ble oppført i 2023, med høy standard og gode tekniske kvaliteter.
Fra stua er det utgang til en vestvendt balkong med fantastisk utsikt og optimale solforhold, i tillegg til en romslig sørvendt balkong.
Fagertoppen ligger tilbaketrukket fra vei og har gangavstand til barnehage, barne- og ungdomsskole. For de minste er det en flott lekeplass sentralt i feltet. Perfekt for barnefamilier!
Salgsoppgaven beskriver vesentlig og lovpålagt informasjon om eiendommen
Se komplett salgsoppgaveNyttige lenker
Nærområdet
GARANTI Eiendomsmegling Tromsø
Prisstatistikk
Fagertoppen 48
på annonsen
prisantydning per kvadratmeter
Prisfordeling
Pris per m² ligger 11 902 kr under snittet for leiligheter i Tromsdalen/Tomasjord/Kroken/Ramfjord.
Grafen viser antall leiligheter solgt i Tromsdalen/Tomasjord/Kroken/Ramfjord siste året fordelt på pris per m² - totalt 335 leiligheter
Antall boliger
Kvadratmeterpris tilsvarer prisantydning pluss fellesgjeld per kvadratmeter (p-rom eller BRA-i). Prisene i grafen er avrundet til nærmeste 1000 kr.
Annonseinformasjon
| FINN-kode | 359402747 |
|---|---|
| Sist endret | 13. okt. 2025 11:03 |
| Referanse | GAR51.24151 |
Annonsene kan være mangelfulle i forhold til lovpålagt opplysningsplikt. Før bindende avtale inngås oppfordres interessenter til å innhente komplett informasjon fra meglerforetaket, selger eller utleier.
















































