Bildegalleri

En unik enebolig med et gjennomgående arkitektonisk preg. Dette er en bolig av de sjeldne med tanke på interiør, byggemåte, historie og materialvalg.
Unik enebolig i blindvei. Kostbare og tilpassede materialer. Vannbåren varme. Utleiedel. Garasje + oppstillingsplasser.
Nøkkelinfo
- Boligtype
- Enebolig
- Eieform
- Eier (Selveier)
- Soverom
- 3
- Internt bruksareal
- 212 m² (BRA-i)
- Bruksareal
- 212 m²
- Balkong/Terrasse
- 92 m² (TBA)
- Byggeår
- 2017
- Energimerking
- D - Mørkegrønn
- Tomteareal
- 670 m² (eiet)
- Boligselgerforsikring
- Ja
Fasiliteter
Visning
Om boligen
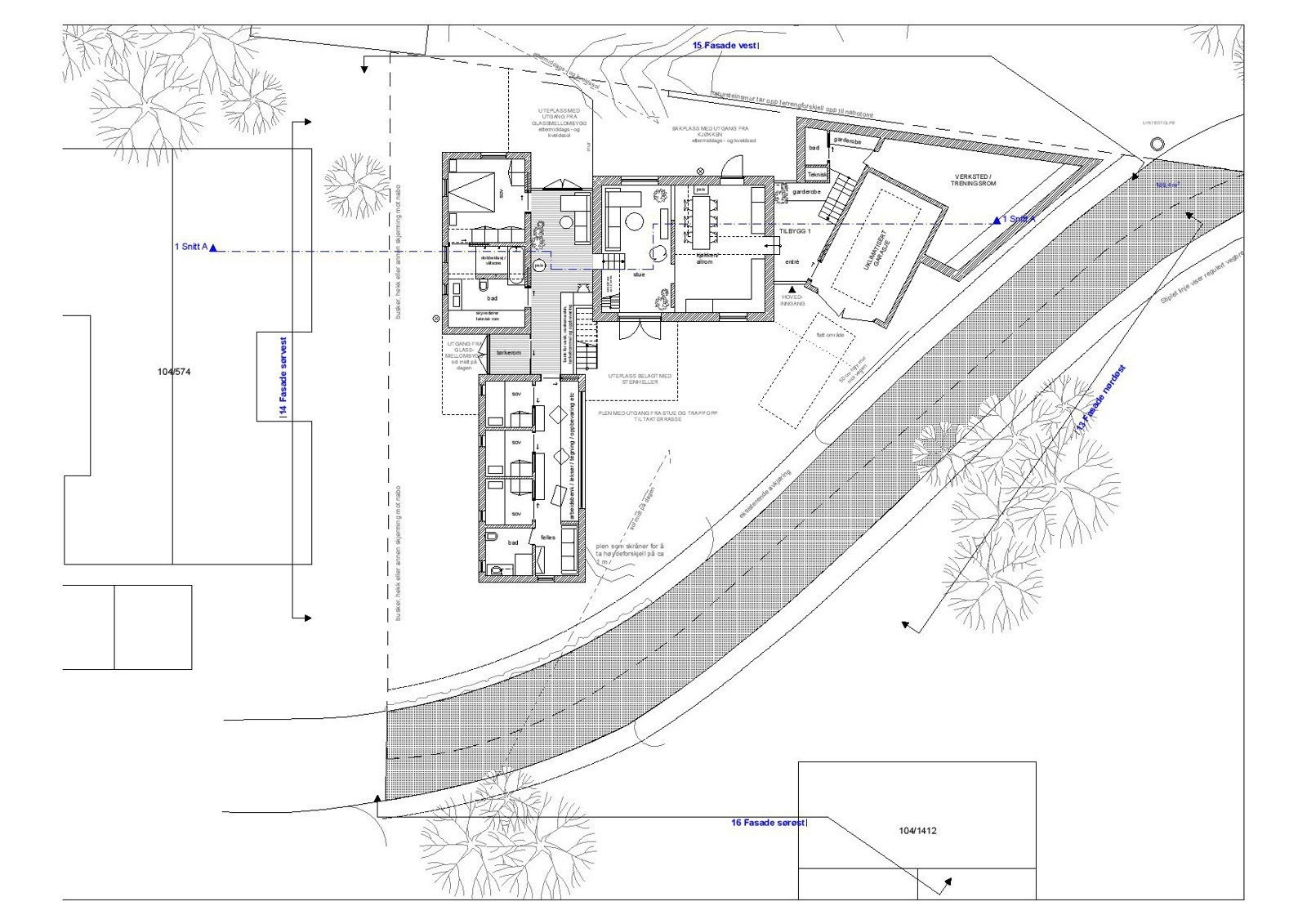
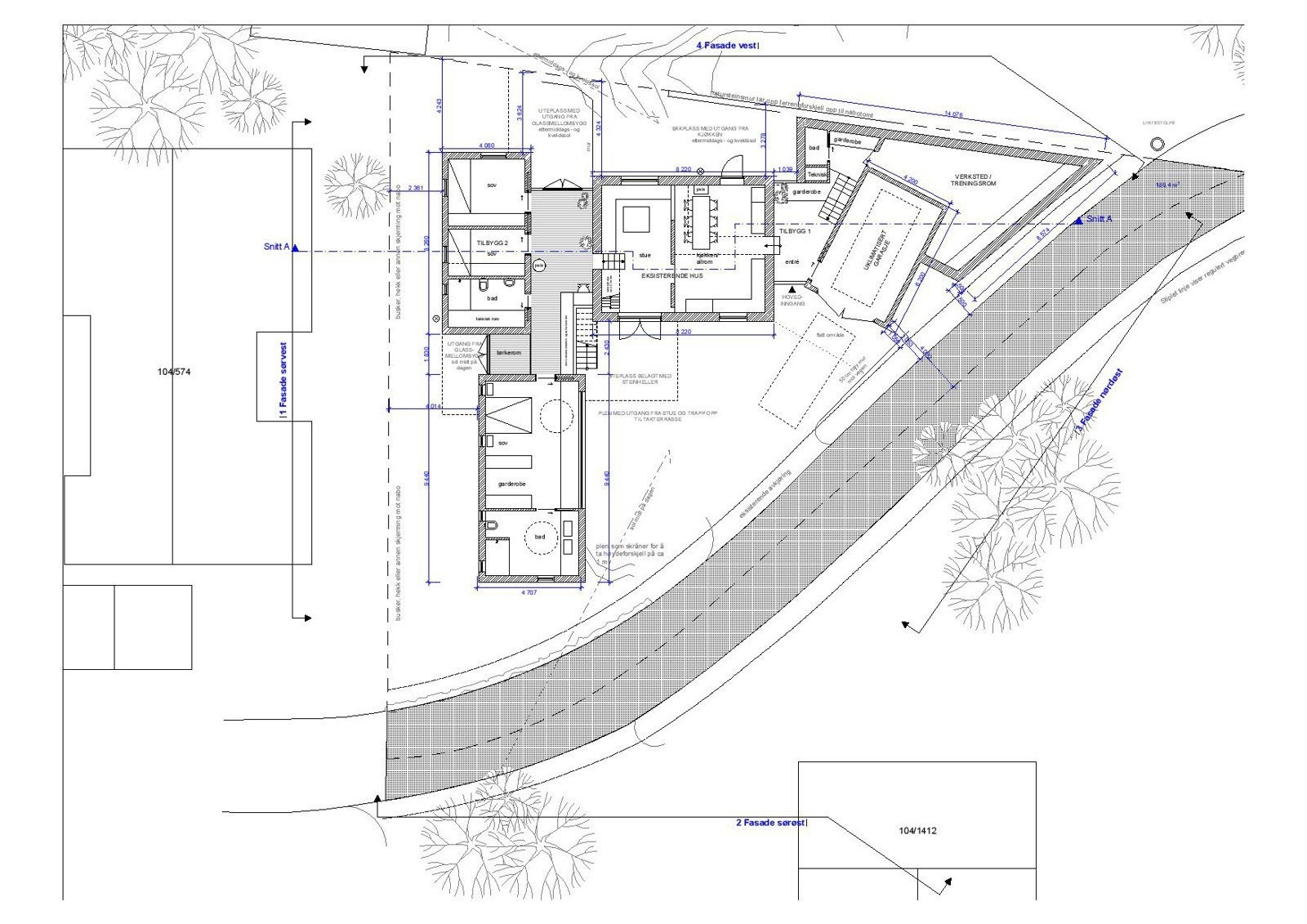
Unik enebolig med et gjennomgående arkitektonisk preg. Dette er en bolig av de sjeldne med tanke på interiør, byggemåte, historie og materialvalg. Boligen er koblet til smarthusløsning hvor man håndterer alt fra snø om vinteren til lys i huset. Det er etablert separat utleiedel som med enkelhet kan innlemmes i hoveddel. Huset ligger som en av de siste husene i blindgate.
- To store takterrasser samt flere ulike hagesoner med bl.a. utekjøkken.
- Gunstig oppvarming med vannbåren varme fra egen brønn.
- Utleiedel med eget adskilt inngangsparti, pt. utleid for 11.900,- pr. mnd.
- Godt med parkeringsmuligheter. 2 plasser på sørside, samt 3 plasser ved hovedinngang.
Boligen fikk egen episode i Arkitektens hjem på NRK, hvor man kan se hva som ligger bak husets historie og byggeprosess: https://bit.ly/3qxxecs
Salgsoppgaven beskriver vesentlig og lovpålagt informasjon om eiendommen
Se komplett salgsoppgaveNyttige lenker
Nærområdet

PrivatMegleren Trondheim
Annonseinformasjon
| FINN-kode | 358860832 |
|---|---|
| Sist endret | 05. mars 2026 03:14 |
| Referanse | 114240169 |
Annonsene kan være mangelfulle i forhold til lovpålagt opplysningsplikt. Før bindende avtale inngås oppfordres interessenter til å innhente komplett informasjon fra meglerforetaket, selger eller utleier.

































































