Bildegalleri

Velkomen til Naust i Mælandsvågen og dette flotte naustet som no er for sal - Presentert av Oliver Farji i Aktiv Eiendomsmegling
Inaktiv
Naust med kai og båtplass i Mælandsvågen frå 2015 | Godkjent bad og sløyebenk | Fast parkering og elbillader
Prisantydning1 290 000 kr
- Omkostninger
- 33 490 kr
- Totalpris
- 1 323 490 kr
- Kommunale avg.
- 9 192 kr per år
- Eiendomsskatt
- 2 705 kr per år
Nøkkelinfo
- Beliggenhet
- Ved sjøen
- Boligtype
- Andre
- Eieform
- Eier (Selveier)
- Bruksareal
- 37 m²
- Tomteareal
- 52 m² (eiet)
- Byggeår
- 2015
- Soverom
- 0
- Rom
- 2
- Overtakelse
- Overtakelse etter nærmere avtale med selger. Dersom annet ikke avtales, sendes skjøte/hjemmelsdokument for tinglysing i etterkant av overtakelse.
Fasiliteter
Balkong/Terrasse
Barnevennlig
Bilvei frem
Båtplass
Garasje/P-plass
Bademulighet
Offentlig vann/kloakk
Visning
Ta kontakt for å avtale visning.Husk å lese komplett salgsoppgave før visning. Bestill komplett, utskriftsvennlig salgsoppgave.
VisningspåmeldingOm boligen
Velkomen til Møllevågen og dette flotte naustet frå 2015.
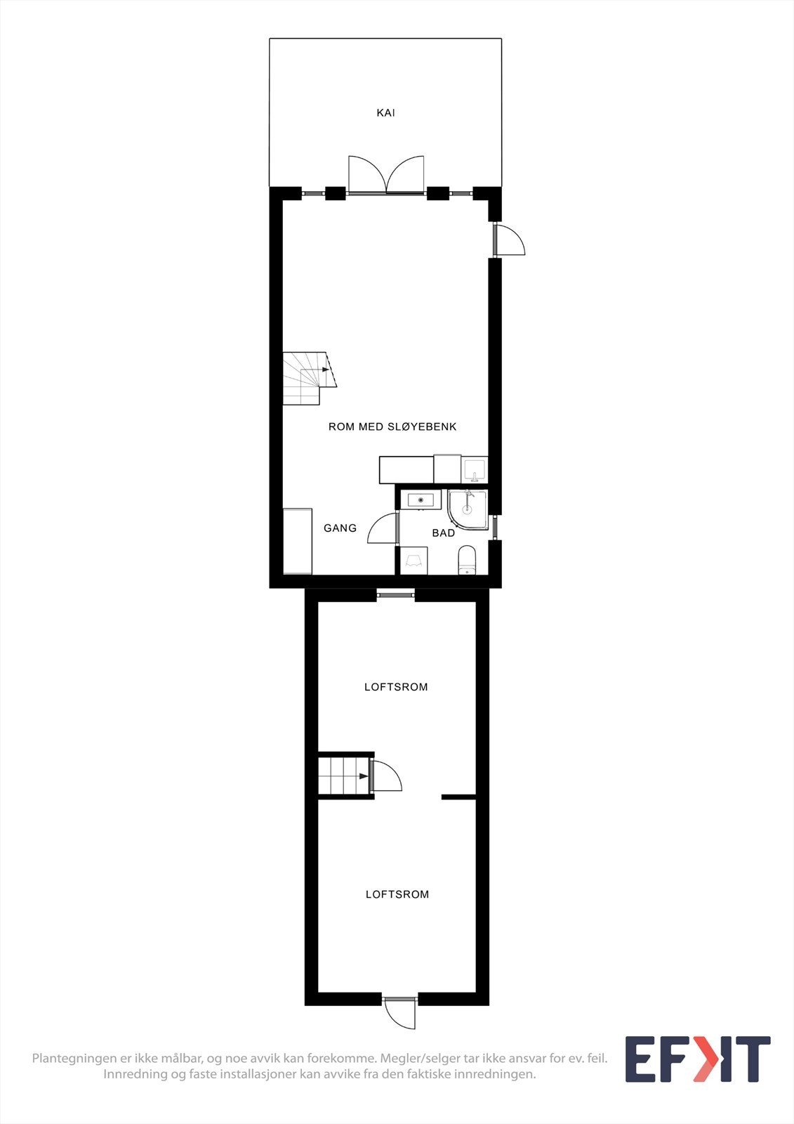
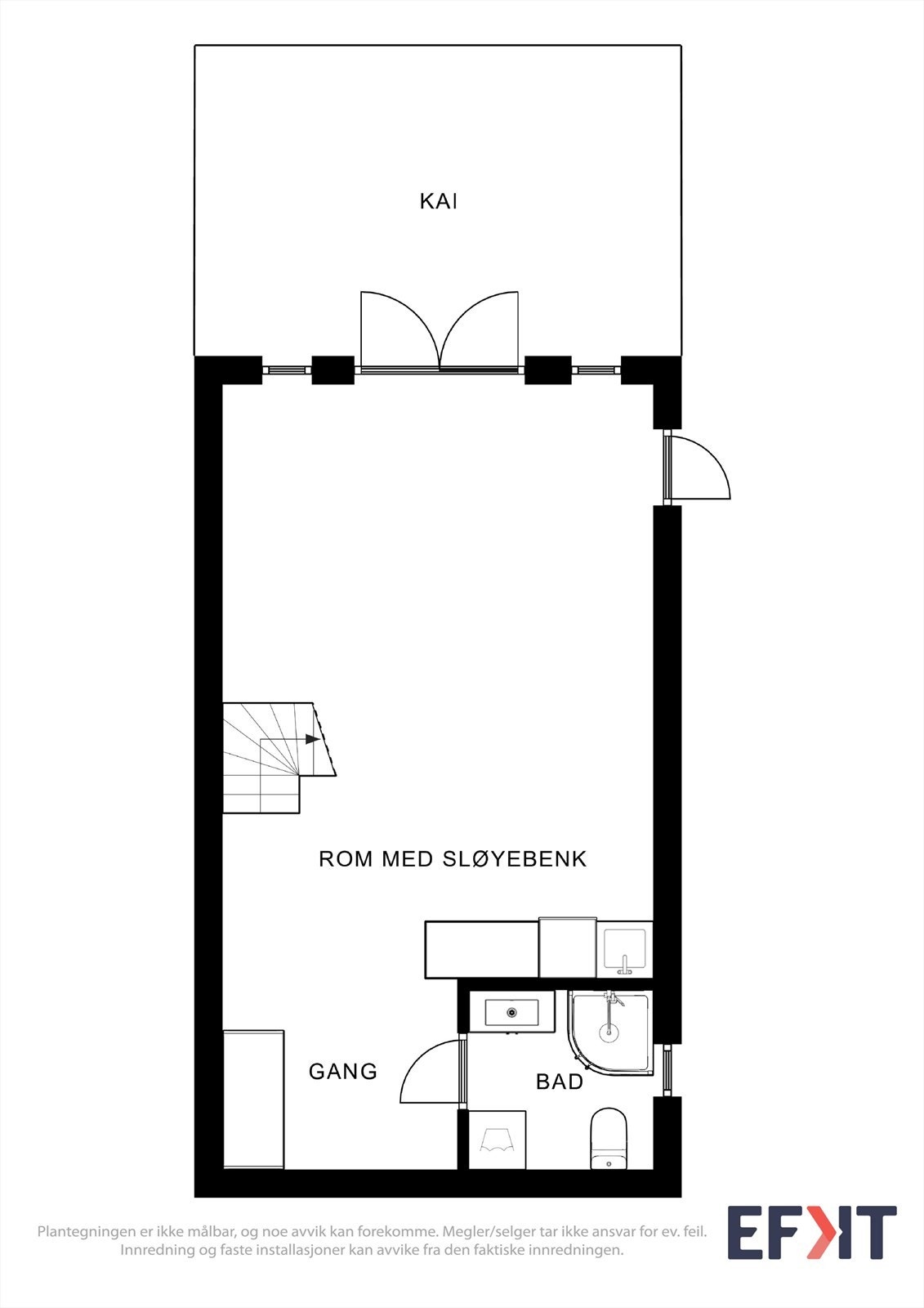
Naustet er inndelt i to etasjer og inneheld:
1.etg.: Bad og naustdel med sløyebenk
2. Stort loftrom med trapp opp
Det er trekai i framkant av naustet
VERDT Å MERKE SEG
- Naust med båtplass
- Bygd i 2015
- Godkjent bad
- Sløyebenk som tilfredstiller kommunale krav
- God plass til å fortøye båt i framkant av kaien
- Gode solforhald
- Trygg hamn
- Parkeringsplass i bakkant av naustet
- El-billader ved naustloftsinngang
Naustet er inndelt i to etasjer og inneheld:
1.etg.: Bad og naustdel med sløyebenk
2. Stort loftrom med trapp opp
Det er trekai i framkant av naustet
VERDT Å MERKE SEG
- Naust med båtplass
- Bygd i 2015
- Godkjent bad
- Sløyebenk som tilfredstiller kommunale krav
- God plass til å fortøye båt i framkant av kaien
- Gode solforhald
- Trygg hamn
- Parkeringsplass i bakkant av naustet
- El-billader ved naustloftsinngang
NB: Knappen for å vise hele beskrivelsen har kun en visuell effekt.
NB: Knappen for å vise hele beskrivelsen har kun en visuell effekt.
Salgsoppgaven beskriver vesentlig og lovpålagt informasjon om eiendommen
Se komplett salgsoppgaveNærområdet
Aktiv Sunnhordland
Annonseinformasjon
| FINN-kode | 358843182 |
|---|---|
| Sist endret | 15. apr. 2025 11:11 |
| Referanse | 1504240051 |
Annonsene kan være mangelfulle i forhold til lovpålagt opplysningsplikt. Før bindende avtale inngås oppfordres interessenter til å innhente komplett informasjon fra meglerforetaket, selger eller utleier.
































