Bildegalleri

Benjamin Ådna v/Nordvik har gleden av presentere denne lekre hageleiligheten rett ved Ilaparken sentralt på Alexander Kiellands plass
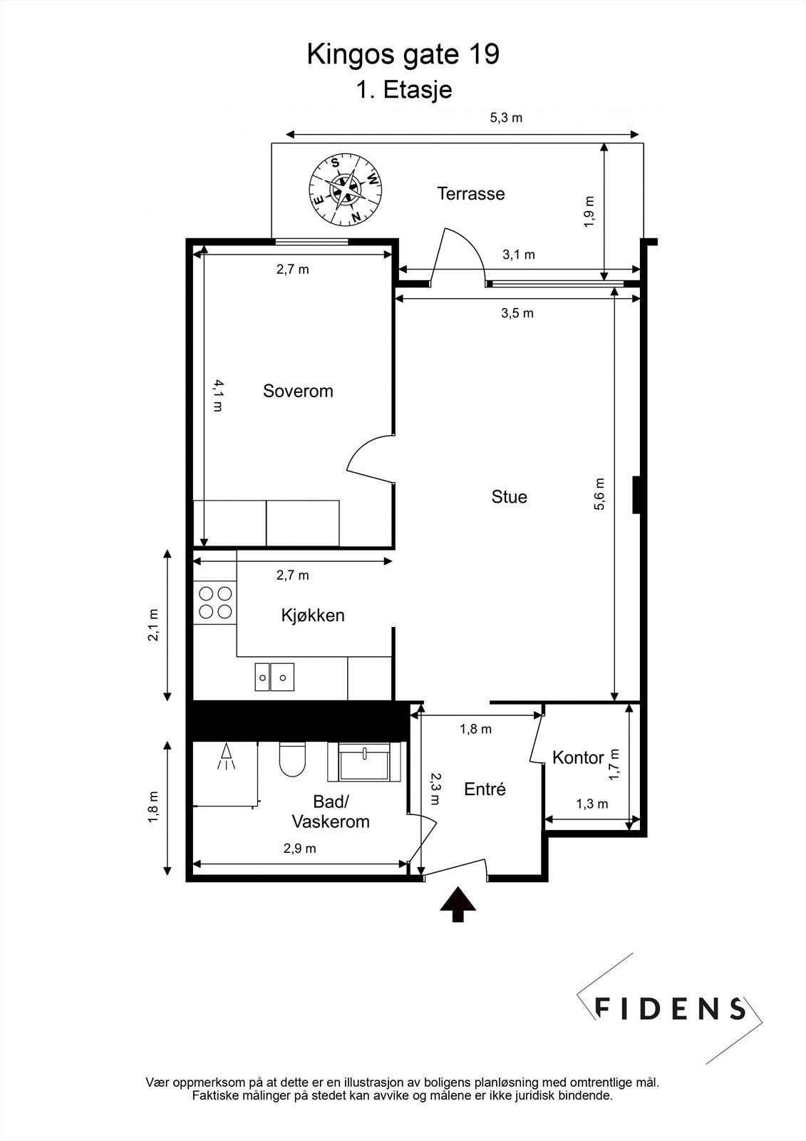
Lekker, usjenert 2-roms i moderne leilighetskompleks - Privat terrasse på 9m² - Heis - God takhøyde - Garasjeplass*
Nøkkelinfo
- Boligtype
- Leilighet
- Eieform
- Eier (Selveier)
- Soverom
- 1
- Internt bruksareal
- 52 m² (BRA-i)
- Bruksareal
- 57 m²
- Eksternt bruksareal
- 5 m² (BRA-e)
- Balkong/Terrasse
- 9 m² (TBA)
- Etasje
- 1
- Byggeår
- 2005
- Energimerking
- E - Mørkegrønn
- Rom
- 2
- Tomteareal
- 6 699 m² (eiet)
Fasiliteter
Om boligen
- Lys og moderne 2-roms - Ingen innsyn
- Privat sydvendt terrasse på 9m² med sol fra ca. 10:30 - 19 (sommer)
- Leiligheten ble modernisert i 2022/2024
- God takhøyde 2,71m og store vindusflater
- Lave felleskost. inkl. Fyring, V.v, TV og internett
- Opsjon på kjøp/leie av garasjeplass m/el-lader
- Innvendig bod/kontor + Kjellerbod på 5m
Salgsoppgaven beskriver vesentlig og lovpålagt informasjon om eiendommen
Se komplett salgsoppgaveNyttige lenker
Nærområdet
Nordvik Majorstuen
Prisstatistikk
Kingos gate 19
på annonsen
prisantydning per kvadratmeter
Prisfordeling
Pris per m² ligger 4 424 kr under snittet for leiligheter i Sagene - Torshov.
Grafen viser antall leiligheter solgt i Sagene - Torshov siste året fordelt på pris per m² - totalt 2 429 leiligheter
Antall boliger
Kvadratmeterpris tilsvarer prisantydning pluss fellesgjeld per kvadratmeter (p-rom eller BRA-i). Prisene i grafen er avrundet til nærmeste 1000 kr.
Annonseinformasjon
| FINN-kode | 358531333 |
|---|---|
| Sist endret | 07. okt. 2024 12:56 |
| Referanse | 8-0264/24 |
Annonsene kan være mangelfulle i forhold til lovpålagt opplysningsplikt. Før bindende avtale inngås oppfordres interessenter til å innhente komplett informasjon fra meglerforetaket, selger eller utleier.







































