Bildegalleri

Enebolig/tomannsbolig med garasje og stor tomt.

Solgt

Vivelstad, Lier - enebolig/​hel tomannsbolig med garasje samt stor, påkostet hage med mange muligheter.

Prisantydning6 590 000 kr
Totalpris
6 761 250 kr
Omkostninger
171 250 kr
Kommunale avg.
9 257 kr per år
Formuesverdi
1 620 725 kr

Nøkkelinfo

Boligtype
Enebolig
Eieform
Eier (Selveier)
Soverom
4
Internt bruksareal
192 m² (BRA-i)
Bruksareal
192 m²
Balkong/Terrasse
56 m² (TBA)
Byggeår
1900
Energimerking
G - Gul
Rom
7
Tomteareal
2 021 m² (eiet)

Les mer om bruksareal her

Fasiliteter

Balkong/Terrasse
Peis/Ildsted
Parkett
Barnevennlig
Rolig
Sentralt
Garasje/P-plass
Fiskemulighet
Turterreng
Offentlig vann/kloakk

Om boligen

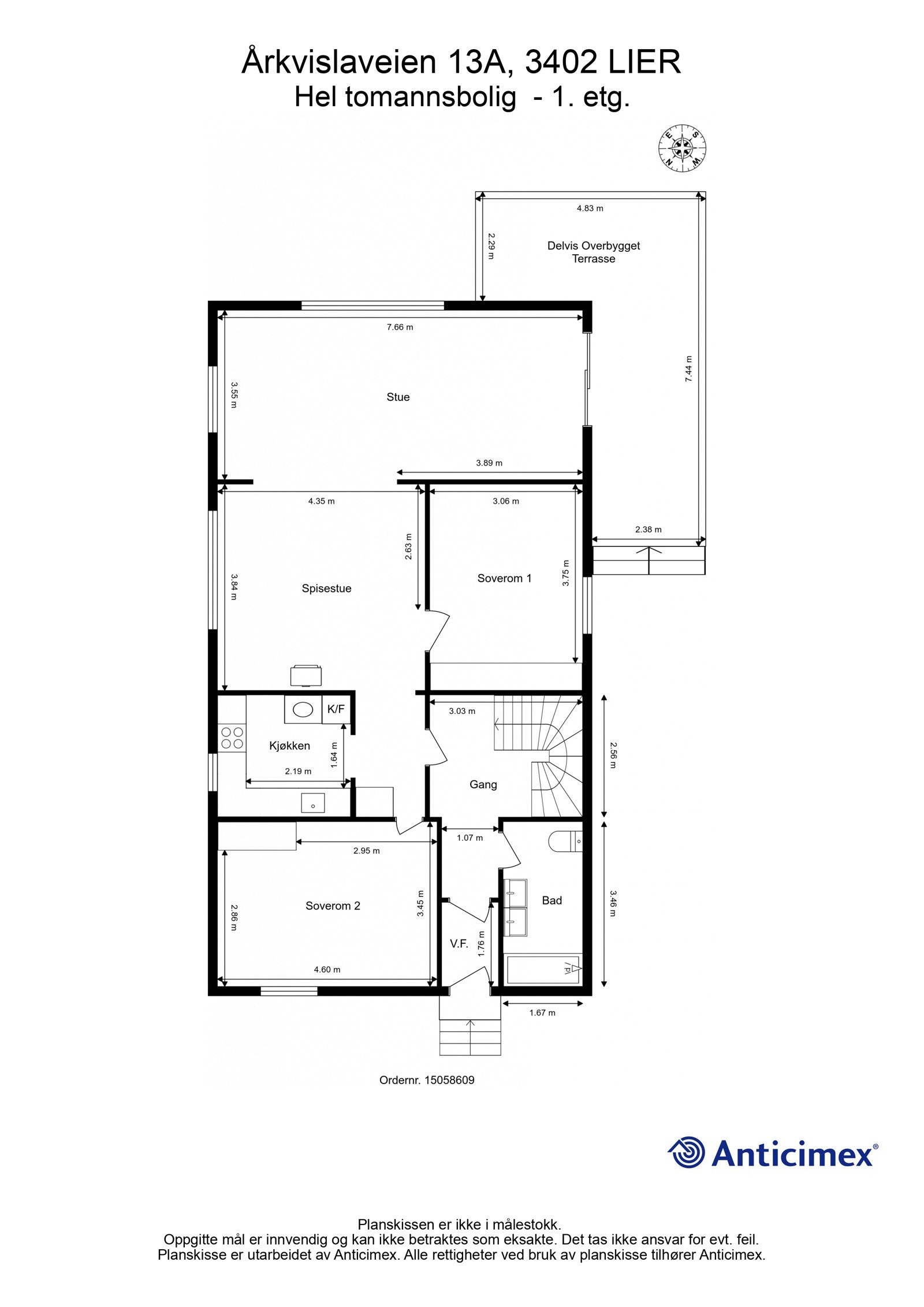
Enebolig/tidligere hel tomannsbolig (godkjent som tomannsbolig) med garasje og store uteområder. Tomten er på 2021 kvm. Boligen brukes som enebolig, men har stue, kjøkken, bad og to soverom i hver etasje.


Eiendommen har innvendig moderniseringsbehov. Dette er en fin familiebolig med en tomt med stort potensiale.


Eiendommen ligger i et rolig og barnevennlig område på Vivelstad i Lier. Det er en landlig, men sentral beliggenhet. Her er det kort vei både til Drammen og Lierbyen, samt kort vei til påkjøring til E18 ved Kjellstad og til det nye sykehuset i Drammen. Her er det også togstasjon, med gode forbindelser mot Oslo. Det er kort vei til Høvik skole (1.-10. trinn), videregående skole, svømmeanlegg og idrettsanlegg. Flotte turmuligheter i marka i umiddelbar nærhet.

Salgsoppgaven beskriver vesentlig og lovpålagt informasjon om eiendommen

Se komplett salgsoppgave

Nærområdet

Prisstatistikk

Årkvislaveien 13

2 800 klikk

på annonsen

34 322 kr

prisantydning per kvadratmeter

Prisfordeling

Pris per m² ligger 2 678 kr under snittet for eneboliger i Lier.

Grafen viser antall eneboliger solgt i Lier siste året fordelt på pris per m² - totalt 174 eneboliger

Antall boliger

051015
Histogram som viser prisfordeling for boliger i LierDenne boligen koster 34000 kr per kvadratmeter, mens gjennomsnittet er 37000 kr per kvadratmeter12 00026 00040 00054 00068 000Pris per m² i krDenne boligen34 000 krGjennomsnitt37 000 kr

Kvadratmeterpris tilsvarer prisantydning pluss fellesgjeld per kvadratmeter (p-rom eller BRA-i). Prisene i grafen er avrundet til nærmeste 1000 kr.

Eiendommer solgt i samme område

I løpet av de siste 12 månedene

Bilde av kartet på finn.no

Annonseinformasjon

FINN-kode358186489
Sist endret06. juli 2024 14:04
Referanse11240028

Rapporter annonse

Annonsene kan være mangelfulle i forhold til lovpålagt opplysningsplikt. Før bindende avtale inngås oppfordres interessenter til å innhente komplett informasjon fra meglerforetaket, selger eller utleier.