Bildegalleri

Velkommen til Stettevegen 148 presentert av Krogsveen v/Eiendomsmegler/Partner Marit Stuen Aursnes
Inaktiv
Straumen - Skodje
Unik fritidseiendom på egen odde| Strandlinje| Naust og uthus| Brygge | Eiertomt på ca 2,65 mål| Stort potensiale
Prisantydning5 200 000 kr
- Omkostninger
- 170 890 kr
- Totalpris
- 5 370 890 kr
- Kommunale avg.
- 2 535 kr per år
- Eiendomsskatt
- 1 050 kr per år
- Formuesverdi
- 335 975 kr
Nøkkelinfo
- Beliggenhet
- Ved sjøen
- Boligtype
- Hytte
- Eieform
- Eier (Selveier)
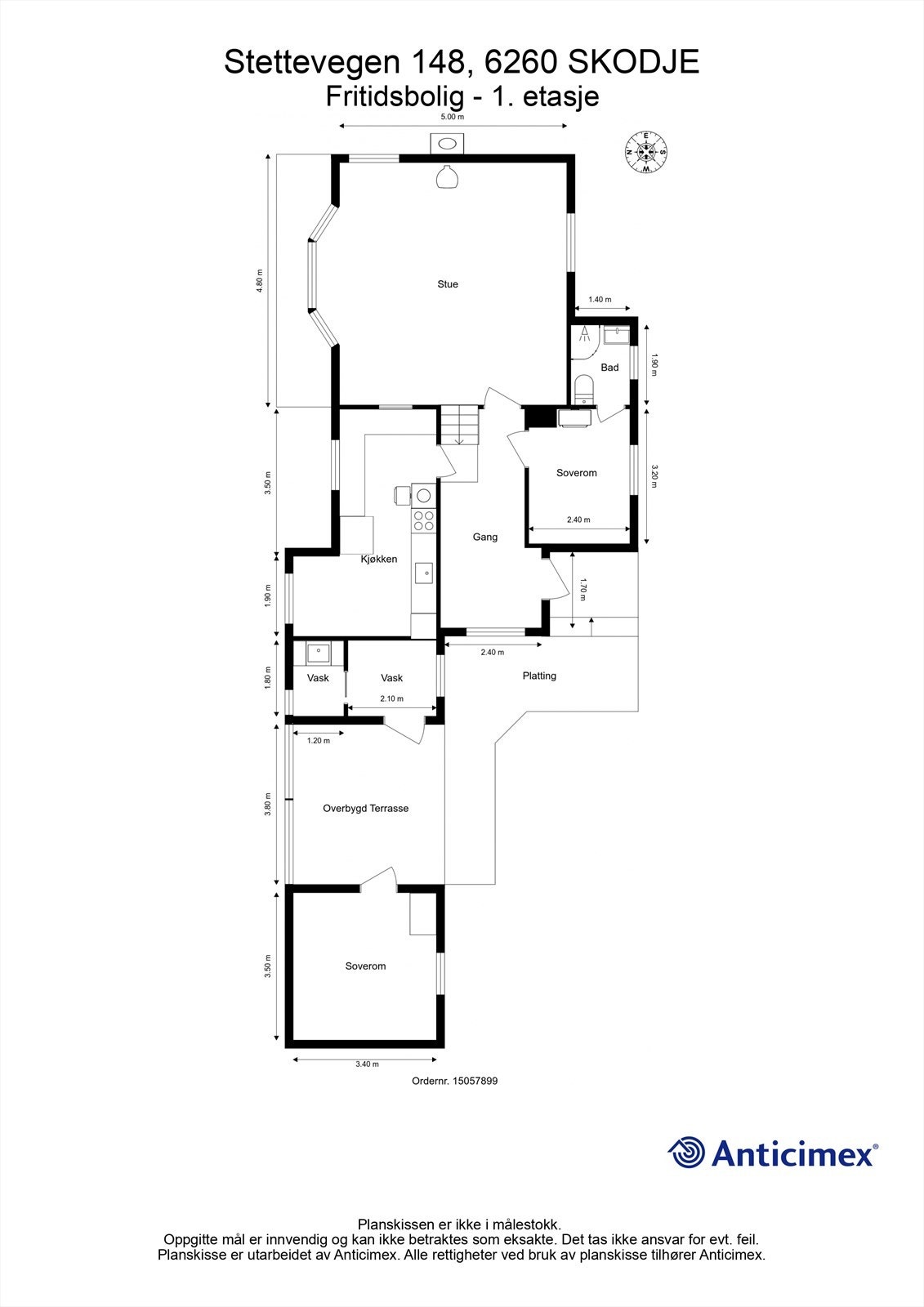
- Internt bruksareal
- 88 m² (BRA-i)
- Bruksareal
- 158 m²
- Eksternt bruksareal
- 70 m² (BRA-e)
- Balkong/Terrasse
- 73 m² (TBA)
- Tomteareal
- 2 651 m² (eiet)
- Byggeår
- 1957
- Soverom
- 5
- Energimerking
- G - Rød
- Overtakelse
- Etter nærmere avtale.
Fasiliteter
Innlagt vann
Balkong/Terrasse
Barnevennlig
Bilvei frem
Garasje/P-plass
Hage
Peis/Ildsted
Rolig
Utsikt
Bademulighet
Fiskemulighet
Innlagt strøm
Strandlinje
Turterreng
Visning
Ønsker du kun å bli holdt orientert, kan du fra eiendommens hjemmeside få varsel om solgtpris, eller kontakte megler.
For å delta på visning, ber vi om at du melder deg på. Da sikrer vi at du får nødvendig informasjon og at det er satt av tilstrekkelig med tid. Kontakt megler dersom annet tidspunkt ønskes. Husk å lese salgsoppgaven før visningen, så du stiller forberedt. NB. Visning utgår dersom det ikke er noen påmeldte.
Ønsker du kun å bli holdt orientert, kan du fra eiendommens hjemmeside få varsel om solgtpris, eller kontakte megler.
VisningspåmeldingOm boligen
Idyllisk beliggende fritidseiendom med stor eiendomstomt. Eiendommen består av flere bygninger, hytte, naust, uthus, utedo og flytebrygge. Beliggende på en odde ved Skodjebruene i Skodje
* Fritidsbolig som er over to plan og med 5 soverom
* Stor og pent opparbeidet eiendomstomt på 2.651 kvm med strandlinje
* Naust og egen flytebrygge
* Uthus med boder
* Ca. 2 km til handelssentrum på Digerneset
Velkommen til påmeldingsvisning!
* Fritidsbolig som er over to plan og med 5 soverom
* Stor og pent opparbeidet eiendomstomt på 2.651 kvm med strandlinje
* Naust og egen flytebrygge
* Uthus med boder
* Ca. 2 km til handelssentrum på Digerneset
Velkommen til påmeldingsvisning!
NB: Knappen for å vise hele beskrivelsen har kun en visuell effekt.
NB: Knappen for å vise hele beskrivelsen har kun en visuell effekt.
Salgsoppgaven beskriver vesentlig og lovpålagt informasjon om eiendommen
Se komplett salgsoppgaveNyttige lenker
Nærområdet
Krogsveen Ålesund
Verdien av en god megler.
Annonseinformasjon
| FINN-kode | 358140248 |
|---|---|
| Sist endret | 11. juli 2025 10:04 |
| Referanse | KR76.24195 |
Annonsene kan være mangelfulle i forhold til lovpålagt opplysningsplikt. Før bindende avtale inngås oppfordres interessenter til å innhente komplett informasjon fra meglerforetaket, selger eller utleier.

















































