Bildegalleri

2 flotte leilighet til salgs
Nøkkelinfo
- Boligtype
- Leilighet
- Eieform
- Eier (Selveier)
- Soverom
- 3
- Bruksareal
- 114 m²
- Byggeår
- 2017
- Energimerking
- Tomt
- Eiet
Fasiliteter
Visning
Ta kontakt for å avtale visning.Beskrivelse
Beskrivelse:
2 leiligheter selges. Begge leilighetene er utleid på kontrakt og i bruk.
Leilighet V4E-202, salgspris kr 8.290.000,- eksklusiv omkostninger.
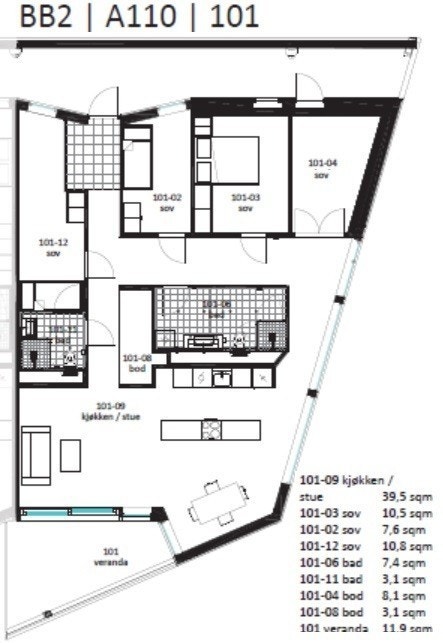
4-roms leilighet 114 m2. Leiligheten ligger i byggets 2. etasje. Er utstyrt med 2 bad, walkin garderobe i tilknytting til hoved soverom. Solplass på balkong med glass rekkverk mot sør og vest, samt solplass ved inngang mot nord for ettermiddag- kveldsol. Det medfølger 1 parkeringsplass for bil og egen sportsbod i felles garasjeanlegg
Leilighet V1A, salgspris kr 8.490.000,-, eksklusiv omkostninger.
5-roms leilighet 117 m2. Leiligheten ligger i byggets 1. etasje. Er utstyrt med 2 bad. Solplass fra balkong mot sørvest og ved inngang mot nord for ettermiddag- kveldsol. I tillegg er det tilgang til stor felles balkong i 6. etasje. Det medfølger 1 parkeringsplass for bil og egen sportsbod i felles garasjeanlegg. Heis
Leilighetene varmes opp med radiatorvarme fra fjernvarmeanlegg. Det samme gjelder oppvarmet tappevann. Leilighetene er utstyrt med fiber 1000/1000. Kostnaden for forbruk inngår i felleskostnad. Leilighetene er utstyrt med balansert ventilasjon, sprinkleranlegg og brannvarslingsanlegg med direkte varsling til lokalt brannvesen.
Beliggenhet og kvaliteter:
Kort vei til tur-sykkel løypenett på Tromsøya.
Lekeplass
Fjære
Bakolsen skitrekk
nærbutikk (åpen 7 dager i uken)
Skole
Barnehage
Bukta
Busstopp for nord og sørgående busser.
Flyplass
Sentrum
Avgiftsfri gjesteparkering.
Bilfritt område
GJØR OPPMERKSOM PÅ AT ANGITTE VERDIER I ANNONSE ER RETNINGSGIVENDE OG VARIERER NOE, AVHENGIG AV HVILKE LEILIGHET DERE ER INTERESSERT I.
FORBEHOLD OM FEIL I ANNONSE
Beskaffenhet
Ta kontakt med selger for komplett informasjon
Nærområdet
Annonsene kan være mangelfulle i forhold til lovpålagt opplysningsplikt. Før bindende avtale inngås oppfordres interessenter til å innhente komplett informasjon fra meglerforetaket, selger eller utleier.










































