Bildegalleri

TRYSIL - Sjarmerende enebolig ved Støa. Kort vei til Svenskegrensen.
Nøkkelinfo
- Boligtype
- Enebolig
- Eieform
- Eier (Selveier)
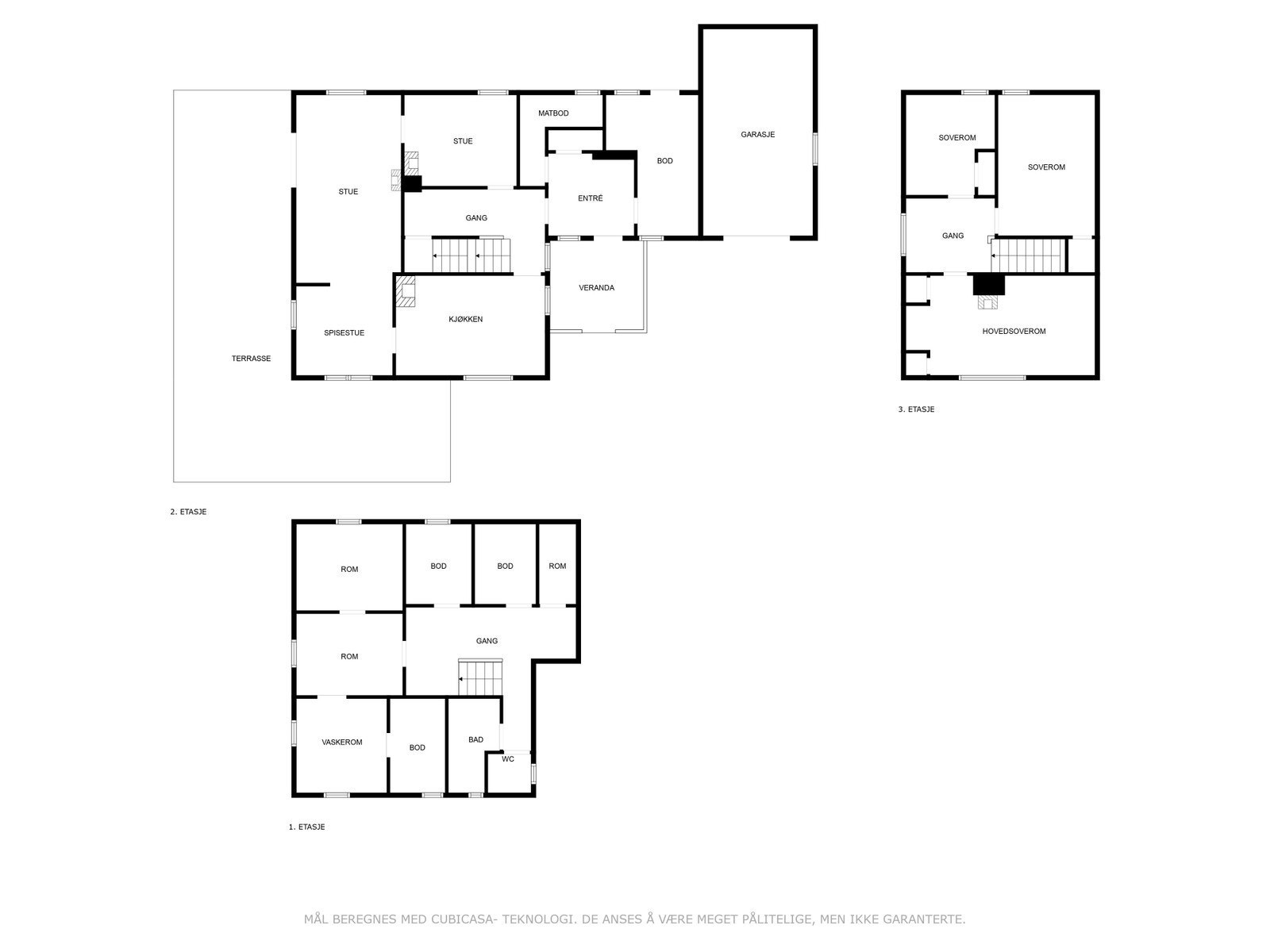
- Soverom
- 3
- Internt bruksareal
- 224 m² (BRA-i)
- Bruksareal
- 244 m²
- Eksternt bruksareal
- 20 m² (BRA-e)
- Byggeår
- 1954
- Rom
- 4
- Tomteareal
- 1 443 m² (eiet)
- Boligselgerforsikring
- Ja
Fasiliteter
Om boligen
Trivelig enebolig med garasje ved Støa. Eneboligen består av to etasjer + kjeller, med 3 soverom i 2. etasje. Nytt kjøkken fra 2019. Den har landlig beliggenhet og idylliske uteområder med hage og platting. Eiendommen passer utmerket til en familie som ønsker en hjemmekoselig bolig og nærhet til nydelige naturområder. Støa er et lite tettsted beliggende i Trysil kommune. Stedet ligger ved elva Ljøra og kun 5 km fra Støten på svensk side. Støten har restauranter, basseng og alpinanlegg. Området er kjent for sin vakre natur og fredelige omgivelser. Tettstedet har flotte fiskemulighet, turområder og snøscooterled. Det er også kort reisevei til skianlegg både i Fulufjellet og i Sälen.
Ta kontakt med megler for komplett informasjon
Nyttige lenker
Nærområdet
Advokat Jostein Morønning
Annonseinformasjon
| FINN-kode | 357931084 |
|---|---|
| Sist endret | 13. juli 2025 10:59 |
| Referanse | 87240071 |
Annonsene kan være mangelfulle i forhold til lovpålagt opplysningsplikt. Før bindende avtale inngås oppfordres interessenter til å innhente komplett informasjon fra meglerforetaket, selger eller utleier.











































