Bildegalleri

Skolegata 21 er en svært trivelig eiendom i rolig blindvei nær skole og bhg
DOKKA
Fin beliggenhet, tomt og uteplass! Enebolig med 4 sov - Nytt tak 2019 - Nær skole og barnehage!
Prisantydning3 250 000 kr
Nøkkelinfo
- Boligtype
- Enebolig
- Eieform
- Eier (Selveier)
- Soverom
- 4
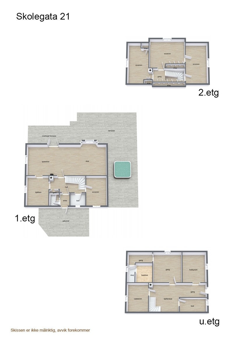
- Internt bruksareal
- 227 m² (BRA-i)
- Bruksareal
- 227 m²
- Balkong/Terrasse
- 112 m² (TBA)
- Byggeår
- 1955
- Energimerking
- G - Oransje
- Tomteareal
- 1 330 m² (eiet)
Fasiliteter
Balkong/Terrasse
Barnevennlig
Garasje/P-plass
Offentlig vann/kloakk
Peis/Ildsted
Rolig
Sentralt
Visning
onsdag, 08. april
16:30 – 17:00
Husk å melde deg på visning dersom du ønsker å delta på annonsert visning. Annonsert visning vil ikke bli gjennomført uten påmeldinger innen kl. 10.00 samme dag. Ta kontakt med megler for avtale om visning utenom dette.
Husk å lese salgsoppgaven før visningen.
Velkommen!
VisningspåmeldingOm boligen
Velkommen til Skolegata 21!
Her finner du en pen og innholdsrik enebolig med flott tomt kun et par minutter unna skoler i alle alderstrinn. Her kan vi blant annet friste med:
- Rolig og barnevennlig beliggenhet i blindvei!
- Gode sol,- og utsiktsforhold!
- Flott uteområde med stor terrasse og pent opparbeidet hage!
- Takoppløft og tak over inngangsparti fra 2019!
- Nytt tak hele boligen i 2019!
- Jacuzzi på terrasse som medfølger i handelen!
- 4 gode soverom!
- Varmepumpe fra 2019 og vedovn i stue!
- Skyvedørsgarderobe fra 2022 i hall!
- Badstue!
- Nytt toalett fra 2023!
- Praktiske bodrom i kjeller!
- Smijernsporter og hvitt stakittgjerde på deler av tomt!
- Garasje og uthus!
Velkommen til en hyggelig visning - husk visningspåmelding!
NB: Knappen for å vise hele beskrivelsen har kun en visuell effekt.
NB: Knappen for å vise hele beskrivelsen har kun en visuell effekt.
Salgsoppgaven beskriver vesentlig og lovpålagt informasjon om eiendommen
Se komplett salgsoppgaveNyttige lenker
Nærområdet
Partners Eiendomsmegling
Verdien av lokalkunnskap
Annonseinformasjon
| FINN-kode | 357685905 |
|---|---|
| Sist endret | 23. mars 2026 03:06 |
| Referanse | 61240049 |
Annonsene kan være mangelfulle i forhold til lovpålagt opplysningsplikt. Før bindende avtale inngås oppfordres interessenter til å innhente komplett informasjon fra meglerforetaket, selger eller utleier.



































































