Bildegalleri

Illustrasjon av fasade
Mausetvegen 42 - 6-mannsbolig
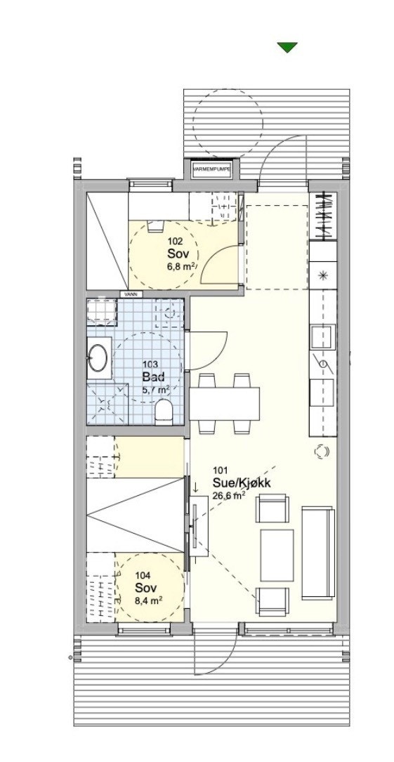
LILLO 50m2 2.etg
Kort om prosjektet
Byggingen er i full gang! Kun 3 enheter av de populære LILLO boligene er igjen for salg sentralt i Brumunddal. Arealeffektive og praktiske leiligheter med 2 og 3 soverom til engunstig pris. Perfekt for par og familier i ulike livsfaser.
Prosjektets status
Planlegging
4.kvartal 2024
Salgsstart
1. kvartal 2025
Byggestart
2.kvartal 2025
Overtakelse
Høsten 2026
Nøkkelinfo
- Boligtype
- Leilighet
- Etasje
- 2
- Soverom
- 2
- Primærrom
- 50 m²
- Bruksareal
- 50 m²
Fasiliteter
Visning
Ta kontakt for å avtale visning.Beskrivelse
Leilighet på 50m2 med totalt 2 soverom.
Oppvarming:
- Funksjonell og arealeffektiv leilighet med lave kostnader til oppvarming da boligene er tilknyttet fjernvarmeanlegg. Gulvvarme med egen styringsenhet i alle rom.
Utvendig leveranse:
- Boligene leveres med utvendig frittstående bod på ca 5m2. Uisolert med betongplate.
- Leveres med 19x148 dobbelfalset liggende kledning, grunnet + 1 strøk med mellomstrøk i fargene: Trebitt 9076 Røykgrå og Trebitt 0683 Sotgrå.
- Vinduer leveres med utvendig farge i dempet sort Ral 9005 jet black og innvendig hvite (s-0502y)
- Platting og terrasse leveres med 28x128 impregnerte terrassebord med bakgrunn i tegning. Glassrekkverk ihht tegning på leilighetene i 2.etg.
- Kjørbare arealer asfalteres og øvrige gangsoner leveres gruslagt, med bakgrunn i illustrasjonsplan.
- Uteareal leveres med ferdigplen rundt bolig, friarealer med isådd plen, klar for egeninnsats med gjødsling, vanning og klipping.
Innvendig leveranse:
- Pergo aquasafe laminat i alle tørre rom og yttergang, eller tilsvarende produkt.
- Basic wall, kostmalte veggplater i fargen Mist på alle tørre rom.
- Himlingsplate 60x120 i fargen bomull i alle himlinger.
- 20x20 shadow black fliser, med 10x10 fliser i dusjsone med sokkelflis på bad.
- Fibo baderomsplater i grey sement på bad.
- Kjøkken fra Sigdal med inkludert integrerte hvitevarer fra electrolux.
- Baderomsinnredning fra Arve Hagen – Linn bad type Hilde 80cm.
- 90x90 dusjvegger med tilhørende garnityr.
- Balansert ventilasjonsanlegg med høyeffektiv roterende varmegjenvinner.
Nyttige lenker
Nærområdet
Nordbohus - Innlandet Ringsaker/Hamar
Annonsene kan være mangelfulle i forhold til lovpålagt opplysningsplikt. Før bindende avtale inngås oppfordres interessenter til å innhente komplett informasjon fra meglerforetaket, selger eller utleier.







